Na sprzedaż 735.000zł - Mieszkanie
Atrakcyjne!
Z pięknym widokiem na Panoramę Warszawy !
Piękne , słoneczne mieszkanie
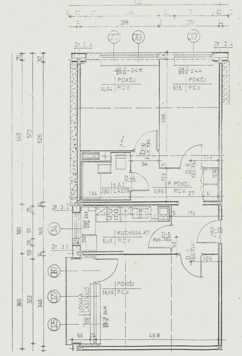
3-pokojowe o powierzchni 52 m w budynku z 1978 roku.
Bardzo zadbane i funkcjonalne .
Idealne dla młodej rodziny lub jako inwestycja – na wynajem.
Położone na 11 piętrze w 12 piętrowym budynku (ostatnie piętro jest piętrem technicznym i zlokalizowanymi komórkami lokatorskimi) z dwoma windami oraz piękną panoramą na centrum Warszawy, widoczną z balkonu.
Budynek w bardzo dobrym stanie technicznym, po remontach pionów wodno-kanalizacyjnych i elektrycznych oraz po ociepleniu i renowacji elewacji oraz klatki schodowej.
Mieszkanie jest rozkładowe.
Ekspozycja okien jest dwustronna: wschodnia – salon i kuchnia oraz północno-zachodnia – 2 sypialnie.
Mieszkanie posiada funkcjonalny układ:
z przedpokoju znajdują się wejścia do
wszystkich pomieszczeń:
– salon (o pow. ok. 17m2) z wyjściem na balkon, z którego roztacza się piękna panorama na centrum Warszawy,
obok znajduje się
– widna kuchnia ok. 6m2 w pełni wyposażona – jest możliwość otwarcia kuchni na pokój dzienny,
– dwie sypialnie (9 i 11m2) oraz łazienka z WC (ok. 2,5m2) . W łazience znajdziemy kabinę prysznicową , toaletę z ” bidetką „, umywalkę oraz pralkę.
– przedpokój (o pow.ok. 6m2) z wbudowaną dużą szafą.
Całe mieszkanie zostało też funkcjonalnie zagospodarowane co pozwoliło na uzyskanie dużo miejsca do przechowywania.
Obie sypialnie posiadają stałą zabudowę – szafy i regały z półkami , wykonane pod wymiar, na zamówienie indywidualne.
Podobnie jest w kuchni i łazience (do WC doprowadzono baterię bidetową oraz wykonano zabudowę szafkową oraz zamontowano kabinę prysznicową). Dodatkowo w łazience wygospodarowano miejsce na pralkę.
Mieszkanie jest po remoncie instalacji wodnej i kanalizacyjnej oraz częściowo – elektrycznej.
Okna są PCV, na podłodze znajduje się pięknie zadbany, odnowiony parkiet dębowy, na ścianach znajduje się gładź gipsowa.
Balkon o pow. 4,5m2 jest zabudowany przesuwanymi panelami szklanymi.
Mieszkanie jest spółdzielcze własnościowe.
Grunty pod budynkiem są uregulowane. Jest możliwość wsparcia zakupu kredytem bankowym.
Do mieszkania przynależy komórka lokatorska , znajdująca się na 12 piętrze.
Właściciel dzierżawi też od spółdzielni mieszkaniowej miejsce parkingowe w garażu podziemnym w budynku obok.
Mieszkanie posiada świetną lokalizację.
Wokół pełna infrastruktura miejska: szkoły – podstawowe oraz średnia, przedszkola, żłobki, przychodnie lekarskie, sklepy ( Hala Człuchowska, Biedronki, Lidl, Stokrotka, galeria handlowa, punkty usługowe, butiki, bazarek .
Jest doskonale skomunikowane z centrum miasta: liczne przystanki autobusowe i tramwajowe w pozwalają szybko dojechać do centrum oraz innych dzielnic miasta.
W zasięgu dwóch przystanków znajduje się też stacja METRA Bemowo Ratusz.
Wokół jest sporo zieleni, skwerków oraz park sportowo – rekreacyjnego z licznymi ścieżkami biegowymi, oraz fitnessami plenerowymi.
Zapraszam na prezentacje i zachęcam do zakupu!
- Piętro: 11
- Liczba pięter: 12















