Na sprzedaż 664.000zł - Mieszkanie
Na sprzedaż nowoczesne, jasne mieszkanie położone przy ul. Łochowska 8, w nowym budynku z 2026 roku. Lokal jest wykończony, klimatyzowany i gotowy do zamieszkania — idealny zarówno dla osoby prywatnej, jak i inwestora szukającego nieruchomości pod wynajem.
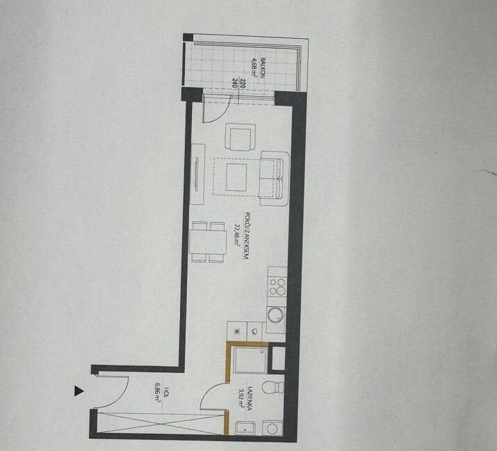
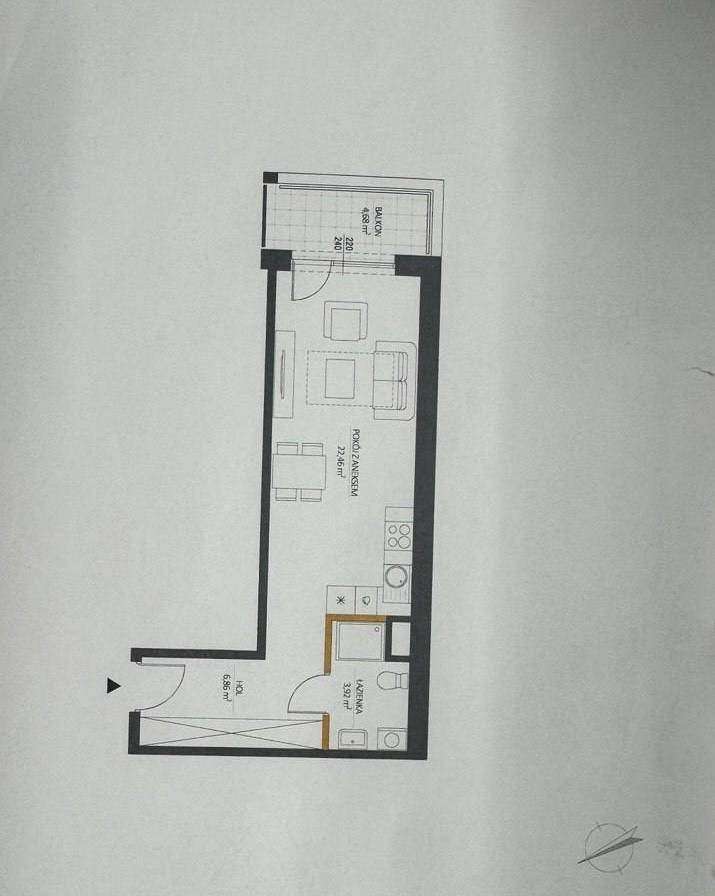
Mieszkanie znajduje się na 4 piętrze i ma bardzo funkcjonalny układ.
Powierzchnia wewnętrzna: 33,84 m²
Powierzchnia użytkowa: 33,24 m²
W skład mieszkania wchodzą:
pokój z aneksem kuchennym – 22,46 m²
łazienka – 3,92 m²
hol – 6,86 m²
balkon – 4,68 m²
Duży pokój dzienny z aneksem kuchennym daje wiele możliwości aranżacji i pozwala wygodnie wydzielić strefę wypoczynkową, jadalnianą oraz roboczą. Mieszkanie jest jasne, ustawne, dobrze doświetlone i wyposażone w klimatyzację. Dzięki nowemu wykończeniu lokal nie wymaga dodatkowych nakładów finansowych.
Atuty nieruchomości:
nowy budynek 2026
mieszkanie wykończone, klimatyzowane, gotowe do wprowadzenia
4 piętro
balkon 4,68 m²
funkcjonalny układ pomieszczeń
nowoczesna kuchnia i łazienka
bardzo dobra opcja do zamieszkania lub pod inwestycję
Dodatkowe atuty budynku i części wspólnych:
na dachu znajduje się strefa relaksu dla mieszkańców
plac zabaw dla dzieci
nowoczesna zabudowa i zadbane części wspólne
z dachu rozciąga się bardzo piękny widok na panoramę centrum Warszawy
Lokalizacja i komunikacja
Nieruchomość położona jest w bardzo atrakcyjnej części miasta, blisko centrum Warszawy, co zapewnia wygodny i szybki dojazd do najważniejszych punktów stolicy. To lokalizacja, która łączy miejski komfort z codzienną wygodą życia.
Dużym atutem jest bardzo dobra komunikacja miejska. W pobliżu znajdują się nie tylko przystanki autobusowe, ale także przystanki tramwajowe Kawęczyńska-Bazylika i Wojnicka, do których można dojść w kilka minut. W okolicy kursują m.in. tramwaje linii 7 i 13, co zapewnia sprawny dojazd do innych części Warszawy.
W pobliżu znajdują się:
sklepy i punkty usługowe
szkoły i przedszkola
restauracje, kawiarnie i miejsca codziennych zakupów
Galeria Wileńska
pełna infrastruktura potrzebna do komfortowego życia
tereny spacerowe i miejsca do codziennej rekreacji
To lokalizacja, która świetnie sprawdzi się zarówno dla osób szukających mieszkania dla siebie, jak i dla inwestorów. Dodatkowym atutem jest fakt, że naprzeciwko budynku powstanie park, co jeszcze bardziej zwiększy komfort życia mieszkańców i atrakcyjność nieruchomości w przyszłości.
Świetna propozycja dla inwestora i do zamieszkania
To mieszkanie będzie doskonałym wyborem dla singla, pary lub inwestora szukającego gotowego lokalu pod wynajem.
Mieszkanie z wykończeniem, klimatyzacją i gotowe do zamieszkania. Bardzo dobry wybór zarówno do własnego zamieszkania, jak i jako zakup inwestycyjny.
- Piętro: 4
- Powierzchnia użytkowa: 33.24
- Liczba pięter: 4















