Na sprzedaż 2.150.000zł - Dom
DOM#BEMOWO#
Przedstawiamy ofertę sprzedaży przestronnego domu około 350 m2 powierzchni użytkowej.
Dom ten to idealne połączenie ciszy, zieleni oraz wygody wynikającej z doskonałej komunikacji.
Kluczowe atuty nieruchomości:
Lokalizacja:
dom położony jest przy spokojnej ulicy, co zapewnia minimalny ruch samochodowy i ciszę, a zarazem łatwy dostęp do głównych arterii komunikacyjnych miasta.
Doskonała komunikacja:
w pobliżu znajdują się przystanki autobusowe oraz łatwy dostęp do tras S.
Komfortowe zakupy:
Centrum Handlowe Galeria Bemowo oraz Cinema City, Biedronka, Lidl co zapewnia wygodę codziennych zakupów.
PARAMETRY NIERUCHOMOŚCI;
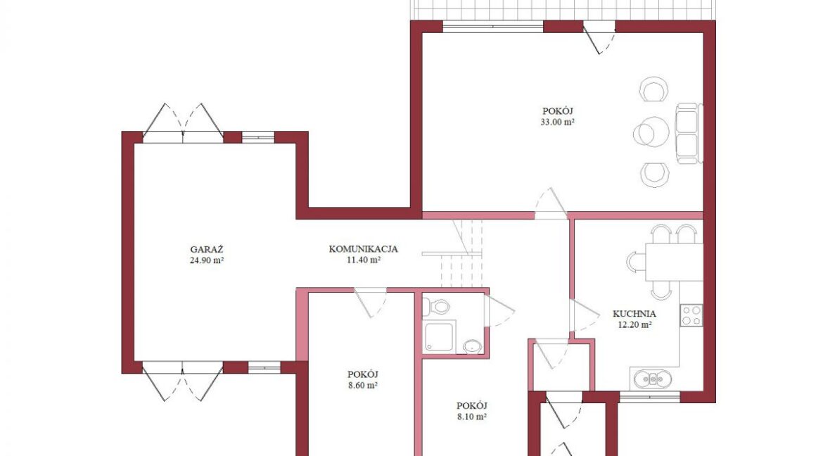
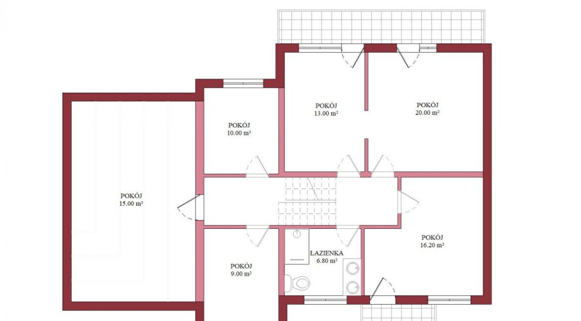
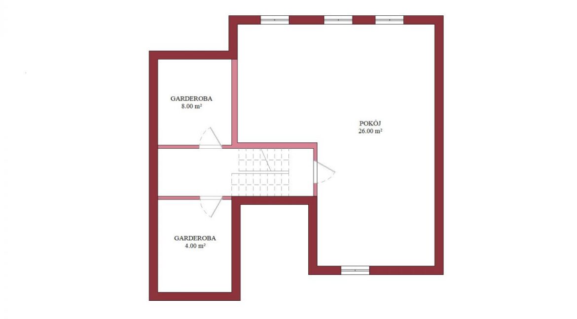
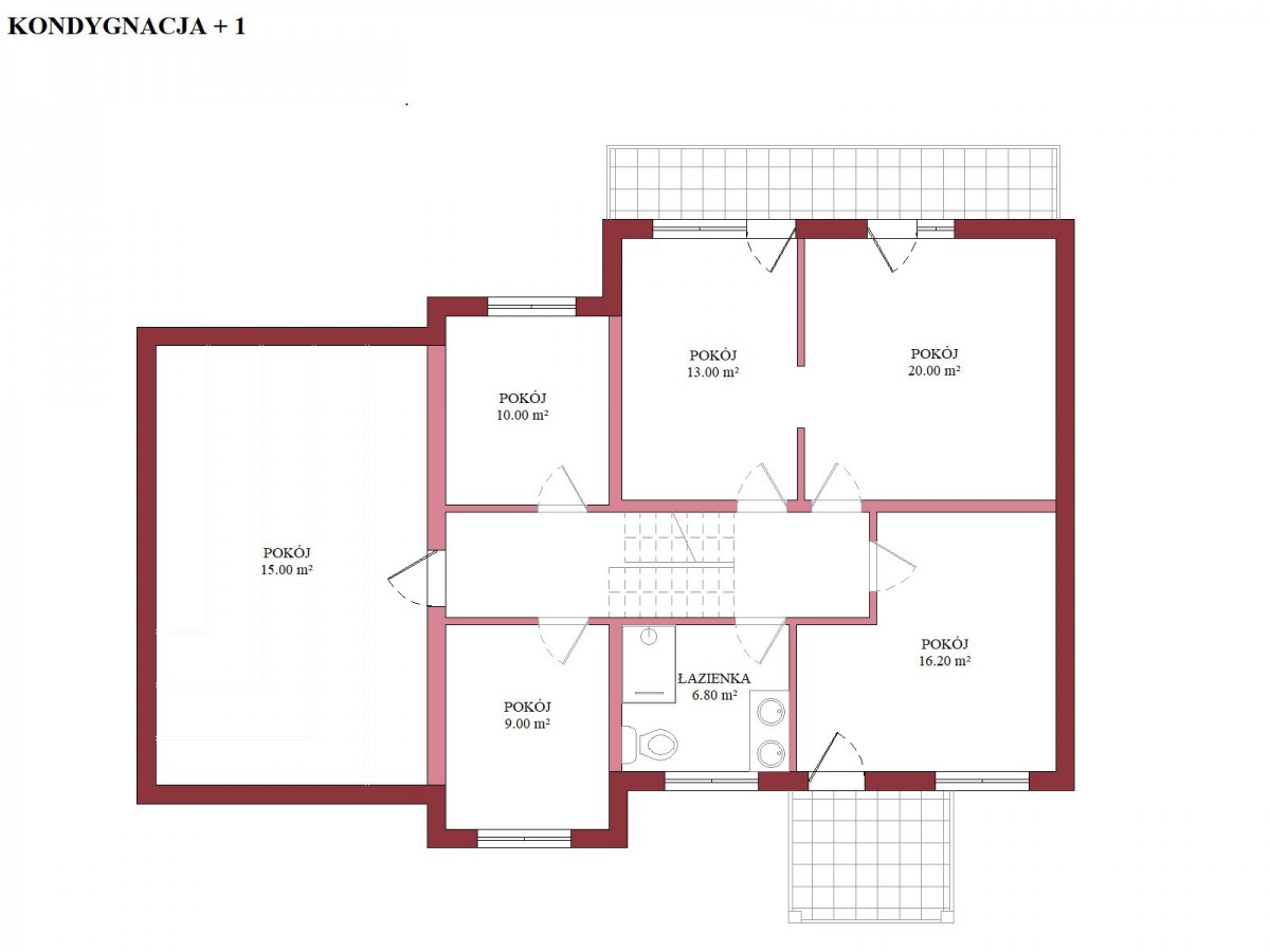
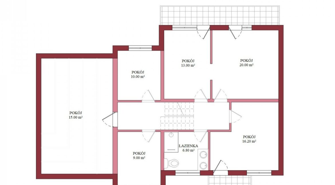
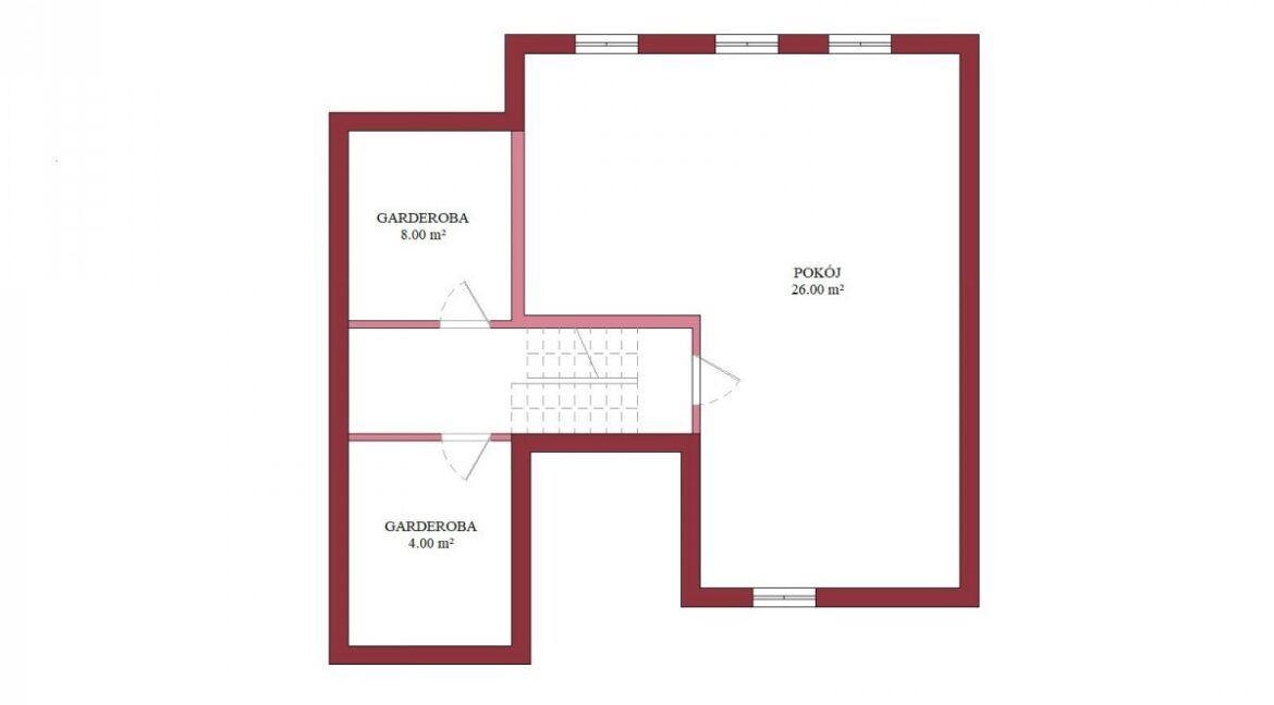
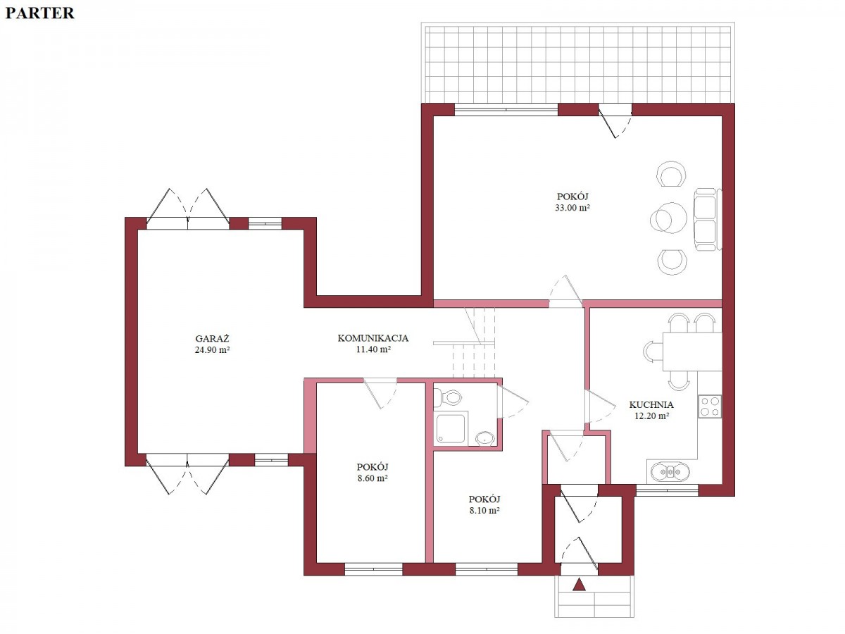
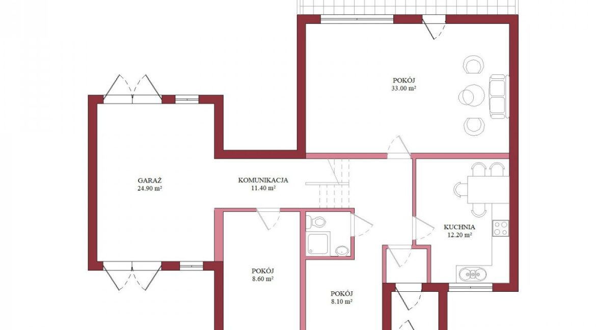
• 10 pokoi (w tym pokój rekreacyjny z oknem i kominkiem oraz duży pokój na poddaszu z oknami),
• 2 pomieszczenia na garderoby,
• duży garaż,
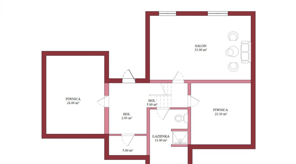
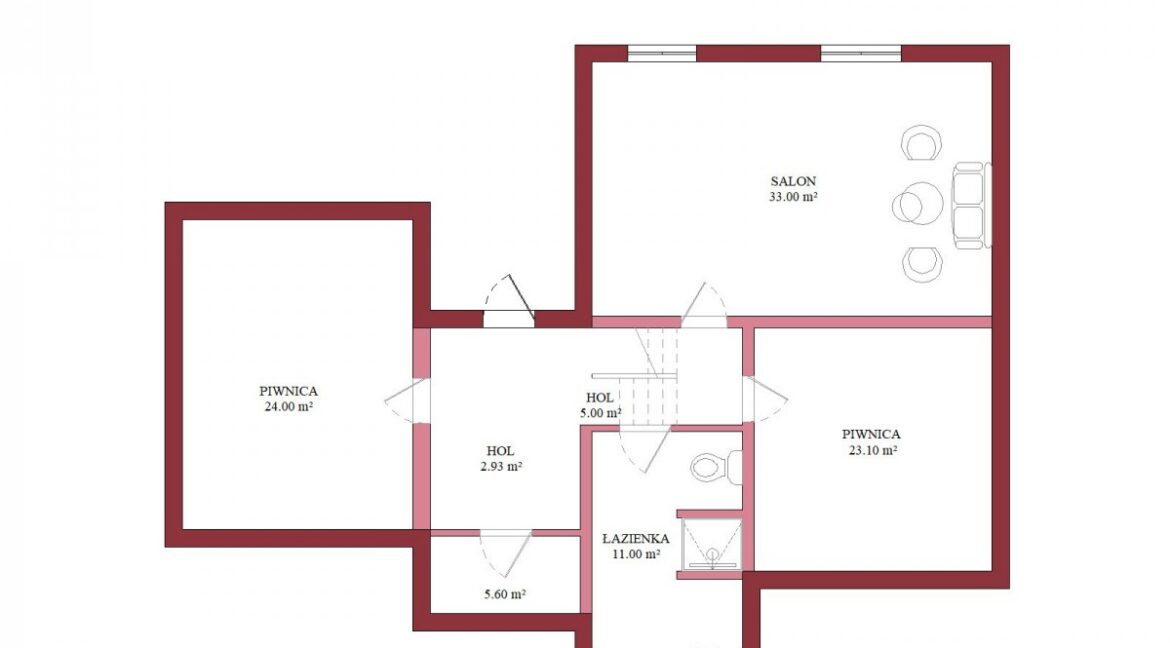
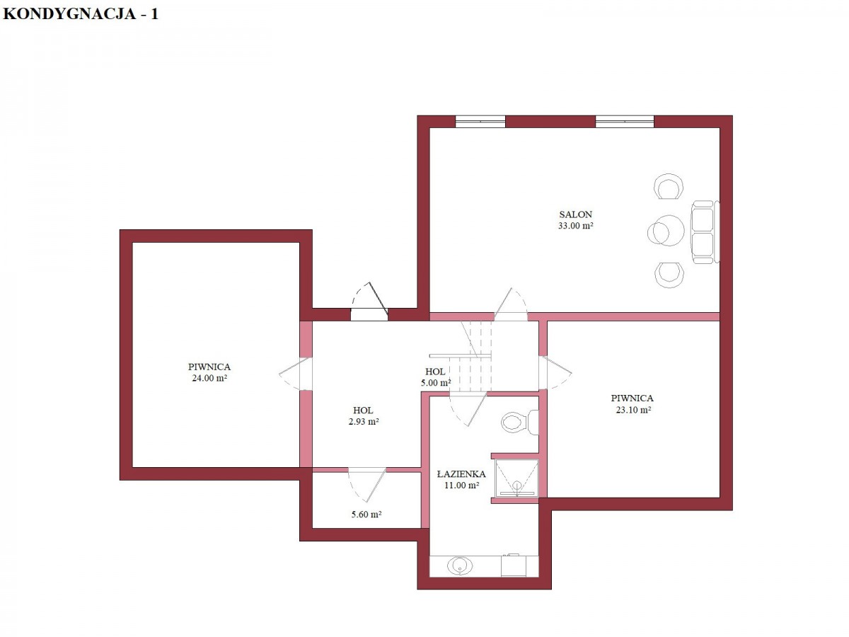
• dużo pomieszczeń gospodarczych + duża piwnica,
• miejsce na 2 kolejne samochody przed domem,
• ogródek z tarasem około 480m2 + 50m2 w dzierżawie od miasta,
• 2 kondygnacje naziemne + strych + wysoka piwnica z oknami,
• 2 balkony + taras,
• kominek tradycyjny w piwnicy w pokoju rekreacyjnym,
• ogrzewanie miejskie,
• media miejskie (woda, gaz, prąd),
• Sporo pomieszczeń gospodarczych + duża piwnica,
• Sporo pomieszczeń gospodarczych + duża piwnica,
• 2 duże łazienki i toaleta,
Przed domem miejsce do parkowania na 2 samochody.
OKOLICA
• linie autobusowe, tramwajowe, bliskość trasy S7,
• Szkoły, przedszkola, żłobki,
• Centrum Medyczne, przychodnie zdrowia, rehabilitacja, apteka,
• kawiarenki, restauracje, wśród nich Sushi, pizzeria,
• OSIR Bemowo, siłownia, basen, fitness,
• centrum Handlowe Galeria Bemowo oraz Cinema City,
• lokalne sklepy, piekarnie, cukiernie, Lidl, Biedronka,
• do ul.Powstańców śląskich ok 1 km, stąd bardzo sprawny dojazd do centrum Warszawy oraz innych dzielnic.
Polecam i serdecznie zapraszam.
* Opis nieruchomości sporządzany na podstawie informacji uzyskanych od właściciela/osoby reprezentującej może podlegać aktualizacji i nie stanowi oferty handlowej w rozumieniu Kodeksu Cywilnego lecz ma jedynie charakter informacyjny.
- Powierzchnia użytkowa: 300.00
- Powierzchnia działki: 448.00
- Liczba pięter: 2















