Na sprzedaż 729.000zł - Mieszkanie
Już w najbliższą sobotę zapraszam na dzień otwarty! Proszę dzwonić i się zapisywać!
Okolica:
Doskonały punkt. Budynek stoi w samym środku osiedla. Tuż obok znajduje się duży sklep, wkoło liczne usługi, szkoły, przedszkola. Do AWF około 1 km, podobna odległość dzieli nas od stacji metra Młociny i Galerii Młociny. Urokliwy Las Bielański dostępny jest dosłownie po drugiej stronie ulicy.
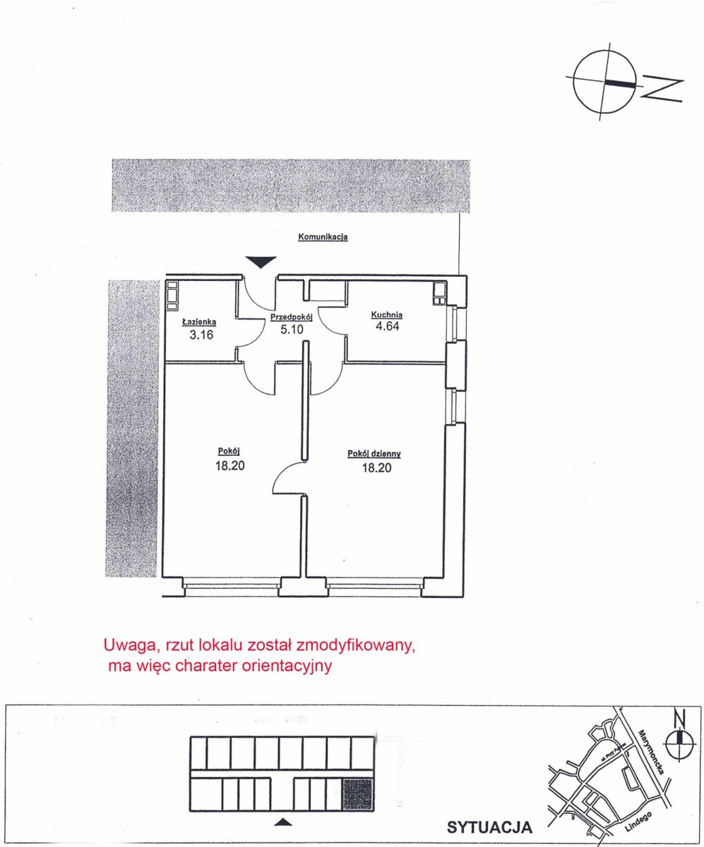
Budynek to zadbany wieżowiec wyposażony w domofon. Mieszkanie jest narożne i składa się z obszernego salonu, sypialni, łazienki i bardzo dużej kuchni połączonej z jadalnią. Można z niej wydzielić osobny pokoik, na przykład miejsce do pracy, bo ma dwa niezależne okna. Łazienka i kuchnia są starego typu, ale w całym mieszkaniu na podłodze znajdują się nowe, zaledwie roczne panele dobrej jakości.
Warunki zakupu:
Mieszkanie dostępne jest od już. Spółdzielcze własnościowe prawo do lokalu. Nie ma księgi wieczystej, ale nie ma też przeciwwskazań do jej założenia, można wziąć kredyt!
- Piętro: 5
- Powierzchnia użytkowa: 49.30
- Liczba pięter: 10










