Na sprzedaż 695.000zł - Mieszkanie
Mieszkanie trzypokojowe z zabudowana loggią i oddzielną garderobą na warszawskim Bródnie w dzielnicy Targówek.
Całkowita powierzchnia 60,6 ㎡ z pomieszczenie przynależnym piwnicą o powierzchni 1,7m2.
Powierzchnia mieszkania to 58,9 m2 + zabudowana loggia około 3 m2
Kable światłowodowe są dostępne w całym budynku dla szybkiego dostępu do Internetu. Duży pokój z wyjściem na przyjemna zabudowaną loggię z widokiem na stadion. Widna kuchnia z oknem.
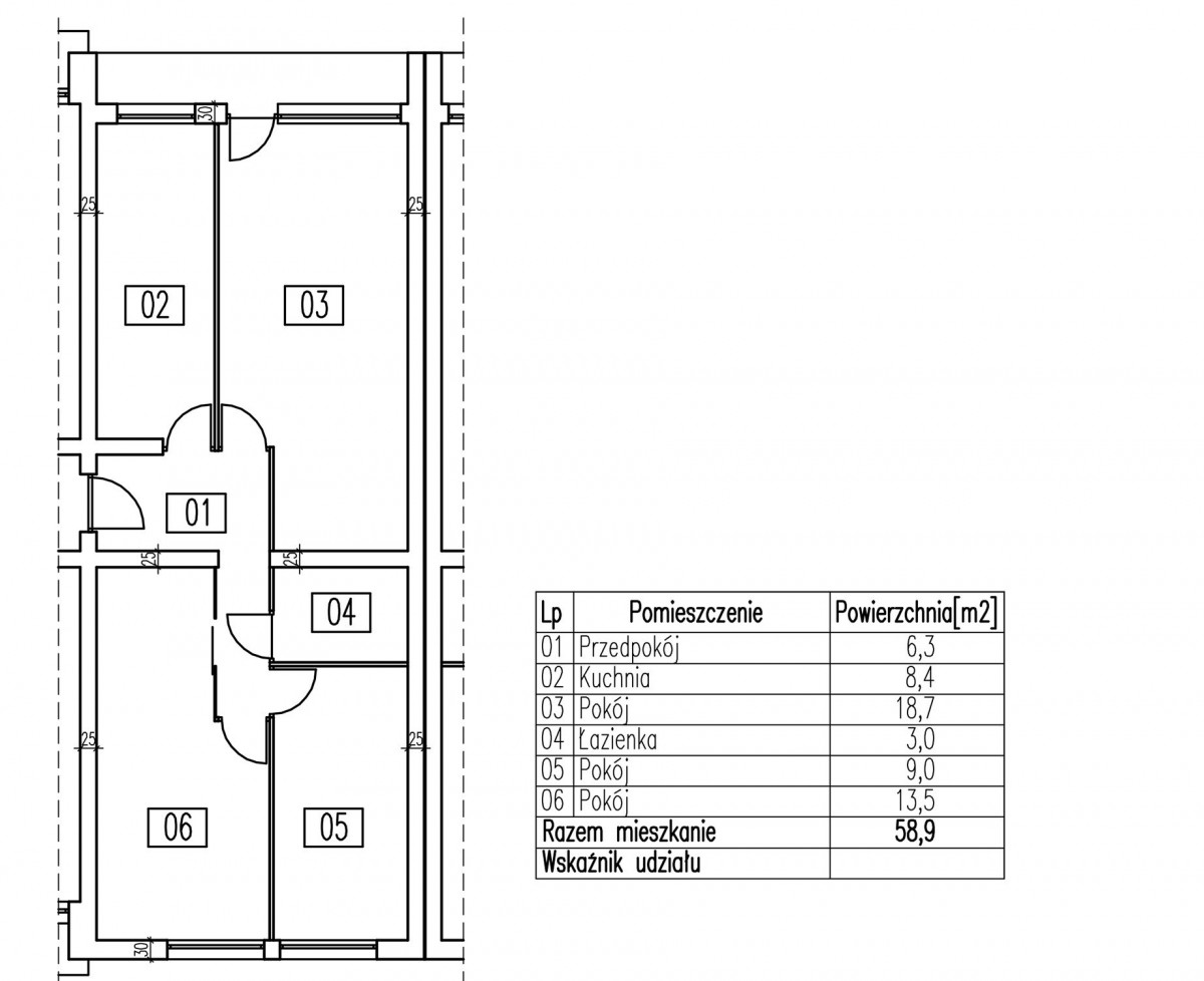
Rozkład pomieszczeń i powierzchnia w przybliżeniu
Pokój 18,7 m2 z wyjściem na loggię
Pokój 10 m2
Pokój 9 m2
Kuchnia 8,4 m2
Łazienka 3 m2
Garderoba 3,2 m2
Hall 6,3 m2
Na podłodze mozaika i terakota.
Ekspozycja okien na stronę wschodnią i zachodnią.
Mieszkanie wymaga remontu.
Istnieje wiele możliwości aranżacji tego mieszkania. Garderoba może być również przystosowana na gabinet do pracy. Istnieje możliwość zaadoptowania miejsca na dodatkową toaletę z wc w pobliży łazienki.
Za to blok jest bardzo dobrze utrzymany, wyremontowane klatki schodowe, nowe windy, wymienione piony wodnokanalizacyjne.
W budynku znajduje się zamykane pomieszczenie na rowery.
Forma własności:
Odrębna nieruchomość z księga wieczystą. Mieszkanie można zakupić w kredycie.
Lokalizacja:
W środku osiedla, cicho i zielono.
Ale okolica jest bardzo dobrze skomunikowana. W pobliżu stacji metra Kondratowicza oddalona o 2 przystanki autobusowe.
W pobliżu znajduje się wiele miejsc parkingowych. Teren z dużą ilością zieleni. W pobliżu Las Bródnowski, Park Bródnowski, basen, korty tenisowe, boiska, sklepy.
Przystanki wielu linii autobusowych (200 m do pętli autobusowej). Nie zajmie nam też dużo czasu dotarcie do przystanku tramwajowego
Lokalizacja mieszkania pozwala także na realizacje podstawowych potrzeb mieszkańców. Jest to oferta dla rodzin z dziećmi; w promieniu kilkuset metrów są przedszkola i trzy szkoły podstawowe. Bez problemu zrobimy zarówno mniejsze zakupy (Żabka, Biedronka, piekarnia, drogerie), jak i większe zakupy (CH Targówek, Factory Annopol, Homepark Targówek). Dodatkowo dzięki bliskiemu położeniu basenu oraz kompleksu boisk sportowych jest to też doskonała oferta dla osób aktywnych fizycznie.
- Piętro: 4
- Powierzchnia użytkowa: 58.90
- Liczba pięter: 10















