Na sprzedaż 890.000zł - Mieszkanie
Wyjątkowe mieszkanie w historycznej Willi Quo Vadis
LOKALIZACJA:
Konstancin-Jeziorna to miejsce dla osób, które cenią spokój, zieleń i architekturę z klasą. Miasto-ogród o niepowtarzalnym charakterze, znane z pięknych willi, uzdrowiskowego klimatu i wyjątkowej atmosfery, od lat przyciąga tych, którzy szukają czegoś więcej niż tylko dobrego adresu. W pobliżu znajdują się m.in. Park Zdrojowy, tężnia solankowa, tereny rekreacyjne, restauracje, kawiarnie, Stara Papiernia oraz pełna zieleni zabudowa willowa, tworzące komfortowe i prestiżowe miejsce do życia.
Właśnie tutaj znajduje się Willa Quo Vadis — wyjątkowy budynek z 1905 roku, będący częścią historii dawnego Konstancina. To propozycja dla konesera architektury, który potrafi docenić autentyczność, detal i ponadczasowy charakter. Budynek zachwyca elementami, które dziś są już rzadkością: snycerskimi zdobieniami, ażurowymi balustradami oraz charakterystycznymi werandami. To nieruchomość z prawdziwą tożsamością — niepowtarzalna, elegancka i osadzona w historii miejsca.
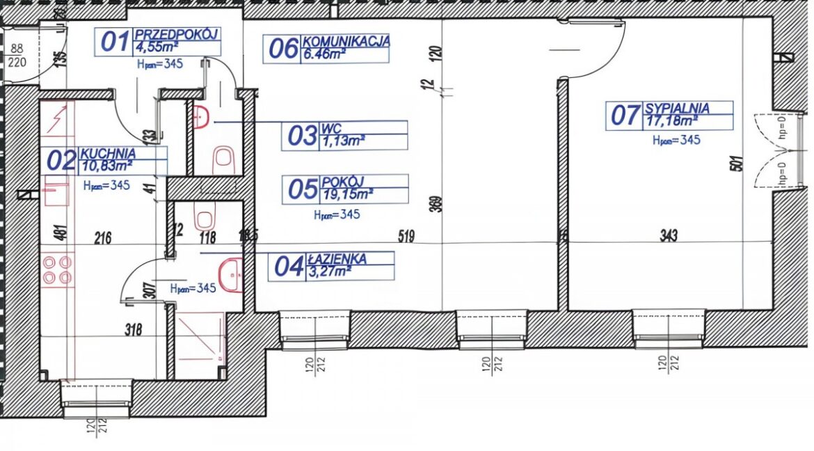
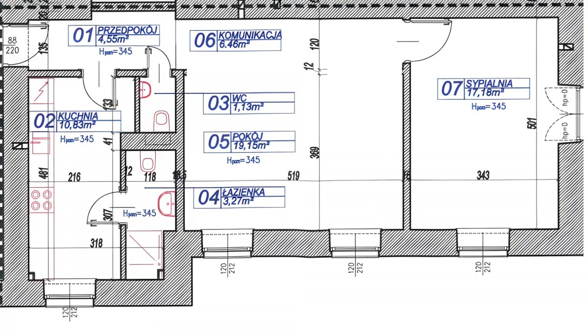
Sam lokal jest przygotowany do wykończenia, co daje przyszłemu właścicielowi możliwość stworzenia wnętrza zgodnego z własną wizją, przy jednoczesnym wykorzystaniu już wykonanych prac technicznych. Wykonano m.in. kotłownię gazową i montaż instalacji wewnętrznej gazu, nowy piec i nową skrzynkę gazową, instalację wodno-kanalizacyjną, przygotowane przyłącza do kuchni, WC i łazienki, podłączenie wentylacji, rozdzielenie instalacji elektrycznej, dodatkowe obwody dla lodówki, piekarnika i zmywarki.
Dodatkowym atutem jest nabycie wraz z lokalem udziału 1/16 w gruncie o powierzchni 3139 m². Wizualizacje zamieszczone w galerii po rzucie uwzględniają rzeczywisty układ instalacji w lokalu.
Serdecznie zapraszam na prezentację tej wyjątkowej nieruchomości. To oferta dla osób, które w nieruchomości szukają nie tylko funkcji, ale również klimatu, historii i wartości, która nie przemija.
- Powierzchnia użytkowa: 62.55
- Liczba pięter: 3















