Na sprzedaż 1.180.000zł - Mieszkanie
MIESZKANIE W MARINIE MOKOTÓW Z OGRÓDKIEM I GARAŻEM
Parter z tarasem | Wysoki standard | Rolety antywłamaniowe | Dwa parki, jeziorko | Blisko SKM i autobusów
*****
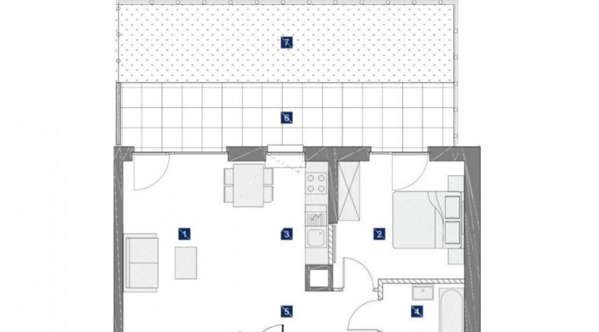
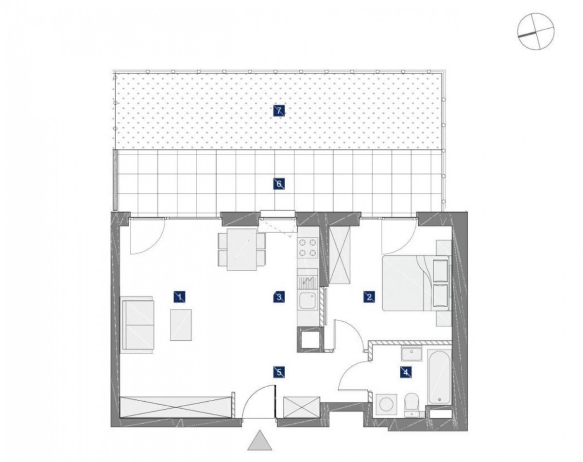
Mieszkanie o powierzchni 51 m² składa się z:
* Salonu z aneksem kuchennym 26,74 m²,
* sypialni 11,18 m²,
* łazienki 4,46 m²,
* holu 6,52 m²,
* tarasu 16,70 m²,
* ogródka 20,71 m².
STANDARD:
Mieszkanie z 2020 roku, wykończone w wysokim standardzie z dbałością o detale. W pełni wyposażone i gotowe do zamieszkania. Okna drewniane (nowy typ). Ogrzewanie miejskie. Pojemna zabudowa. Wyspa w kuchni. Kamienny blat.
Wnętrza zachwycają spokojną i luksusową atmosferą, dzięki stonowanej palecie barw: szarości, czerni i bieli. Minimalistyczny charakter podkreślają proste linie, geometryczne formy mebli wykonanych na wymiar oraz starannie dobrane, subtelne oświetlenie.
Uwagę przyciągają wysokiej jakości materiały – drewno oraz wykończenia w stylu marmuru, które nadają przestrzeni szlachetności. Przemyślana, oszczędna w dekoracje aranżacja sprawia, że mieszkanie jest niezwykle przestronne i uporządkowane.
Idealne dla koneserów nowoczesnego designu i funkcjonalności.
INWESTYCJA/ BUDYNEK:
Marina Mokotów to prestiżowe osiedle, które łączy w sobie nowoczesną architekturę z bliskością natury. Enklawa spokoju i zieleni w sercu miasta, idealna dla osób ceniących wysoki standard życia i komfort. Budynek apartamentowy z windą. Do dyspozycji mieszkańców dwa parki oraz jeziorko.
LOKALIZACJA:
Mieszkanie zlokalizowane przy ulicy Białej Floty w Marinie Mokotów, na Wyględowie. W okolicy Pole Mokotowskie i Fort Mokotów – idealne miejsca na spacery, jogging czy rodzinne pikniki.
* Prywatny park i place zabaw – idealne na rodzinne popołudnia.
* Bogata infrastruktura usługowa w okolicy: sklepy, restauracje, kawiarnie, przychodnia, siłownia, fryzjer.
* Dla rodzin: blisko przedszkola, żłobki i szkoły, w tym szpital pediatryczny.
* Świetna komunikacja: blisko Centrum, Lotniska Chopina i Galerii Mokotów.
INFORMACJE DODATKOWE:
* Do mieszkania przynależy garaż/miejsce postojowe dodatkowo płatne 50 000 PLN oraz komórka lokatorska 20 000 PLN.
* Stan prawny: własność.
- Liczba pięter: 6












