Na sprzedaż 860.000zł - Mieszkanie
Zapraszam na dzień otwarty w środę 11/03 pomiędzy 15.30-17.00 po wcześniejszym umówieniu telefonicznym.
Link do strony Dewelopera G2Dewelopment.
https:// g2d.pl
Inwestycja Kmicica –mieszkania 4 pokojowe 71 m² 2 miejsca postojowe
Kobyłka 17 km od centrum Warszawy
Kameralne osiedle składające się z 16 lokali mieszkalnych. Idealna propozycja dla rodzin oraz osób pracujących w Warszawie, które cenią spokój, przestrzeń i niskie koszty utrzymania.Zostały nam także ostatnie mieszkania w stanie deweloperskim do wyboru.
Najważniejsze informacje
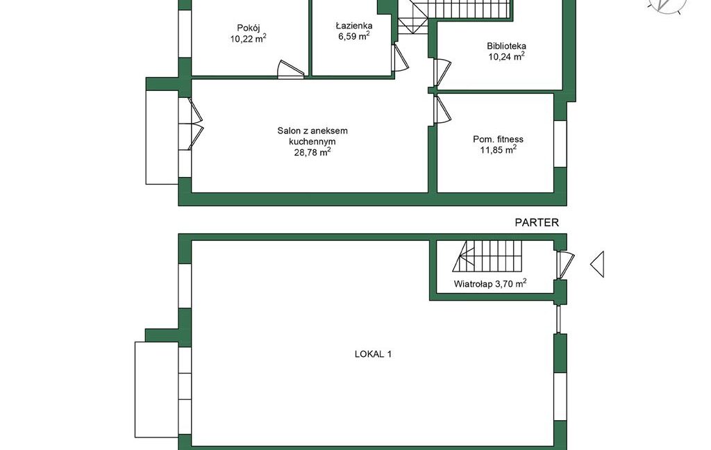
- Powierzchnia: 71 m²
- I piętro
- 3 sypialnie
- Salon z aneksem kuchennym i wyjściem na balkon
- 2 miejsca postojowe
- Cena całkowita mieszkania wykończonego pod klucz w wysokim standardzie: 880 000 zł
- Możliwość zakupu przez obcokrajowców spoza UE
- Kupujący nie płaci prowizji ani podatku PCC 2%
- Mieszkania bezczynszowe
- Ogrzewanie podłogowe oraz pompa ciepła
Wykończenie mieszkań
- Jedno mieszkanie jest wykończone pod klucz w wysokim standardzie – gotowe do wprowadzenia
- Pozostałe mieszkania dostępne w standardzie deweloperskim z możliwością zmiany układu pomieszczeń i kolorystyki wykończenia pod indywidualne potrzeby klienta,
Standard deweloperski obejmuje
- Drzwi antywłamaniowe
- Okna z parapetami zewnętrznymi
- Tynki gipsowe (ściany gotowe do malowania)
- Wylewki betonowe (pod dowolne wykończenie)
- Instalacje: wentylacyjna, wodno-kanalizacyjna, elektryczna (bez osprzętu), grzewcza z ogrzewaniem podłogowym i pompą ciepła
- Okablowanie pod alarm, domofon, światłowód i antenę
- Balustrady zewnętrzne
- Ogrodzenie całej inwestycji z bramą elektryczną i furtką
- Zagospodarowany teren, droga wewnętrzna i miejsca parkingowe
- Ocieplenie elewacji, stropu, podbitka dachowa, blachodachówka i orynnowanie
Lokalizacja i komunikacja
- Dojazd do centrum Warszawy w około 30 minut trasą S8
- Połączenie kolejowe – linia R60 (Koleje Mazowieckie)
- Dogodne połączenie z dzielnicami: Targówek, Białołęka, Praga-Północ, Praga-Południe
Szkoły i infrastruktura
- Słoneczna Szkoła Podstawowa
- Publiczna Szkoła Podstawowa z Oddziałami Dwujęzycznymi Nr 1 im. Zofii Nałkowskiej
Bliskość terenów zielonych i rekreacyjnych
- Rezerwat Grabicz
- Muzeum im. Zofii i Wacława Nałkowskich
- Glinianki w Zielonce
- Amazing Park
- Rezerwaty i tereny zielone w okolicy
To propozycja dla osób, które chcą mieszkać w spokojnej, zielonej okolicy z szybkim dostępem do Warszawy, korzystając zarówno z gotowego mieszkania wykończonego pod klucz, jak i możliwości spersonalizowania układu lub kolorów w pozostałych lokalach.
Zapraszam na prezentację.
Pozostało 0 wiadomości. Przejdź na plan Business, aby kontynuować konwersację.
- Piętro: 1
- Liczba pięter: 1















