Na sprzedaż 599.000zł - Mieszkanie
Na sprzedaż kawalerka o powierzchni 37,58m2, usytuowana na parterze w niskim, 2-piętrowym budynku z 2025 roku, położonym przy ul. Marii Callas.
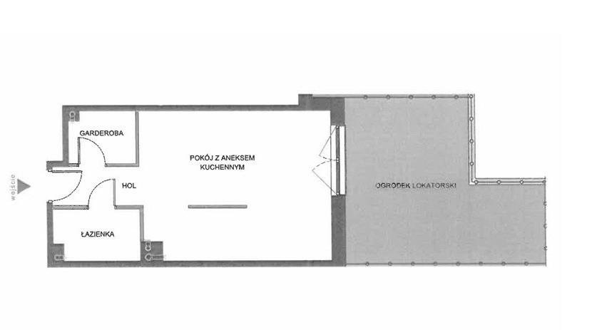
MIESZKANIE:
Mieszkanie wykończone w wysokim standardzie, wyposażone w klimatyzację. Na podłodze deska podłogowa (dąb lity!), na ścianach sztukateria. Wyjątkowego klimatu prezentowanej nieruchomości nadają meble w stylu retro, elementy oświetlenia, czy pozłacane elementy. W mieszkaniu nikt nigdy nie mieszkał.
Salon wraz z wyposażonym w meble i niezbędne sprzęty AGD aneksem kuchennym ma łączną powierzchnię 26,91m2.
Łazienka wyposażona w kabinę prysznicową, WC, pralkę oraz umywalkę z lustrem ma 4,1m2.
Do mieszkania przynależy ogródek o powierzchni 25,43m2.
Kolejnym, dużym udogodnieniem jest funkcjonalna garderoba (3,33m2).
Lokal jest cichy, ze wschodnią ekspozycją okien.
OKOLICA:
Mieszkanie położone jest na nowoczesnym osiedlu Olchowy Park przy ul. Marii Callas na warszawskiej Białołęce. To spokojna, zielona okolica z pełną infrastrukturą: sklepy, szkoły, przedszkola i przystanki autobusowe dostępne w zasięgu spaceru.
W pobliżu znajdują się liczne tereny rekreacyjne oraz ścieżki rowerowe. Dogodny dojazd do centrum zapewnia trasa S8 oraz komunikacja miejska. Idealne miejsce dla osób szukających komfortu i spokoju z dala od miejskiego zgiełku.
INFORMACJE DODATKOWE:
Pełna własność na gruntach uregulowanych – przy zakupie można posiłkować się kredytem hipotecznym.
Do mieszkania przynależy naziemne miejsce postojowe płatne dodatkowo – 30.000zł.
Zgoda MSWiA na zakup mieszkania przez obywateli spoza UE nie jest wymagana.
Polecam i zapraszam na prezentację!
- Liczba pięter: 2












