Na sprzedaż 1.300.000zł - Mieszkanie
Wyjątkowy apartament w sercu Starego Miasta | ul. Freta | 57 m²
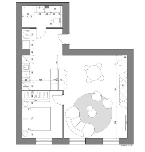
Na sprzedaż elegancki, 2-pokojowy apartament o powierzchni 57,25 m², położony na 2. piętrze kameralnej, historycznej kamienicy przy ul. Freta – w prestiżowej części Stare Miasto w Warszawie.
Atuty nieruchomości:
• prestiżowy adres w ścisłym centrum historycznym,
• kameralna, klimatyczna kamienica,
• przestronne i jasne wnętrza z dużymi, drewnianymi oknami,
• funkcjonalny, komfortowy układ pomieszczeń,
• oddzielna kuchnia,
• łazienka z wanną i prysznicem,
• zabudowy stolarskie zapewniające dużą przestrzeń do przechowywania.
Lokalizacja – synonim prestiżu
Ul. Freta to jedna z najbardziej pożądanych ulic Warszawy – miejsce, gdzie historia i elegancja tworzą unikalny klimat. W bezpośrednim sąsiedztwie znajdują się Zamek Królewski w Warszawie, Plac Zamkowy oraz Barbakan w Warszawie.
Unikatowa nieruchomość w sercu Starego Miasta | ogromny potencjał aranżacyjny | ul. Freta
Są nieruchomości, które oferują coś więcej niż metraż i lokalizację.
To mieszkanie daje dostęp do historii Warszawy – dosłownie na wyciągnięcie ręki.
Na sprzedaż klimatyczne, 2-pokojowe mieszkanie o powierzchni 57,25 m², położone na 2. Piętrze kameralnej, zabytkowej kamienicy „Pod Samsonem” przy ul. Freta 5 – w samym sercu Nowego Miasta.
To unikatowa propozycja dla osób poszukujących nieruchomości z duszą i charakterem – łączącej ponadczasową architekturę z komfortem codziennego życia w jednej z najbardziej ekskluzywnych lokalizacji w Warszawie. Dodatkowo propozycja ta stwarza możliwość aranżacji przestrzeni według własnych potrzeb, w pełni dopasowanej do własnej wizji.
Mieszkanie składa się z:
· jasnego salonu z dużymi, drewnianymi oknami – idealnego do wypoczynku, pracy lub spotkań
· oddzielnej, przytulnej sypialni
· niezależnej, funkcjonalnej kuchni wyposażonej w kuchenkę gazową, piekarnik oraz meble kuchenne
· łazienki z wanną oraz oddzielnym prysznicem – wygodne, rzadko spotykane rozwiązanie
· przedpokoju z dużą ilością miejsca do przechowywania dzięki pojemnym szafom w zabudowie
Układ mieszkania daje szerokie możliwości aranżacyjne i sprawdzi się zarówno jako komfortowe miejsce do życia, jak i nieruchomość inwestycyjna.
Mieszkanie wymaga remontu, co stanowi jego atut – daje pełną swobodę aranżacji i możliwość zaprojektowania wnętrza zgodnie z indywidualnym stylem, standardem oraz potrzebami przyszłego właściciela. To doskonała baza do stworzenia eleganckiego apartamentu w historycznym otoczeniu.
Najważniejsze atuty:
• prestiżowy adres w ścisłym centrum historycznym,
• kameralna, klimatyczna kamienica,
• duży potencjał aranżacyjny – możliwość stworzenia wnętrza „od podstaw”,
• ustawny, funkcjonalny układ pomieszczeń,
• duże, drewniane okna zapewniające bardzo dobre doświetlenie,
• idealna propozycja zarówno do zamieszkania, jak i inwestycyjnie.
Lokalizacja – wartość, której nie da się odtworzyć
Ul. Freta to jedna z najbardziej klimatycznych ulic Warszawy – miejsce, gdzie historia spotyka się z codziennym komfortem życia. W bezpośrednim sąsiedztwie znajdują się Zamek Królewski w Warszawie, Plac Zamkowy oraz Barbakan w Warszawie.
Budynek, w którym znajduje się mieszkanie, to jeden z najbardziej charakterystycznych adresów tej części miasta – kamienica została wzniesiona około 1770-1771 roku dla Jakuba Maraszewskiego, prezydenta Starej Warszawy. Reprezentuje wczesny klasycyzm (styl Ludwika XVI) – rzadko spotykany w Warszawie. Swoją nazwę zawdzięcza płaskorzeźbom przedstawiającym Samsona walczącego z lwem – symbol siły i wyjątkowości. Kamienica ta była odbudowywana po pożarze w 1777 roku oraz po zniszczeniach wojennych w 1944 roku (rekonstrukcja w latach 1951-1955). Budynek należy do najbardziej rozpoznawalnych kamienic przy ulicy Freta. To miejsce, które łączy autentyczną historię, architekturę i prestiż.
Okolica oferuje dostęp do renomowanych restauracji, klimatycznych kawiarni, galerii sztuki oraz miejsc kultury, terenów spacerowych, takich jak Bulwary Wiślane w Warszawie czy Multimedialny Park Fontann.
Komunikacja:
• ok. 10 minut spacerem do stacji metra Metro Ratusz Arsenał,
• dogodny dostęp do komunikacji miejskiej,
• szybkie połączenie z pozostałymi częściami miasta.
- Piętro: 2
- Liczba pięter: 3















