Na wynajem 20.000zł - Inny komercyjny
WYJĄTKOWA NIERUCHOMOŚĆ KOMERCYJNA W SERCU WARSZAWY Z WITRYNAMI
Sąsiedztwo Placu Trzech Krzyży | Witryna od ulicy | Świetny dostęp do infrastruktury i komunikacji miejskiej
*****
NIERUCHOMOŚĆ:
Prezentujemy unikatową ofertę wynajmu lokalu o powierzchni 181,66 m². Nieruchomość zlokalizowana jest w kultowej kamienicy z lat 30., w najbardziej prestiżowej części Śródmieścia, tuż obok Sejmu RP i Placu Trzech Krzyży.
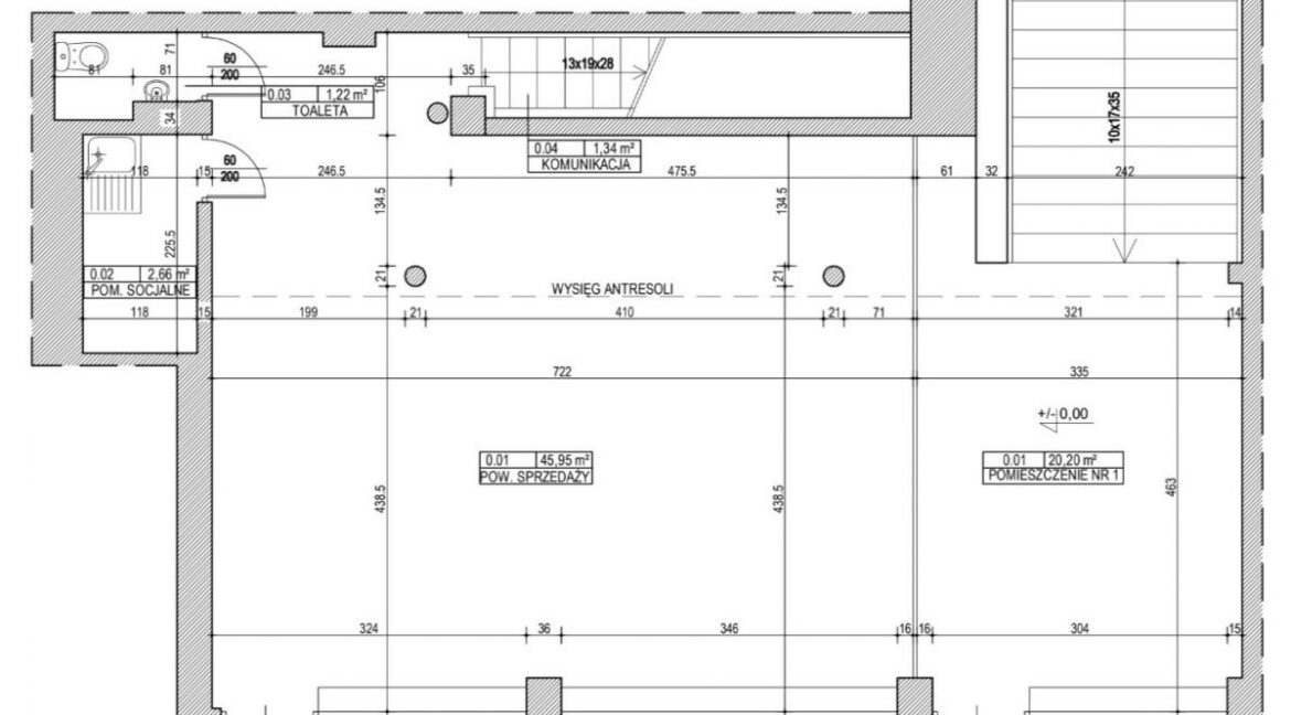
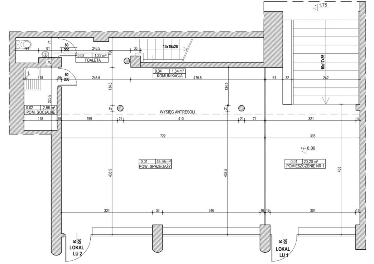
Lokal LU-1 (Parter z Witryną i Piwnica) – Powierzchnia 181,66 m²:
Lokal o unikalnym, loftowym charakterze, oferujący ogromne możliwości aranżacyjne.
Parter: Reprezentacyjne wejście i pomieszczenie o powierzchni 20,20 m².
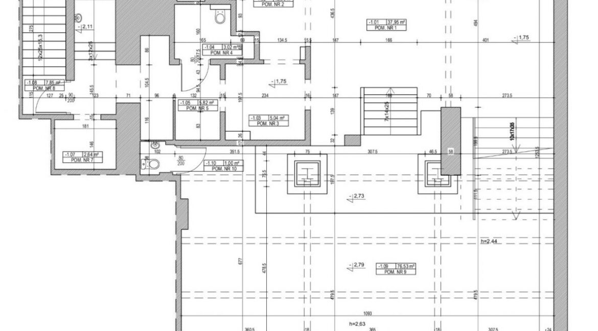
Poziom -1 (Piwnica użytkowa): Imponująca przestrzeń o łącznej powierzchni 161,46 m². Składa się z 10 pomieszczeń, w tym dwóch dużych sal o charakterze open-space (m.in. sala o pow. 76,59 m² oraz 37,95 m²).
To idealne miejsce na galerię sztuki, prestiżowe biuro projektowe lub showroom. Aktualnie klinika kosmetyczna.
Wnętrze lokalu niedawno przeszło gruntowny remont – zainstalowano wszelkie instalacje niezbędne do prowadzenia działalności gospodarczej – klimatyzację, wentylację, instalacją elektryczno-alarmowa, oznaczono drogi ewakuacyjne.
BUDYNEK:
Kamienica została zaprojektowana przez arch. Wacława Wekera w stylu funkcjonalizmu z lat 30-tych. Budynek przy Wiejskiej wzniesiono w latach 1935-1939. Elewacje oraz klatki schodowe w kamienicy zostały oblicowane marmurem i ciosami piaskowca, natomiast konstrukcję budynku stanowi „szkielet żelbetowo-stalowy z wypełnieniem i omurowaniem słupów stalowych z cegły pełnej” (arch. Kubicki). Posadzki w budynku ceramiczne, w przestrzeni sklepowej oraz betonowe w piwnicy.
LOKALIZACJA:
Nieruchomość znajduje się w jednej z najbardziej znanych lokalizacji Warszawy – przy ul. Wiejskiej, w sąsiedztwie Sejmu, Kancelarii Prezydenta, placu Trzech Krzyży i wielu ambasad. Na tym obszarze mieści się wiele prestiżowych butików, pracowni, kultowych kawiarni i restauracji.
Kwartał ulic przylega do ogromnych śródmiejskich terenów zieleni, m.in. Park Ujazdowski, Łazienki Królewskie, Agrykola, Ogród Botaniczny.
Atutem lokalizacji jest znakomita komunikacja z Centrum Warszawy. Możliwy jest zarówno dogodny dojazd komunikacją miejską i samochodem.
Zapraszam na prezentację!
- Liczba pięter: 4















