Na sprzedaż 850.000zł - Mieszkanie
Oferowane mieszkanie jest jasne, przestronne i położone w sercu Pragi-Południe – jednej z najbardziej zielonych i klimatycznych dzielnic Warszawy. Widok z dużego balkonu na zielone ogródki działkowe, Park Skaryszewski a w oddali widoczna jest Panorama Warszawy ze Stadionem Narodowym.
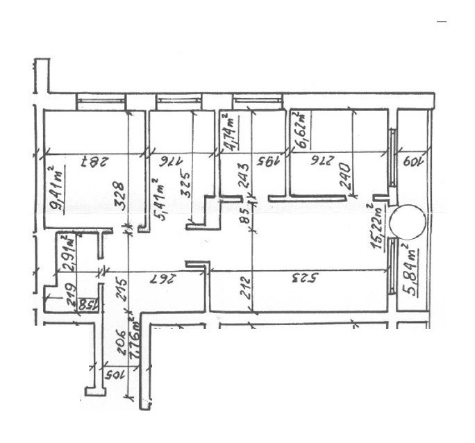
ROZKŁAD I WNĘTRZE:
• komfortowy salon z wyjściem na duży balkon z widokiem na panoramę Warszawy
• kuchnia z wyspą po remoncie (dodatkowo przeprowadzono remont instalacji kuchennej)
• sprzęt AGD w kuchni w cenie mieszkania
• dwa pokoje, z wejściem z salonu, które mogą pełnić funkcję sypialni lub miejsca do pracy
• przestronny hol z funkcjonalną szafą wnękową
• estetyczna łazienka w dobrym stanie
Całość utrzymana w przyjaznym stylu – gotowa do zamieszkania bez konieczności dużego remontu!
LOKALIZACJA I OTOCZENIE:
Mieszkanie usytuowane jest zaledwie kilka kroków od Parku Skaryszewskiego, jednego z najpiękniejszych warszawskich terenów rekreacyjnych. Bliskość przystanków tramwajowych zapewnia szybki i wygodny dojazd do centrum miasta – w mniej niż 15 minut znajdziesz się w Centrum Warszawy.
Szkoła podstawowa i liceum ogólnokształcące znajduje się w odległości 4 min pieszo.
BUDYNEK I UDOGODNIENIA:
Blok jest zadbany i dobrze utrzymany, wyposażony w dwie windy (w trakcie wymiany na nowe), co znacznie podnosi komfort życia. Do mieszkania przynależy także piwnica, idealna na przechowywanie rzeczy sezonowych.
Tuż obok znajdują się sklepy, punkty usługowe, plac zabaw dla dzieci, a w sąsiedztwie popularna kawiarnia „Mała Sicilia Di Stefano Terrazzino”, idealna na spotkania ze znajomymi i chwile przy dobrej kawie.
Zapraszam na spotkanie, widok z balkonu zachwyca.
- Piętro: 6
- Liczba pięter: 10










