Na sprzedaż 463.000zł - Mieszkanie
Kompaktowa kawalerka z pięknym widokiem poleca się uwadze. Jeśli szukasz niedrogiego mieszkania na start, lub lokaty kapitału w mieszkanie na łatwy wynajem, to zapraszam do rozmowy.
OKOLICA i BUDYNEK
Żoliborz – Aleja Wojska Polskiego 36. Zadbany 9-cio piętrowy budynek z 1966.
Świetny punkt komunikacyjny – 300m do placu Grunwaldzkiego, 600m do placu Inwalidów, skąd mamy szeroki wybór autobusów i tramwajów w różne strony miasta.
Pełna infrastruktura handlowo-usługowa w zasięgu ręki.
W budynku zostały wymienione wszystkie instalacje i jest on docieplony. Klatki schodowe, choć starszego typu, są zadbane. Nowoczesna winda.
Budynek znajduje się na działce z bardzo ładnie zagospodarowanym i utrzymanym patio. Teren budynku jest ogrodzony.
MIESZKANIE
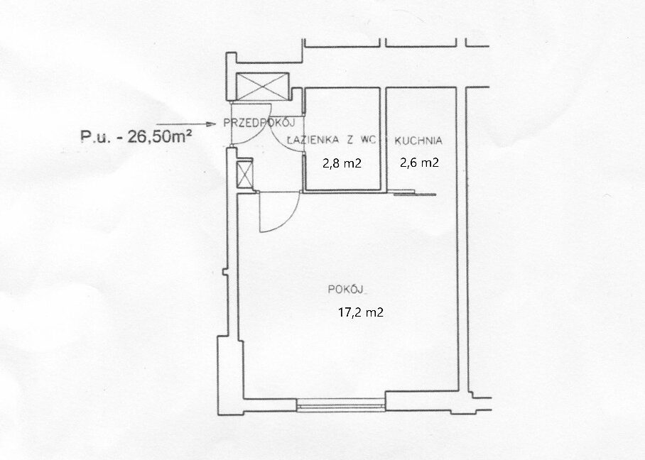
Zgrabna kawalerka z wnęką kuchenną i sporą łazienką. W przedpokoju znajdziemy szafę i dodatkowe wnęki, które można alternatywnie zaaranżować. W pokoju mamy duże okno od strony wschodniej, dzięki niezabudowanej przestrzeni za oknem mieszkanie jest bardzo jasne.
Lokal czysty i zadbany, jednak wymagający prac remontowych. W pokoju piękny dębowy parkiet to renowacji.
Wysokość lokalu 2,6m. Przynależna nieduża piwnica (ok 1,5m2).
Mieszkanie ciche, z ładnym widokiem na oddalone budynki oraz piękną, starą zieleń.
STAN PRAWNY | OPŁATY | DOSTĘPNOŚĆ
Spółdzielczo-własnościowe prawo do lokalu bez księgi wieczystej. Grunty są uregulowane – można założyć księgę. Wszystkie media miejskie. Miesięczny czynsz 468zł z zaliczkami na media. Lokal dostępny od już.
Prezentuje pośrednik – zapraszam.
- Piętro: 8
- Liczba pięter: 9













