Na wynajem 5.200zł - Inny komercyjny
Na wynajem lokal usługowo-handlowy o powierzchni 52,70 m², zlokalizowany w bezpośrednim sąsiedztwie stacji metra Metro Natolin oraz przystanku autobusowego.
Doskonała ekspozycja i stały przepływ pieszych gwarantują świetną widoczność oraz potencjał biznesowy.
Lokal znajduje się na parterze budynku, posiada dużą witrynę od strony ruchliwej ulicy, co zapewnia naturalne doświetlenie wnętrza oraz bardzo dobrą przestrzeń reklamową.
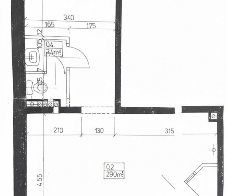
Lokal posiada dwa pomieszczenia, schowek , przedsionek i łazienkę – rzut w galerii zdjęć.
W budynku funkcjonują m.in. Carrefour, sklep odzieżowy, biuro podróży oraz szkoła językowa, co dodatkowo generuje stały ruch klientów.
Parking ogólnodostępny obok lokalu, jak również dostęp do parkingu osiedlowego za szlabanem.
WARUNKI NAJMU:
Czynsz najmu: 5200 zł + VAT
Czynsz do administracji ok 900 zł w zależności od zużycia mediów
Prąd
Kaucja: 7000 zł
Długoś okresu najmu do ustalenia.
Lokal dostępny od zaraz.
Zapraszam do kontaktu i na prezentację – to miejsce z potencjałem w jednej z najlepiej skomunikowanych części Ursynowa.
- Liczba pięter: 3













