Warszawa Praga-Południe – Na sprzedaż

Warszawa Praga-Południe – Na sprzedaż
Warszawa Praga-Południe
Na sprzedaż 1.139.000zł - Mieszkanie
329238 54.3 m2 3 Ilość pokoi 1932 Rok budowy 2025-10-18 06:44:05

—Please call for English—

Mińska 9 – w pełni odrestaurowana przedwojenna kamienica z widną i eleganckimi częściami wspólnymi. Z jednej strony nieopodal istniejącej już stacji Metro Stadion Narodowy, z drugiej Metro Mińska (za kilka lat). Genialny dojazd do centrum miasta zapewniają liczne tramwaje i autobusy, a pełna miejska infrastruktura handlowo-usługowa jest tu na wyciągnięcie ręki.

OKOLICA I BUDYNEK
Mińska 9 to część praskiego Kamionka, który przeszedł szeroko zakrojoną rewitalizację. Powstało Centrum Lokalne Kamionek (na terenie dawnego bazaru „Rogatka”), a w poprzemysłowej część Kamionka powstaje kompleks z parkiem linearnym i odnowionymi historycznymi budynkami.

Kamienica z lat 30-tych ubiegłego stulecia – właśnie została zakończona jej pełna rewitalizacja obejmująca nadbudowę, montaż nowoczesnych wind, wymianę wszystkich instalacji, nową elewację oraz zagospodarowanie patio. Finalny efekt prac to połączenie tradycji z elegancką nowoczesnością.

W okolicy, poza bardzo dobrze rozwiniętą siecią transportu publicznego znajdziemy Park Skaryszewski, Soho Factory oraz dwie renomowane szkoły wyższe – SWPS oraz Polsko-Japońską Szkołę Technik Komputerowych a także liczne sklepy i restauracje.

MIESZKANIE DO WEJŚCIA – ŚWIEŻO PO GENERALNYM REMONCIE
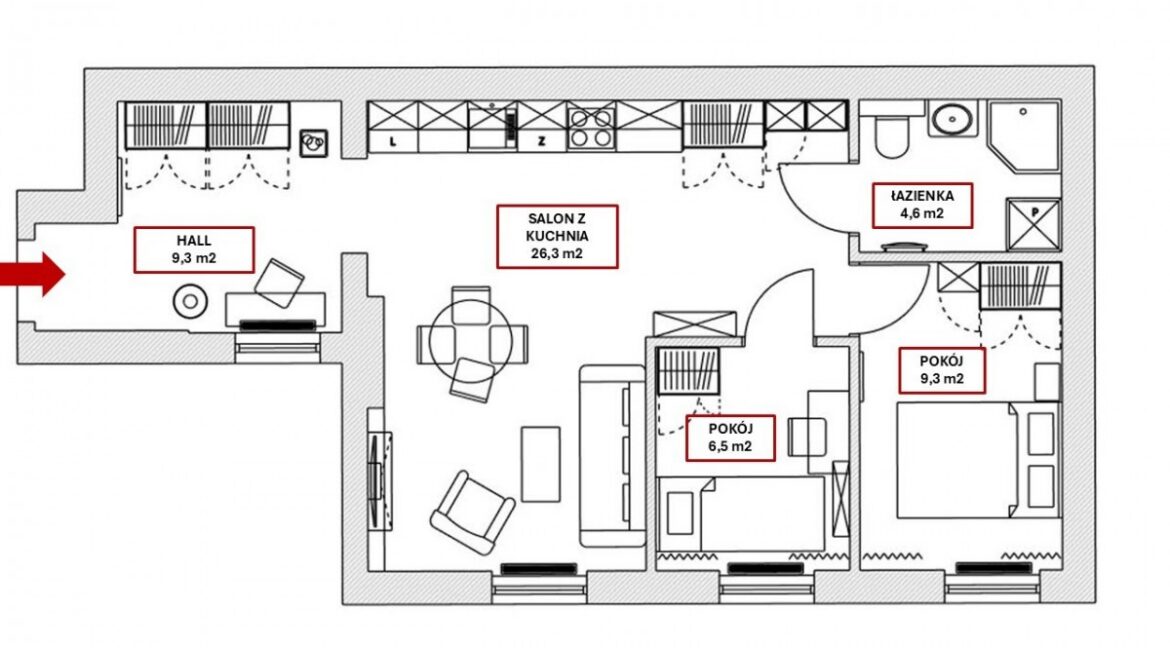
Znajdujące się na ostatnim, czwartym piętrze mieszkanie to elegancka przestrzeń obejmująca hall z oknem, salon z aneksem kuchennym, dwa niezależne pokoje oraz sporą łazienkę.

Układ lokalu jest nowoczesny – hall (dzięki oknu) może pełnić rolę gabinetu a z salonu przechodzi się do pozostałych pomieszczeń.

Całość została niezwykle gustownie zaprojektowana i wykonana pod okiem projektantki wnętrz. Mamy tu bardzo dobrej jakości materiały – niezniszczalne panele winylowe, piękne tapety oraz kuchnię na wymiar. 

Po doposażeniu mieszkania w niezbędne meble można się wprowadzać – nie wymaga ono żadnych innych nakładów finansowych. Nikt tu jeszcze nie mieszkał – wszystko jest pachnące nowością i na gwarancji.

Wysokość pomieszczeń od 231 cm w najniższym (pod oknami) do 310 cm w najwyższym punkcie. W lokalu nie ma balkonu. Ekspozycja wschodnia.

Dodatkowo do mieszkania przynależy duża komórka lokatorska o powierzchni 3,71 m2.

DOSTĘPNOŚĆ/STAN PRAWNY/OPŁATY

Pełna własność  księgą wieczystą. Czynsz na poziomie pln 700 (z zaliczkami na media). Lokal dostępny od ręki.
 
Prezentuje pośrednik – zapraszam do kontaktu.

—Please call for English—

  • Piętro: 4
  • Liczba pięter: 4

Rodzaj rynku

Mapa

Similar Properties