BSC Nieruchomości - Warszawa

Warszawa Praga-Północ – Na sprzedaż

Warszawa Praga-Północ – Na sprzedaż
Warszawa Praga-Północ
Na sprzedaż 480.000zł - Mieszkanie
355613 240 m2 16 Ilość pokoi 2026-04-08 06:43:47

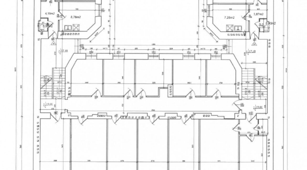
Konkurs ofert na sprzedaż powierzchni strychu do adaptacji.

Przedmiotem konkursu jest poddasze o łącznej powierzchni – ok 240 m2,
Podstawowe informacje dotyczące inwestycji:
• Budynek znajduje się przy ul. Tarchomińskiej, występuje w zabudowie ulicznej – plombowej, pierzejowej przy ulicy miejskiej, z bezpośrednim dostępem do chodnika i miejsc parkingowych.
• Otoczenie jest typowe dla śródmiejskiej zabudowy kamienicznej, z intensywnym ruchem pieszym i samochodowym.
• Obiekt jest w całości podpiwniczony. W obiekcie znajduje się 40 lokali mieszkalnych na pięciu kondygnacjach przy czym dostępne są one z każdego podestu dwóch symetrycznie rozmieszczonych klatek schodowych.
• Ściany zewnętrze budynku wykonane w tradycyjnej technice ceramiczne, otynkowane, stropy w technice Kleina. Ściany działowe ceramiczne. Dach w konstrukcji drewnianej belkowej, kryty papą. Budynek w całości otynkowany. Schody drewniane o zróżnicowanej wysokości i ilości stopni w biegach w średnim stanie technicznym. Stolarka okienna i drzwiowa drewniana, część okien wymieniona na PCV. Partia cokołowa od frontu obejmuje wejścia do lokali użytkowych i I kondygnację. Symetrycznie umieszczony przejazd na podwórze. Gzymsy wieńczą elewację oraz oddzielają cokół od reszty elewacji.
• W budynku znajdują się następujące instalacje: wod-kan, elektryczna, gazowa, centralnego ogrzewania, wentylacja grawitacyjna, domofonowa, telefoniczna.

Zobowiązania Inwestora:
• Koszty wykonania ekspertyzy technicznej nieruchomości, właściwej dla planów inwestycyjnych oraz koszty robót wynikających z jej zaleceń.
• Koszty wielobranżowego projektu inwestycji.
• Koszty postępowań administracyjnych.
• Koszty związane z przygotowaniem i realizacją inwestycji (w tym koszt dzierżawy gruntu zajętego na czas prowadzenia robót oraz koszt przebudowy przyłączy koniecznych do funkcjonowania nowo powstałych lokali).
• Koszty związane z obsługą notarialną inwestycji, w tym ustanowienia odrębnej własności lokalu/lokali powstałych w wyniku adaptacji powierzchni wspólnej.
• Koszty wpisów do ksiąg wieczystych związanych ze zmianą wysokości udziałów w nieruchomości wspólnej.
• Koszty remontu/modernizacji dachu leżą po stronie Inwestora i nie podlegają rozliczeniu finansowemu ze wspólnotą (koszt nie jest zawarty w oferowanej cenie).
• Koszt dobudowania szybu windowego (koszt nie jest zawarty w oferowanej cenie).
• Koszt remontu elewacji w części nadbudowanej (koszt nie jest zawarty w oferowanej cenie).
• Koszt budowy przyłączy mediów, jeśli zajdzie taka konieczność.

W celu umówienia się na wizję lokalną przestrzeni objętej konkursem ofert proszę o kontakt telefoniczny. Osoby zainteresowane proszone są o składanie pisemnych propozycji zakupu w całości przedmiotowej powierzchni poddasza z uwzględnieniem:
• proponowanego zabezpieczenia należytego wykonania inwestycji, w tym formy ubezpieczenia podczas prowadzenia inwestycji (polisa CAR/EAR z klauzulą all risk od ryzyk budowlanych, ubezpieczenie powinno obejmować co najmniej klauzulę błędów w dokumentacji oraz utraty zysku przez inwestora),
• terminu realizacji inwestycji (rozpoczęcia i zakończenia).

Podana kwota jest kwotą wywoławczą. Właściciel zastrzega sobie prawo do wyboru najbardziej atrakcyjnej oferty.

“Powyższa oferta ma charakter informacyjny i nie stanowi oferty handlowej w rozumieniu art. 66 §1 Kodeksu Cywilnego.”

  • Piętro: 5
  • Liczba pięter: 5

Rodzaj rynku

Mapa

Similar Properties