Na sprzedaż 750.000zł - Mieszkanie
2 pokoje | 50 m² | ul. Czumy 2 | Metro Bemowo | Dwustronne | Piwnica | 7. piętro
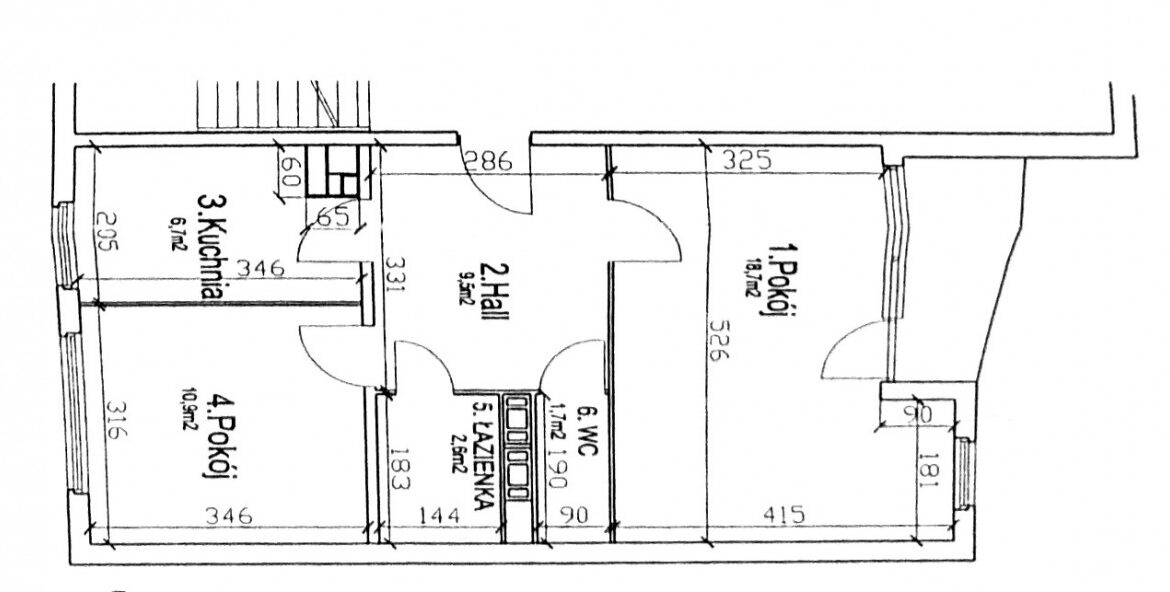
Powierzchnia mieszkania: 50 m²
Piwnica: 2,4 m²
Pokoje: 2
Piętro: 7 z nową windą
Stan: do remontu / do odświeżenia i zamieszkania
Układ: dwustronne, oddzielna kuchnia, osobne WC
Opis mieszkania
Na sprzedaż przestronne, dwupokojowe mieszkanie 50 m² położone przy ul. Czumy 2 w Warszawie – dosłownie kilka minut pieszo do stacji Metro Bemowo.
Lokal znajduje się na 7. piętrze w budynku z nową windą, dzięki czemu jest jasny, dobrze doświetlony i ma imponujący widok na okolicę.
Rozkład mieszkania jest wyjątkowo funkcjonalny:
duży, ustawny salon,
sypialnia,
oddzielna, widna kuchnia,
łazienka,
osobne WC,
przedpokój z możliwością zabudowy.
Mieszkanie jest dwustronne – dzięki temu jest świetnie wentylowane i słoneczne o każdej porze dnia.
Stan: do remontu, ale można w nim zamieszkać po odświeżeniu. Daje to ogromną swobodę aranżacyjną – możesz stworzyć przestrzeń dokładnie pod własne potrzeby.
Do lokalu przynależy piwnica 2,4 m² – idealna na rowery, sezonowe rzeczy i przechowywanie.
Atuty budynku i osiedla
nowa, modernizowana winda,
zadbane, zielone otoczenie,
świetnie rozwinięta infrastruktura usługowa.
Lokalizacja – ul. Czumy 2, tuż przy Metrze Bemowo
To jedna z najlepiej skomunikowanych części Bemowa:
Metro Bemowo – kilka minut spacerem – szybki dojazd do centrum i innych dzielnic,
przystanki tramwajowe i autobusowe w bezpośrednim sąsiedztwie,
szybki wyjazd na Trasę S8,
blisko liczne tereny zielone i rekreacyjne.
W okolicy znajduje się wszystko, co potrzebne do wygodnego życia:
centra handlowe i sklepy (Wola Park, Lidl, Biedronka, Hala Wola),
piekarnie, kawiarnie, restauracje,
szkoły, przedszkola, żłobki,
przychodnie, apteki, usługi,
kino, siłownie, parki i place zabaw.
Bemowo to dynamicznie rozwijająca się dzielnica, która łączy świetną komunikację, zielone przestrzenie i pełną infrastrukturę – idealna zarówno do zamieszkania, jak i pod inwestycję.
Podsumowanie
Dwustronne, ustawne mieszkanie 50 m² z oddzielną kuchnią, osobnym WC i piwnicą, położone kilka minut od Metra Bemowo.
Idealne do remontu pod własny projekt lub jako mieszkanie do odświeżenia i zamieszkania od razu.
- Piętro: 7
- Powierzchnia użytkowa: 50.10
- Liczba pięter: 11












