Na sprzedaż 725.000zł - Mieszkanie
Ursynów – 3 pokoje przy metrze Stokłosy. Idealne dla rodziny lub jako inwestycja!
Szukasz mieszkania w spokojnej, zielonej części Ursynowa, a jednocześnie blisko metra i pełnej infrastruktury? To mieszkanie na ul. Dembowskiego 15 to świetna propozycja zarówno dla rodziny, jak i inwestora.
Lokalizacja
Mieszkanie położone ok. 10 minut pieszo od stacji metra Stokłosy. W okolicy pełna infrastruktura: sklepy, punkty usługowe, szkoły, przedszkola, place zabaw oraz tereny zielone. Brak strefy płatnego parkowania – łatwe parkowanie pod blokiem.
Budynek
Niski, 3-piętrowy blok z 1978 roku. Klatki schodowe po remoncie, czyste i zadbane. Wymienione piony wodno-kanalizacyjne. Spokojne otoczenie, dużo zieleni.
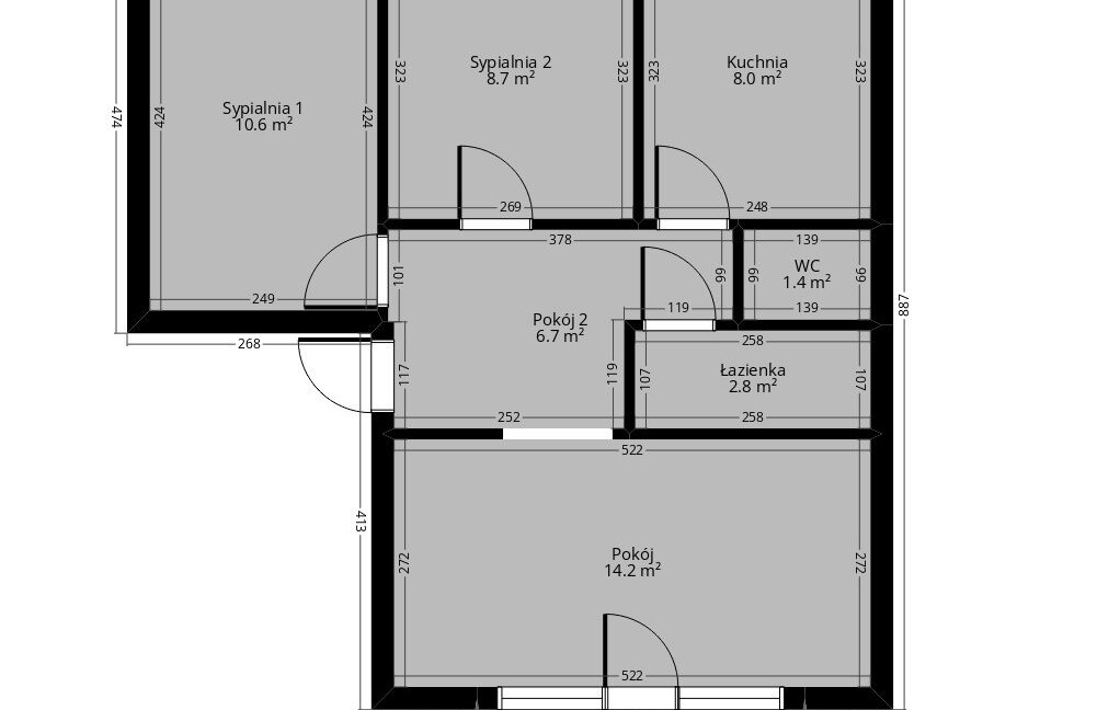
Mieszkanie
Powierzchnia 52,3 m2, ostatnie piętro (3/3). Stan do generalnego remontu – idealne do własnej aranżacji.
W skład mieszkania wchodzą:
- 3 oddzielne pokoje
- kuchnia z oknem
- łazienka
- osobne WC
- korytarz z miejscem na szafę
- balkon ok. 3 m2
Do mieszkania przynależy piwnica ok. 4 m2.
Funkcjonalny rozkład pozwala wyodrębnić:
-> układ rodzinny (salon + 2 sypialnie)
-> układ inwestycyjny (3 niezależne pokoje pod wynajem)
Potencjał inwestycyjny:
W okolicy znajduje się m.in.:
– Akademia Finansów i Biznesu Vistula – 1 km – ok. 15 minut piechotą
– Szkoła Główna Gospodarstwa Wiejskiego – 1,7 km – ok. 25 minut piechotą
– Wydział Zarządzania UW – 3,4 km – ok. 20 minut komunikacją miejską
– Uczelnia Łazarskiego – 4 km – ok. 25 minut komunikacją miejską
Układ mieszkania pozwala na rearanżację wnętrza na 2 kawalerki lub 4 pokoje – przy tej cenie mieszkania i po remoncie możesz liczyć na solidną stopę zwrotu z wynajmu.
Dodatkowe informacje
- Pełna własność z KW
- Uregulowane grunty
- Możliwość zakupu na kredyt
Cena: 725.000 zł
Idealna propozycja dla osób szukających mieszkania z potencjałem w świetnej lokalizacji!
Zadzwoń i umów się na prezentację
- Piętro: 3
- Liczba pięter: 3











