Na sprzedaż 670.000zł - Działka
Działka na sprzedaż Emów 2 123 m2 procedowane wz na dom wolnostojący własny las
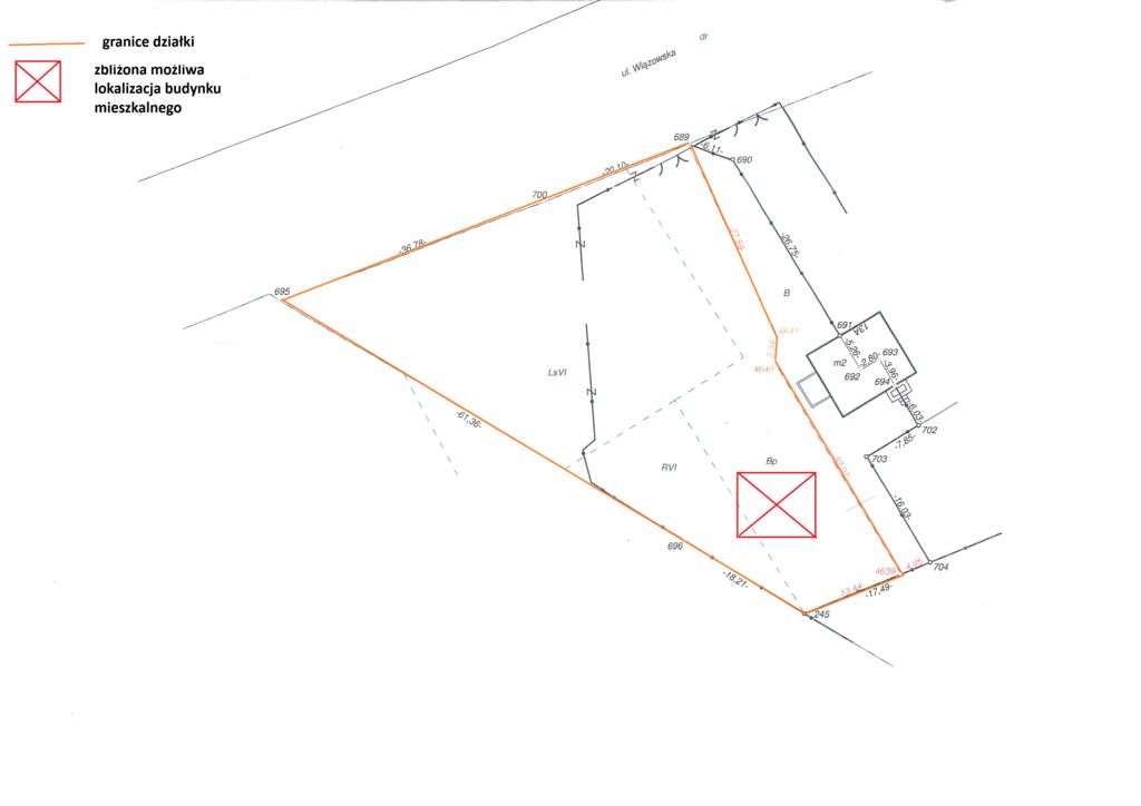
W ofercie działka o powierzchni 2 123 m2, położona w Emowie (gmina Wiązowna) przy ul. Wiązowskiej na granicy Józefowa i Wiązowny.
Procedowane warunki zabudowy na dom wolnostojący:
– budynek 2 kondygnacyjny,
– wysokość do 9 m,
– powierzchnia biologicznie czynna 60-80%,
– powierzchnia inwestycji 922 m2
Parametry działki:
– kształt nieregularny
– ukształtowanie zróżnicowane, lekko nachylone
– szerokość od ul. 57 m, długość: 80m
Media: gaz, woda bezpośrednio w ul. Wiązowskiej, woda miejska od ul. Świderskiej lub studnia na działce, brak kanalizacji (szambo)
Klasyfikacja gruntu: tereny mieszkaniowe 649 m2, grunty orne 273 m2, lasy 1 201 m2
Atuty:
– parcela pokryta jest lasem sosnowym, który oddziela część mieszkaniową od głównej drogi
– w spacerowej odległości przepływają rzeki Mienia i Świder
– obok działki rozpościera się Rezerwat Świder oraz tereny leśne. Idealne miejsce do aktywnego spędzania czasu wolnego.
– procedowane warunki zabudowy
– sąsiedztwo luźnej zabudowy jednorodzinnej
– dojazd drogą asfaltową: Warszawa 30 minut, Wiązowna 4 minuty, Józefów 5 minut
– szybki dojazd do S17 (7 minut) i S2 (10 minut)
Lokalizacja:
Działka położona jest na granicy Józefowa i Emowa, bezpośrednio przy ul. Wiązowskiej.
W sąsiedztwie tereny zielone oraz luźna zabudowa jednorodzinna.
Zapraszam na prezentację






