BSC Nieruchomości - Warszawa

Trzypokojowe na Bielanach

Trzypokojowe na Bielanach
Warszawa Bielany
Na sprzedaż 629.000zł - Mieszkanie
354442 50.72 m2 3 Ilość pokoi 1976 Rok budowy 2026-04-19 12:07:28

Lokalizacja, lokalizacja… i jeszcze raz lokalizacja

To mieszkanie spełnia wszystkie trzy kryteria, a nawet więcej.

Nieruchomość położona jest na warszawskich Bielanach, przy ul. Szekspira, w rejonie skrzyżowania ulic Kasprowicza, Sokratesa i Przy Agorze. Zaledwie ok. 4 minuty spacerem dzielą ją od stacji metra Młociny oraz Wawrzyszew.
W bezpośrednim sąsiedztwie znajduje się pełna infrastruktura miejska, a jednocześnie mnóstwo dojrzałej zieleni, z której Bielany słyną od lat.

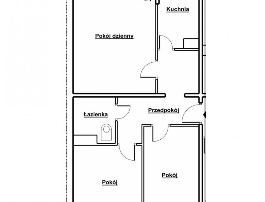
Układ i funkcjonalność:

Po wejściu do mieszkania kolejno:
– przedpokój (zachowana boazeria), z dużą ilością szaf i schowków,
– po prawej oddzielna, widna kuchnia,
– pokój dzienny z wyjściem na przestronną loggię (ekspozycja wschodnia).
– Kuchnię i salon oddziela ścianka działowa — istnieje możliwość ich połączenia i stworzenia nowoczesnej strefy dziennej.

Wracając do przedpokoju, mamy dostęp do:
– dwóch ustawnych sypialni z oknami na zachód — na tym piętrze zapewniają one efektowne widoki zachodzącego słońca,
– łazienki z wanną, WC oraz miejscem na pralkę.

Dodatkowe informacje
– podłogi: panele podłogowe, w pokoju dziennym PCV,
– mieszkanie wymaga gruntownego odświeżenia lub remontu, co daje pełną swobodę aranżacyjną,
– czynsz administracyjny: ok. 650 zł.

Stan prawny

Spółdzielcze własnościowe prawo do lokalu z możliwością założenia księgi wieczystej, zakup można kredytować.

Dodatkowe atuty
– piwnica przynależna do mieszkania (poziom -1),
– nielimitowana liczba bezpłatnych miejsc parkingowych przed budynkiem
(dodatkowo w okolicy parkingi strzeżone i społeczne).

? Zapraszam do kontaktu i umówienia prezentacji
To oferta z ogromnym potencjałem — zarówno do zamieszkania, jak i jako inwestycja.

  • Piętro: 10
  • Powierzchnia użytkowa: 50.72
  • Liczba pięter: 11

Rodzaj rynku

Mapa

Similar Properties