Na sprzedaż 1.500.000zł - Mieszkanie
4 pokoje dla rodziny – duża loggia – Wola Jana Kazimierza
Szukasz miejsca, w którym twoja rodzina będzie mogła wygodnie mieszkać przez wiele lat?
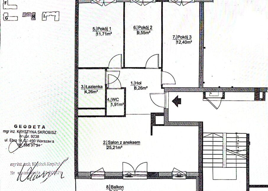
Ta jasna i funkcjonalna przestrzeń 73,3 m² przy ul. Jana Kazimierza została zaprojektowana z myślą o codziennym komforcie domowników.
ATUTY:
Wyobraź sobie poranki z kawą na loggii i spokojne rodzinne wieczory w jasnym salonie.
• 4 ustawne pokoje – każdy domownik ma swoją przestrzeń do nauki, pracy i odpoczynku
• Dwustronne mieszkanie – naturalne światło przez większą część dnia
• Duża loggia – idealne miejsce na relaks, rośliny lub kącik wypoczynkowy
• Gotowe do wprowadzenia – mieszkanie wyremontowane i w pełni umeblowane
• Budynek z 2020 roku – nowoczesna inwestycja z zadbanymi częściami wspólnymi
• Miejsce parkingowe w garażu podziemnym – wygoda codziennego parkowania
NIERUCHOMOŚĆ:
Funkcjonalny układ pozwala wygodnie oddzielić strefę wspólną od prywatnej.
• Salon z wyjściem na dużą loggię – przestrzeń na wspólne posiłki i rodzinne spotkania
• Sypialnia główna – komfortowa przestrzeń dla rodziców
• Dwa dodatkowe pokoje – idealne dla dzieci, na gabinet lub pokój gościnny
• Łazienka oraz funkcjonalny przedpokój z miejscem do przechowywania
• 73,3 m² powierzchni – przemyślany układ pomieszczeń
Mieszkanie znajduje się na 3 piętrze nowoczesnego budynku przy ul. Jana Kazimierza 23B na warszawskiej Woli.
STAN PRAWNY:
• Pełna własność – możliwość zakupu na kredyt
• Miejsce parkingowe w garażu podziemnym dodatkowo płatne 50 000 zł
OKOLICA:
Jana Kazimierza to jedna z najbardziej dynamicznie rozwijających się części Woli.
– Szkoły i przedszkola – wygodne rozwiązanie dla rodzin z dziećmi
– Sklepy, piekarnie i restauracje – codzienne sprawy załatwisz w kilka minut
– Place zabaw i tereny spacerowe – idealne na rodzinne popołudnia
– Dobra komunikacja z centrum Warszawy
– Nowoczesna, rozwijająca się okolica z pełną infrastrukturą
To miejsce łączy miejski styl życia z wygodą i spokojem codziennego funkcjonowania.
Jeśli szukasz mieszkania, które zapewni przestrzeń dla dzieci i komfort dla dorosłych, ta oferta zdecydowanie zasługuje na Twoją uwagę.
Z przyjemnością pokażę Ci tę nieruchomość i przeprowadzę przez cały proces zakupu.
Zapraszam do kontaktu.
Starszy doradca ds. Nieruchomości
Vadym Chuchmii
Wiarygodna Sprzedaż Nieruchomości Eteria Consulting
- Piętro: 3
- Liczba pięter: 6















