Na sprzedaż 1.300.000zł - Mieszkanie
Mam przyjemność zaprezentować 2-pokojowe mieszkanie położone na Starym Mokotowie, w kamienicy z 1936 roku. Ta zabytkowa kamienica została zniszczona w ponad 50% podczas II wojny światowej, a następnie odbudowana i odrestaurowana, zachowując swój przedwojenny charakter i niepowtarzalny klimat.
ATUTY NIERUCHOMOŚCI
▪️Topowa lokalizacja – serce Starego Mokotowa
▪️Funkcjonalny układ z dużym potencjałem zmian
▪️Miejsce parkingowe
▪️Dwa balkony
LOKALIZACJA
Mieszkanie na Starym Mokotowie to doskonałe połączenie zielonej, spokojnej okolicy z pełnym dostępem do miejskich udogodnień. W pobliżu znajdują się Park Morskie Oko i Pola Mokotowski, liczne restauracje, kawiarnie, sklepy oraz szkoły.
Świetna komunikacja: 2 minuty pieszo do przystanków tramwajowych i autobusowych, 6 minut spacerem do stacji metra Pole Mokotowskie, a do centrum Warszawy można dojechać w 10-12 minut. W okolicy znajduje się również renomowana Szkoła Główna Handlowa oraz liczne ośrodki kultury, co czyni to miejsce idealnym zarówno do zamieszkania, jak i pod inwestycję.
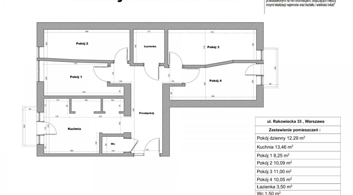
ROZKŁAD MIESZKANIA – 70,14 m² +piwnica oko 3 m2 + suszarnia
Mieszkanie składa się z dwóch niezależnych pokoi o powierzchni ok. 20 m² każdy. Obecnie zostały one dodatkowo podzielone lekką ścianką z karton-gipsu, którą w razie potrzeby można łatwo usunąć, przywracając pierwotny układ.
Do dyspozycji jest oddzielna, jasna kuchnia z wyjściem na balkon, łazienka z wanną, osobna toaleta oraz przestronny przedpokój z pawlaczem i licznymi szafami. Dzięki ścianom działowym układ mieszkania można dowolnie aranżować, np. przenieść kuchnię do salonu, tworząc aneks kuchenny, lub wydzielić dodatkowy pokój z balkonem.
Na podłogach znajduje się oryginalny, drewniany parkiet, który po odnowieniu (cyklinowaniu) odzyska swój dawny blask. Dwustronna ekspozycja okien (północ-południe) zapewnia doskonałe doświetlenie wnętrz i sprawia, że mieszkanie wydaje się jeszcze bardziej przestronne.
BUDYNEK
Mieszkanie znajduje się na 3. piętrze 3-piętrowej kamienicy 1950 roku.W budynku przeprowadzono wymianę pionów wodno-kanalizacyjnych oraz grzewczych jak i elektryki. Klatka schodowa jest zadbana, a na terenie posesji, od strony oficyny, znajduje się parking dla mieszkańców +dodatkowo miejsce parkingowe na ulicy abonament roczny – 30 zł
OTOCZENIE
Stary Mokotów to miejsce z niepowtarzalnym klimatem, pełne uroczych kawiarni, restauracji i parków. W najbliższej okolicy znajdują się także sklepy, teatr oraz Szkoła Główna Handlowa.
To doskonała propozycja zarówno dla osób szukających mieszkania dla siebie, jak i dla inwestorów poszukujących dobrej lokaty kapitału. Zdecydowanie warto zobaczyć je na żywo, aby poczuć wyjątkowy klimat tego miejsca.
STAN PRAWNY:
Pełna własność z założoną księgą wieczystą, co umożliwia posiłkowanie się kredytem.
- Piętro: 3
- Powierzchnia użytkowa: 70.14
- Liczba pięter: 3













