Na sprzedaż 730.000zł - Mieszkanie
Mam zaszczyt przedstawić Państwu wyjątkowe, dwupokojowe mieszkanie z możliwością wydzielenia trzeciego pokoju, usytuowane w znamienitej, przedwojennej części Warszawskiej Starej Ochoty, przy ul. Grójeckiej 42.
Położenie to zapewnia nie tylko wyśmienity dostęp do wszelkich środków komunikacji miejskiej, wiodących w każdy zakątek stolicy, lecz również bliskość terenów zielonych oraz renomowanych uczelni wyższych – Warszawskiego Uniwersytetu Medycznego oraz Politechniki Warszawskiej.
Kamienica wzniesiona w roku 1955, administrowana przez Wspólnotę Mieszkaniową we współpracy z firmą zarządzającą „GGKO”, prezentuje się okazale i utrzymana jest w bardzo dobrym stanie technicznym. W ostatnich latach dokonano wymiany pionów wodno-kanalizacyjnych, instalacji elektrycznej oraz gazowej. Budynek objęty jest nadzorem monitoringu, co zapewnia mieszkańcom spokój i bezpieczeństwo. Klatka schodowa oraz winda oczekują na godny ich charakteru lifting bądź wymianę.
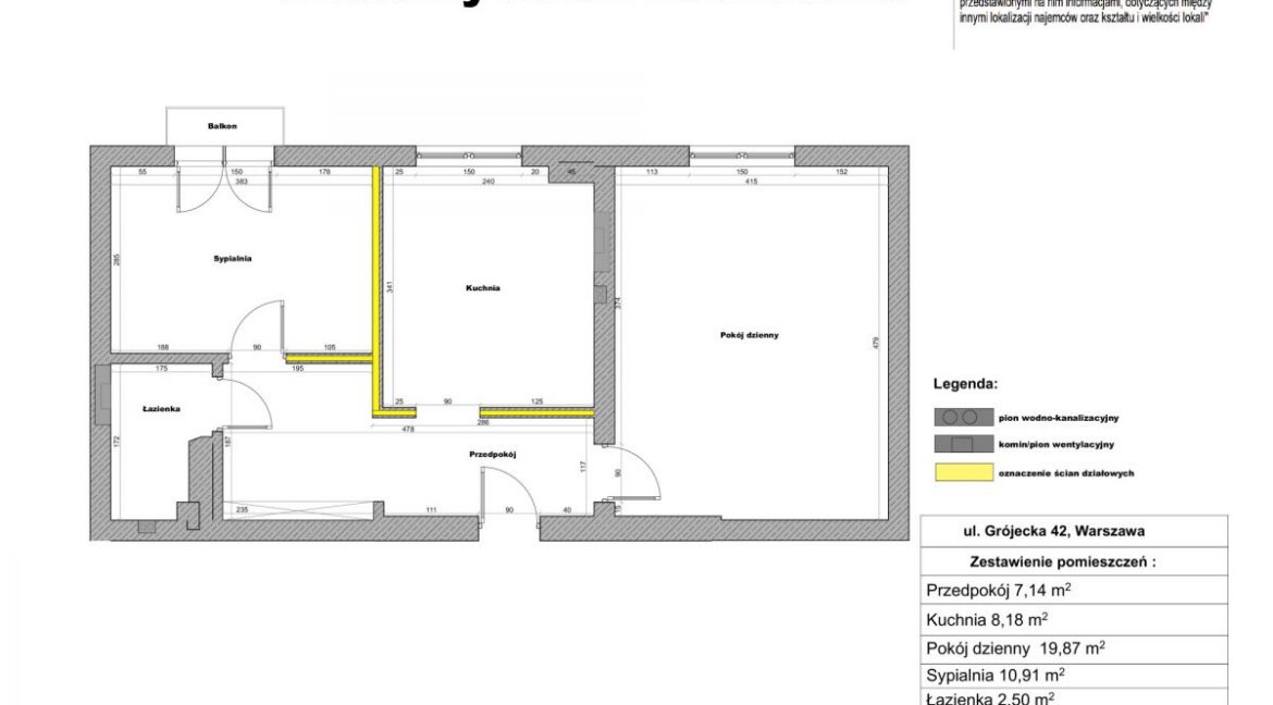
ROZKŁAD – 47,27m2 (ekspozycja wschodnia) –> po pomiarach 48,60m2
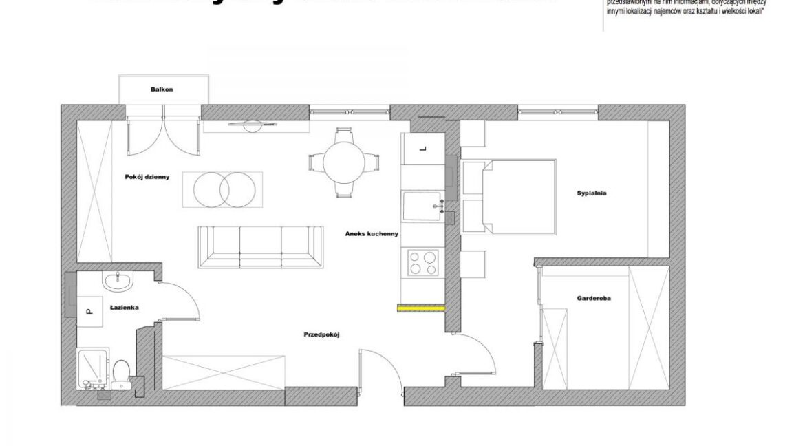
~ salon z możliwością stworzenia aneksu kuchennego,
~ widna kuchnia, którą z łatwością można przemienić w pokój dziecka lub elegancki gabinet,
~ oddzielna sypialnia z małym balkonem,
~ łazienka z prysznicem oraz miejscem na pralkę,
~ przestronny przedpokój z pojemną zabudową,
+ możliwość korzystania z piwnicy.
LOKALIZACJA
Nieruchomość położona jest w sercu Warszawskiej Starej Ochoty – jednej z najlepiej skomunikowanych i najbardziej cenionych dzielnic w stolicy. W najbliższej okolicy znajdują się liczne punkty handlowo-usługowe, przystanki autobusowe i tramwajowe, co gwarantuje szybki i wygodny dojazd do centrum oraz innych części miasta.Dojazd komunikacją: ok. 20 minut do centrum,
Po sąsiedzku znajdziemy urokliwe enklawy zieleni: Plac Baśniowy, Park Marii Skłodowskiej-Curie czy Park Forty Korotyńskiego. W niedalekiej odległości mieszczą się również prestiżowe uczelnie oraz ważne węzły komunikacyjne: Dworzec Zachodni (ok. 2 km) oraz Lotnisko Chopina (ok. 5,2 km).
DODATKOWE INFORMACJE
~ niezamieszkiwane/ dostępne od zaraz,
~ możliwość korzystania z miejsca parkingowego na zamkniętym terenie budynku,
~ wymaga przeprowadzenia generalnego remontu – idealne do stworzenia wnętrza według własnego projektu,
~ wysokość sufitów 275H,
~ czynsz wraz z funduszem remontowym: 770 PLN.
Nieruchomość stanowi odrębną własność z Księgą Wieczystą, co umożliwia zakup przy wykorzystaniu finansowania kredytowego. Chętnie pomogę w przeprowadzeniu wszelkich formalności.
- Piętro: 4
- Powierzchnia użytkowa: 47.27
- Liczba pięter: 5













