Na sprzedaż 1.100.000zł - Mieszkanie
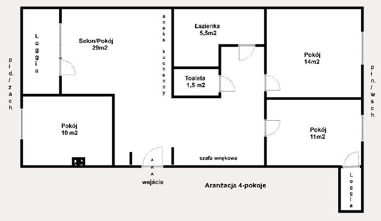
Na sprzedaż przestronne, rozkładowe 3-pokojowe mieszkanie o powierzchni 74,4 m², zlokalizowane na 5 piętrze z 10 pięter budynku z 2007 roku przy al. Stanów Zjednoczonych tu obok ronda Wiatraczna. W skład lokalu wchodzą:
- salon (ok. 29 m²) z wyjściem na loggię z widokiem na patio i budynek od wewnątrz;
- dwa oddzielne pokoje (ok. 14 m² i 11 m²), przy czym mniejszy pokój posiada wyjście na drugą zabudowaną loggię;
- kuchnia z oknem (częściowo otwarta na salon) o pow. ok. 6 m²;
- łazienka z wanną, ok. 4,5m² ;
- oddzielna toaleta, ok. 1,5 m²
- przedpokój o pow. ok. 9 m² (z miejscem na dużą szafę wnękową w zabudowie.
Mieszkanie dwustronne, idealnie dzieli mieszkanie na część dzienną oraz sypialnianą. Ekspozycja dwustronna na płd.-zach. oraz płn. wsch. Mieszkanie do własnej aranżacji, łatwa możliwość zmiany układu pomieszczeń otrzymując 4-pokojowe mieszkanie (3 sypialnie i salon z aneksem kuchennym. Z uwagi na usytuowanie, mieszkanie jest bardzo ciche, jak na tę lokalizację.
Na podłogach w pokojach drewniany parkiet w bardzo dobrym stanie. Wysokość pomieszczeń wynosi 260 cm, co zwiększa poczucie przestrzeni. Lokal do odświeżenia lub częściowego remontu.
Budynek 10-kondygnacyjny, klatki schodowe w dobrym stanie, duża winda. Brak bezpośredniego sąsiedztwa na klatce schodowej z innymi mieszkaniami.
Wokół zadbane otoczenie, mnóstwo punktów handlowo-usługowych, bazarek (z codzienną dostawą świeżych warzyw i owoców). Bardzo dobra lokalizacja – tuż obok rondo Wiatraczna, przystanki komunikacji miejskiej (tramwaj, autobus), z łatwym połączeniem z innymi dzielnicami. Dojazd komunikacją do ścisłego centrum zajmuje ok. 25 min.
Informacje dodatkowe:
- lokal stanowiący odrębną nieruchomość, bez obciążeń, możliwość zakupu posiłkując się kredytem hipotecznym;
- opłaty na rzecz Spółdzielni Mieszkaniowej (wraz z zaliczkami na media dla 2 osób /woda zimna, ciepła, ogrzewanie, wywóz śmieci/ wynosi ok. 990 zł/miesięcznie;
- brak miejsca postojowego w garażu podziemnym oraz komórki lokatorskiej.
Dostępne do oględzin od 01 października Zapraszam na prezentację.
- Piętro: 5
- Powierzchnia użytkowa: 74.40
- Liczba pięter: 10












