Na sprzedaż 670.000zł - Mieszkanie
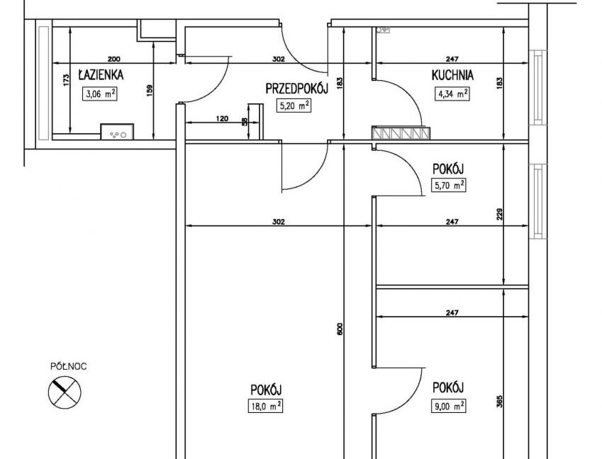
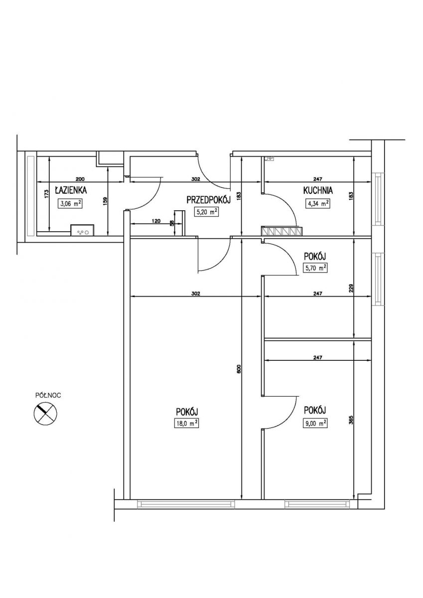
Na sprzedaż ustawne 3 pokojowe mieszkanie o powierzchni 45,3 m², zlokalizowane Mokotowie – Służew. To idealna propozycja dla osób szukających przestrzeni do życia lub atrakcyjnej nieruchomości inwestycyjnej.
Mieszkanie znajduje się w dobrze rozwiniętej okolicy, z szybkim dostępem do komunikacji miejskiej – w tym nowej linii tramwajowej, która zapewnia wygodny dojazd do centrum Warszawy.
Najważniejsze atuty nieruchomości:
• kameralna, cicha okolica – budynek otoczony zielenią, z dala od ruchliwych ulic
• funkcjonalny, rozkładowy układ pomieszczeń
• możliwość przywrócenia układu 3 pokoi
• duży potencjał aranżacyjny – opcja stworzenia salonu z aneksem kuchennym i dwóch sypialni
• balkon (loggia) oraz przestronna piwnica (ok. 5 m²)
• mieszkanie dostępne od zaraz
• zadbany budynek po modernizacji części wspólnych
• pełna infrastruktura handlowo-usługowa w najbliższym otoczeniu
Lokalizacja:
• przystanek autobusowy – ok. 2 minuty pieszo
• Metro Służew -13 min
• W bliskiej okolicy trzy parki – Park nad stawek Służewieckim, Park Pawlukiewicza, Park Dolinka Służewiecka
• Galeria Mokotów – ok. 3 minut komunikacją
• 100 m OSIR Mokotów
• sklepy i usługi – w zasięgu kilku minut
Układ mieszkania (45,3 m²): salon, dwie sypialnie, widna oddzielna kuchnia, łazienka z prysznicem oraz przedpokój. Lokal do odświeżenia/ lub własnej aranżacji. W mieszkaniu wymieniono instalację elektryczną, zrobiono gładzie.
Budynek: Mieszkanie usytuowane jest na 10. (ostatnim) piętrze w budynku z 1974 roku. Budynek przeszedł remont pionów wodnych -kanalizacyjnych, instalacji gazowej, wymianę wind.
Stan prawny: Pełna własność z księgą wieczystą, możliwość posiłkowania sie kredytem.
Dodatkowo do mieszkania przynależy piwnica 1,4 m2
Możliwość przejęcia umowy najmu umożliwiającą korzystanie schoweka na kondygnacji tej samej co lokal.
- Piętro: 10
- Liczba pięter: 10















