Na sprzedaż 1.599.000zł - Dom
Dom bliźniak 158 m² 4 sypialnie ogród Wawer, ul. Dzięcioła
Na sprzedaż funkcjonalny dom w zabudowie bliźniaczej o powierzchni ok. 158 m², położony na działce 327 m² w spokojnej części Wawra.
Nieruchomość oferuje wygodny układ dla rodziny: przestronny salon z kominkiem i wyjściem na słoneczny ogród (ekspozycja południowa), częściowo otwartą kuchnię oraz aż 4 sypialnie na piętrze. Dodatkowym atutem jest garderoba, duża łazienka oraz garaż w bryle budynku.
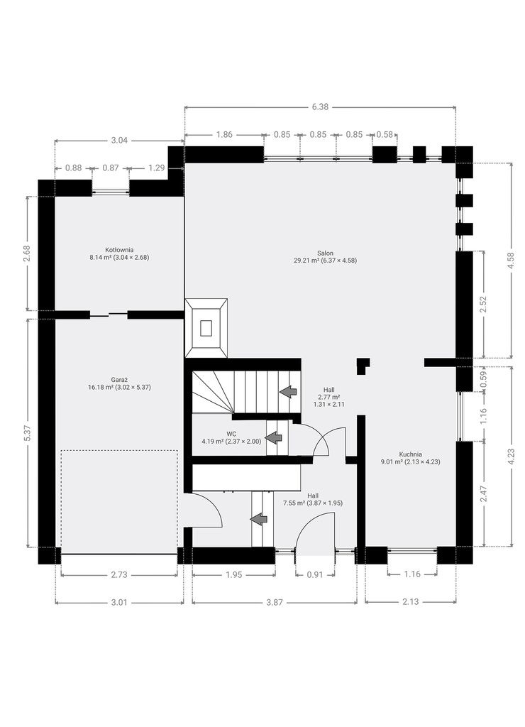
Rozkład pomieszczeń:
Parter:
• salon z kominkiem i wyjściem na ogród
• częściowo otwarta kuchnia
• hol
• WC
• wiatrołap
• garaż
• kotłownia
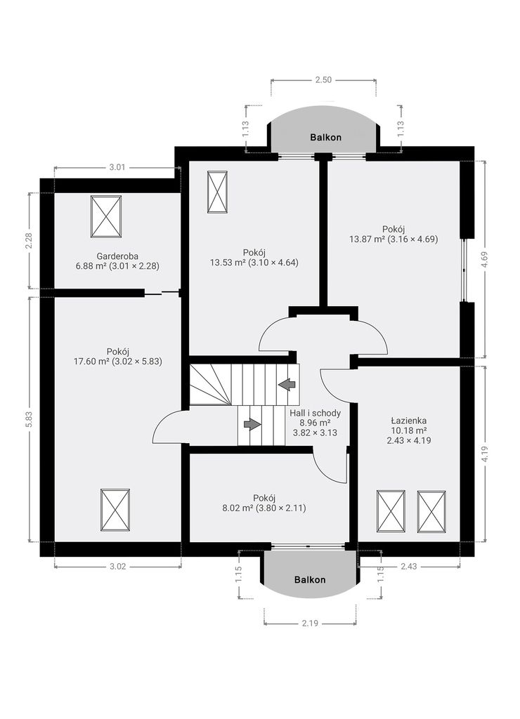
Piętro:
• 4 sypialnie (w tym jedna z garderobą)
• łazienka z wanną i prysznicem
Poddasze:
• przestrzeń do przechowywania
Dom z 2009 roku, ogrzewany gazem, z własnym ujęciem wody i planowanym podłączeniem do kanalizacji. Na posesji znajdują się dodatkowe miejsca parkingowe, a teren jest ogrodzony, objęty monitoringiem i alarmem.
Zadbany ogród z tarasem (markiza elektryczna) oraz spokojna, zielona okolica zapewniają komfort codziennego życia. W pobliżu sklepy, szkoły, komunikacja miejska oraz szybki dojazd do centrum Warszawy.
Zapraszam na prezentację.
- Powierzchnia użytkowa: 157.99
- Powierzchnia działki: 327.00
- Liczba pięter: 1















