Na sprzedaż 1.990.000zł - Dom
Atrakcyjny segment skrajny w prestiżowej lokalizacji – Stara Sadyba. Nieruchomość sprzedawana razem z projektem przebudowy.
(ENGLISH VERSION BELOW)
ATUTY
– Spokojna oraz prestiżowa lokalizacja
– Wiele możliwości aranżacyjnych
– Atrakcyjna cena
– Zastosowanie biurowe oraz mieszkalne
NIERUCHOMOŚĆ
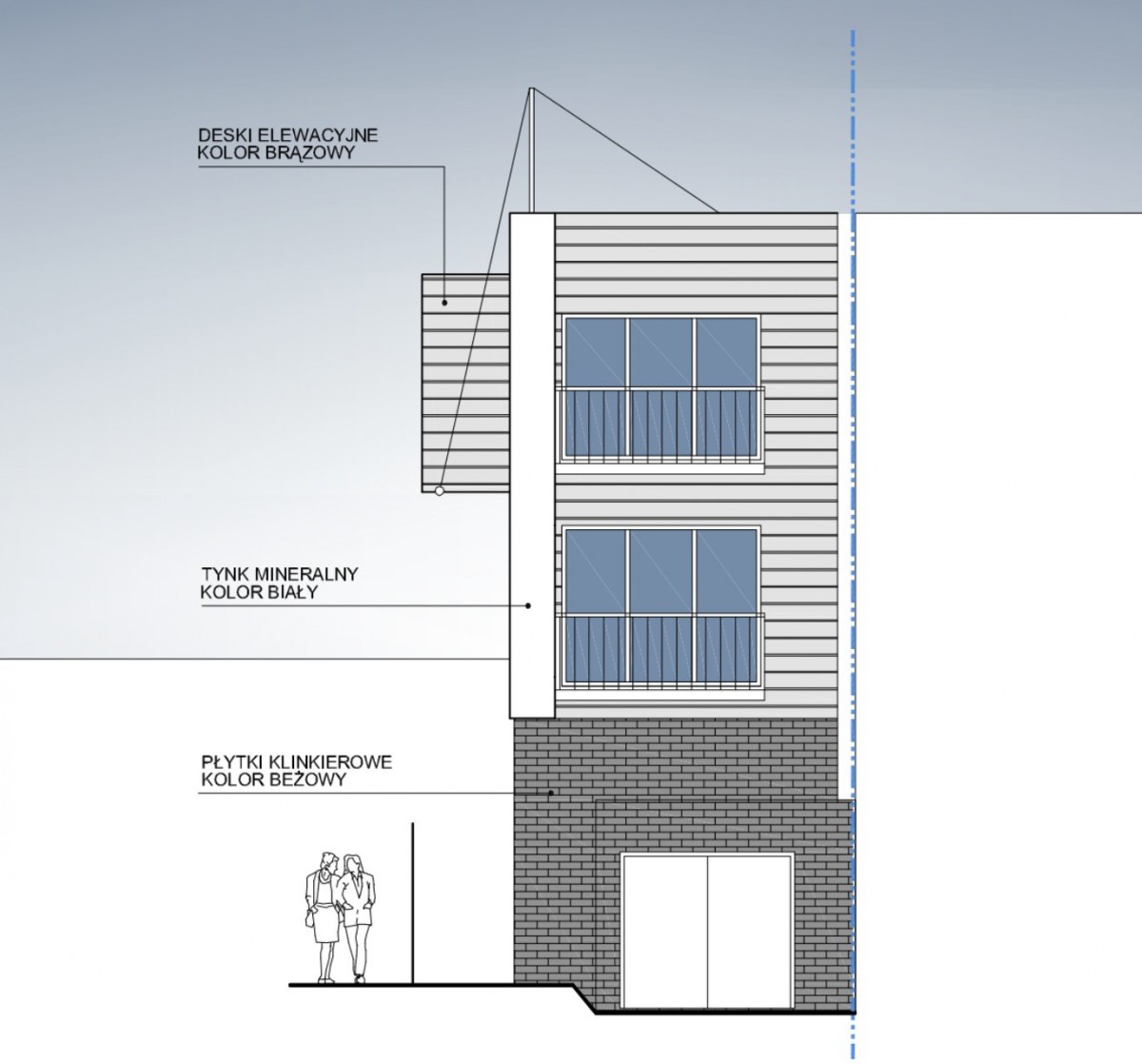
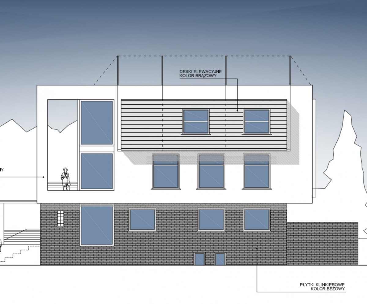
Urokliwa oraz bardzo zielona działka 200m2 z licznymi nasadzeniami, kształt prostokątny, ulokowana w głębi Sadyby. Posadowiony na niej segment o powierzchni również 200m2, jest obecnie przygotowany pod działalność gospodarczą lub pod zamieszkanie. Oferuje pełną infrastrukturę biurową, kamery monitoringu oraz klimatyzację na każdym piętrze. Na podłogach zostały ułożone wykładziny dywanowe, a pod nimi drewniane deski. Dom posiada ogromny potencjał aranżacyjny, praktyczny rozkład oraz przestronny taras na pierwszym piętrze. Dzięki ekspozycji południowej, wschodniej I zachodniej nieruchomość wpuszcza bardzo dużo naturalnego światła.
UKŁAD POMIESZCZEŃ
W przyziemiu wydzielona jest kuchnia, łazienka oraz piwnica.
Na parterze mieści się pokój (sala konferencyjna) z łazienką oraz przestronny hol, który może zostać wykorzystane między innymi na cele biurowe.
Na piętrze obecnie znajduje się duży pokój z wyjściem na obszerny taras oraz toaleta.
Na ostatnim piętrze mieszczą się 2 pokoje.
LOKALIZACJA
Segment znajduje się na Sadybie, jest to jedna z najbardziej pożądanych lokalizacji na tym terenie. Wokół znajdują się siedziby wielu znanych firm oraz ambasad. W okolicy znajdują się również liczne placówki edukacyjne oraz roślinność, swoim wyglądem przypominającą ulice Konstancina.
– Jedynie 1,5 km do centrum handlowego Sadyba Best Mall
– Wokół budynku znajduje się spora liczba miejsc parkingowych
– Pomimo bliskości ulicy Sobieskiego, w budynku jest bardzo cicho
– Przystanek komunikacji miejskiej w bliskiej odległości od budynku
DODATKOWE INFORMACJE
Dom idealnie nadaje się na siedzibę firmy lub pod zamieszkanie.
Na działce znajduje się ogródek, w którym obecnie wydzielone jest miejsce parkingowe. Dom sprzedawany z umową najmu do 01.03.2026 z atrakcyjną stopą zwrotu!
attractive edge segment in a prestigious location – Stara Sadyba. The property is sold together with a reconstruction project.
Advantages
– Quiet and prestigious location
– Many arrangement possibilities
– Attractive price
– Office and residential use
PROPERTY
A charming and very green 200m2 plot with numerous plantings, rectangular shape, located in the depths of Sadyba. The segment located on it is currently prepared for business or residential purposes. It offers full office infrastructure, monitoring cameras and air conditioning on each floor. Carpets have been laid on the floors, and wooden boards underneath. The house has huge arrangement potential, a practical layout and a spacious terrace on the first floor. Thanks to the southern, eastern and western exposure, the property lets in a lot of natural light.
ROOM LAYOUT
The ground floor has a separate kitchen, bathroom and basement.
On the ground floor there is a room (conference room) with a bathroom and a spacious hall, which can be used, among other things, for office purposes.
On the first floor there is currently a large room with access to a spacious terrace and a toilet.
On the top floor there are 2 rooms.
LOCATION
The segment is located in Sadyba, which is one of the most desirable locations in this area. There are headquarters of many well-known companies and embassies around. There are also numerous educational institutions and vegetation in the area, reminiscent of the streets of Konstancin.
– Only 1.5 km to the Sadyba Best Mall shopping center
– There are a large number of parking spaces around the building
– Despite the proximity of Sobieskiego Street, the building is very quiet
– Public transport stop close to the building
ADDITIONAL INFORMATION
The house is ideal for a company headquarters or for living.
There is a garden on the plot, in which a parking space is currently allocated. House sold with a lease agreement until 01.03.2026 with an attractive rate of return!
- Powierzchnia użytkowa: 200.00
- Powierzchnia działki: 200.00
- Liczba pięter: 2













