Na sprzedaż 2.750.000zł - Dom
Prezentujemy wyjątkową nieruchomość położoną w sercu zielonych Stegien, przy cichej i kameralnej ulicy zdominowanej przez zabudowę jednorodzinną. Ten przestronny segment łączy w sobie prestiż lokalizacji z ogromnymi możliwościami adaptacyjnymi. To idealna propozycja zarówno dla wymagającej rodziny, jak i inwestora poszukującego obiektu pod siedzibę firmy, gabinety medyczne czy dochodowy najm krótkoterminowy.
O nieruchomości
Dom charakteryzuje się przemyślanym układem kondygnacji i półpięter, co pozwala na naturalne wydzielenie niezależnych stref użytkowych. Wnętrza są jasne i ustawne, a obecny układ ośmiu pokoi można z łatwością zrekonfigurować do dziesięciu oddzielnych pomieszczeń.
Nieruchomość jest w bardzo dobrym stanie technicznym – wymieniono instalacje elektryczne oraz wodne, co stanowi solidną bazę pod ewentualną aranżację. Klasyczne elementy wykończenia, takie jak drewniane podłogi oraz kominek w salonie, nadają wnętrzu ponadczasowego charakteru.
Dla nabywców ceniących rozwiązania gotowe do użytku, istnieje unikalna możliwość wykończenia nieruchomości „pod klucz” zgodnie z indywidualnymi potrzebami lub przygotowania jej jako gotowego produktu inwestycyjnego.
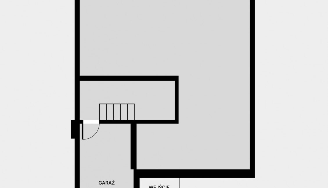
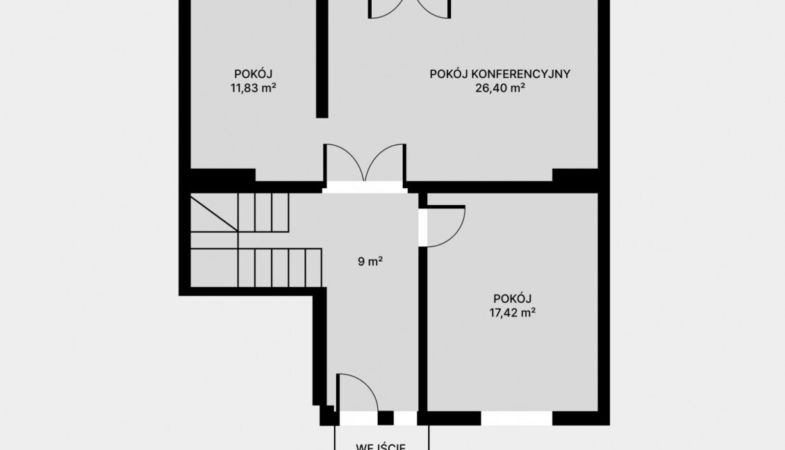
Rozkład pomieszczeńBudynek oferuje funkcjonalne rozplanowanie powierzchni na kilku poziomach:
Parter: Funkcjonalne zaplecze socjalne z wyposażeniem AGD, magazyn, toaleta oraz garaż w bryle budynku.
I Piętro: Reprezentacyjny salon z kominkiem i bezpośrednim wyjściem na taras oraz do zadbanego ogrodu, dwa dodatkowe pokoje oraz hol.
Półpiętra i Wyższe Kondygnacje: Łącznie pięć pokoi (w tym gabinet na półpiętrze), łazienka oraz zaadaptowane poddasze z dodatkowym strychem.
Lokalizacja i otoczenieMokotów/Stegny to jedna z najbardziej pożądanych lokalizacji w Warszawie. Nieruchomość znajduje się w otoczeniu pełnej infrastruktury miejskiej:
Komunikacja: Szybki dostęp do stacji Metra Służew oraz Wilanowska, bliskość Trasy Siekierkowskiej oraz głównych arterii (Al. Sikorskiego, Sobieskiego).
Rekreacja i Usługi: W bliskim sąsiedztwie Sadyba Best Mall, Tor Łyżwiarski Stegny, liczne ścieżki rowerowe oraz tereny zielone.
Edukacja: Dostęp do prestiżowych szkół i przedszkoli.
Kluczowe atuty
Powierzchnia 250 m2 z potencjałem wydzielenia do 10 pokoi.
Możliwość zakwaterowania do 20 osób w przypadku przeznaczenia pod najm pracowniczy.
Garaż oraz dwa dodatkowe miejsca parkingowe.
Prywatny, zadbany ogród z tarasem – rzadkość w tej lokalizacji.
Elastyczność przeznaczenia: od luksusowej rezydencji po obiekt komercyjny (SPA, biuro, klinika).
- Powierzchnia użytkowa: 250.00
- Powierzchnia działki: 320.00
- Liczba pięter: 2















