Na sprzedaż 898.000zł - Mieszkanie
Słoneczne, przestronne, 3-pokojowe mieszkanie 57 m² na Saskiej Kępie wśród zieleni
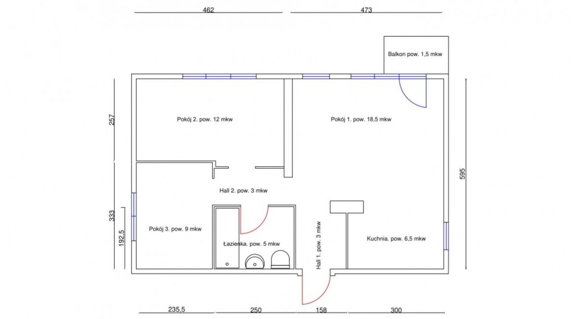
Trójstronne, 3-pokojowe mieszkanie z balkonem po generalnym remoncie przy ulicy Nubijskiej na Saskiej Kępie jest gotowe do zamieszkania.
Znakomite położenie na Saskiej Kępie, wśród wszechobecnej zieleni, tuż przy nadwiślańskich szlakach i w pobliżu Parku Skaryszewskiego. A także w otoczeniu urokliwej, niskiej zabudowy Saskiej Kępy, w tym ulicy Francuskiej, znanej z licznych kawiarni, restauracji i sklepów.
W najbliższej odległości sklepy, placówki bankowe i usługowe, szkoły i przedszkola, a także słynny saskokępski bazarek przy Egipskiej – codziennie świeże, najlepszej jakości produkty będą dosłownie na wyciągnięcie ręki.
Idealna komunikacja z centrum oraz innymi dzielnicami Warszawy; w bliskim sąsiedztwie planowana stacja III linii metra.
Budynek:
– 4. piętro w 4-piętrowym budynku z 1974 roku (bez windy);
– Blok po termomodernizacji, ocieplony;
– Piony i instalacje po wymianie;
– Planowana jest instalacja wind zewnętrznych do budynków.
Mieszkanie:
– po generalnym remoncie, wyposażone w klimatyzację;
– okna drewniane nowego typu oraz drzwi wejściowe antywłamaniowe;
– kuchnia w zabudowie, w tym zmywarka, lodówka, płyta indukcyjna i piekarnik;
– piony po wymianie, nowe instalacje elektryczne, w tym pod indukcję 430V.
Rozkład:
– salon z aneksem kuchennym (25 m²);
– sypialnia (13 m²);
– pokój gościnny/gabinet (9 m²);
– łazienka (4 m²),
a także przedpokój (6 m²) , balkon (1,5 m²) i piwnica.
Stan prawny:
– spółdzielcze własnościowe prawo do lokalu, Spółdzielnia Ateńska;
– grunty pod budynkiem są uregulowane;
– parking bezpłatny, zamykany pod domem.
Czy chcieliby Państwo zamieszkać w tym cichym i zielonym zakątku Saskiej Kępy?
Serdecznie zapraszam do kontaktu telefonicznego lub mailowego i umówienia się na prezentację mieszkania.
- Piętro: 4
- Liczba pięter: 4













