Na sprzedaż 9.800.000zł - Dom
W samym sercu zielonej Bielawy, tuż przy granicy z Konstancinem-Jeziorną, położona jest wyjątkowa rezydencja o powierzchni ok. 900 m², otoczona dojrzałym, starannie utrzymanym ogrodem. To miejsce, które łączy w sobie elegancję klasycznej architektury, komfort nowoczesnych rozwiązań i prywatność, jakiej trudno szukać w okolicach Warszawy.
Dom składa się z trzech kondygnacji oraz dodatkowej przestrzeni nad garażem. Został zaprojektowany z myślą o funkcjonalności i przestrzeni dla całej rodziny – z licznymi pokojami, prywatnymi łazienkami oraz strefą rekreacyjną, której centralnym punktem jest basen z jacuzzi zajmujący ponad 140 m².
Parter – strefa dzienna i relaksu
Reprezentacyjny parter to otwarta przestrzeń dzienna z naturalnym przepływem światła.
Znajduje się tu:
przestronna kuchnia (35 m²) z miejscem na stół rodzinny,
jadalnia (24 m²),
salon (58 m²) z wyjściem do ogrodu,
gabinet (21 m²),
pokój rekreacyjny / zabaw (36 m²),
oraz część techniczna i schowek przy garażu.
Największym atutem tej kondygnacji jest strefa wellness z basenem i jacuzzi (ponad 140 m²) – idealna przestrzeń na relaks i spotkania w gronie rodziny czy przyjaciół.
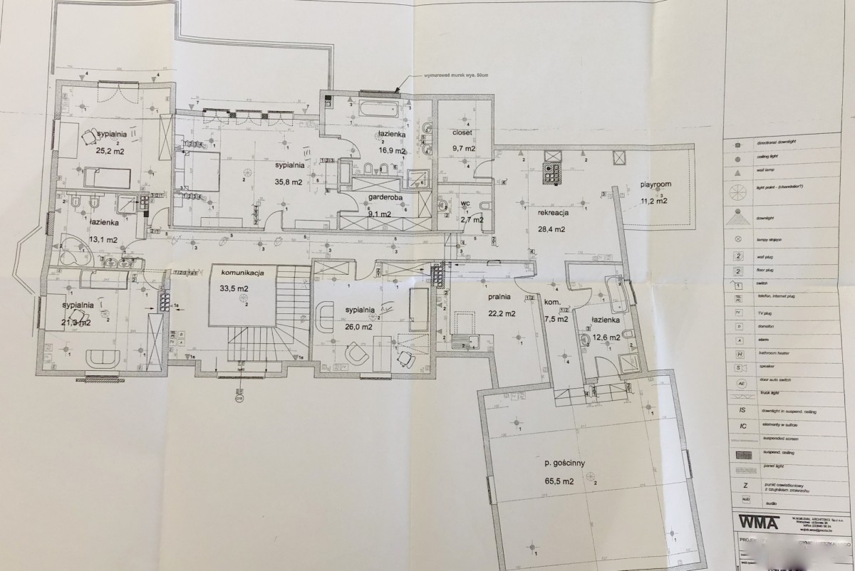
Piętro – prywatna strefa domowników
Na piętrze znajdują się cztery sypialnie:
główna (35 m²) z prywatną łazienką (17 m²), garderobą (9 m²) i wyjściem na duży taras z widokiem na ogród,
trzy pozostałe sypialnie (25, 21 i 26 m²),
dwie łazienki, oddzielne WC oraz pralnia.
Ponad garażem znajduje się dodatkowy, imponujący pokój o powierzchni 65 m², który może pełnić funkcję pracowni, sali fitness lub pokoju gier.
Piwnica – niezależne mieszkanie lub strefa klubowa
Piwnica o powierzchni użytkowej ok. 150 m² może stanowić samodzielne mieszkanie z osobnym wejściem.
Znajdują się tu:
pełna kuchnia z zabudową i AGD,
pokój z kominkiem,
pokój bilardowy,
dwie łazienki,
liczne schowki i pomieszczenia techniczne.
Dodatkowe atuty:
garaż na dwa samochody (ok. 70 m²),
parkiet dębowy na parterze i piętrze,
ogrodzona, prywatna działka,
cicha i zielona okolica z szybkim dojazdem do Warszawy,
możliwość zakupu z aktualnym, rzetelnym najemcą – idealna propozycja inwestycyjna.
To nieruchomość, która zachwyci każdego, kto ceni przestrzeń, prywatność i elegancję – a jednocześnie szuka miejsca, które realnie daje oddech od miasta, bez rezygnowania z jego bliskości.
- Powierzchnia użytkowa: 866.00
- Powierzchnia działki: 2524.00
- Liczba pięter: 2












