Na sprzedaż 585.000zł - Mieszkanie
Przytulne 2 pokoje z balkonem | Wola – ul. Złocienia | Blisko metra Młynów
Szukasz mieszkania w spokojnej, zielonej części Woli, z szybkim dojazdem do centrum i pełną infrastrukturą w zasięgu spaceru?
To miejsce, które łączy kameralny klimat z miejską wygodą.
—
MIESZKANIE
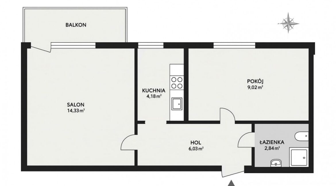
Na sprzedaż 2-pokojowe mieszkanie o powierzchni 36,6 m², położone na parterze niskiego, 3-piętrowego budynku z cegły z 1962 roku. Układ pomieszczeń jest wyjątkowo funkcjonalny i sprawia, że wnętrze wydaje się większe, niż wskazuje metraż.
W skład mieszkania wchodzą:
✔️jasny salon z miejscem na część jadalnianą,
✔️przytulna sypialnia,
✔️oddzielna, widna kuchnia z oknem,
✔️łazienka z wanną,
✔️przedpokój z miejscem na zabudowę.
Dodatkowo:
✔️balkon z widokiem na zieleń
✔️piwnica
✔️możliwość parkowania na terenie osiedla
✔️czynsz administracyjny: ok. 650 zł
Stan prawny
– pełna własność
– uregulowane grunty
– księga wieczysta
—
ATUTY
✔️ kameralny budynek w niskiej zabudowie
✔️ zielona, spokojna okolica z dużą ilością drzew
✔️ pełna infrastruktura tuż obok
✔️ świetna komunikacja – metro, tramwaj, autobus
✔️ idealne mieszkanie dla singla, pary lub jako inwestycja pod wynajem
—
LOKALIZACJA
Mieszkanie znajduje się w sercu Młynowa, jednej z najbardziej pożądanych części Woli.
To idealne połączenie ciszy i zieleni z doskonałą komunikacją z centrum Warszawy:
✔️ Metro Młynów – 8 minut spacerem
✔️ Tramwaje i autobusy w promieniu 400-500 m
✔️ PKP Warszawa Koło – 10 minut pieszo
✔️ Bliski dostęp do Al. Prymasa Tysiąclecia i Trasy W-Z
—
INFRASTRUKTURA
W okolicy wszystko, czego potrzeba na co dzień:
✔️sklepy, piekarnie, drogerie, apteki
✔️klimatyczne kawiarnie i restauracje
✔️szkoły, przedszkola, przychodnia
✔️zaledwie kilka minut spacerem do Parku Moczydło – z alejkami spacerowymi, tężnią i basenami letnimi
—
To mieszkanie to świetna propozycja dla osób, które cenią dobrą lokalizację, funkcjonalny układ i potencjał aranżacyjny.
W tej okolicy nieruchomości pojawiają się rzadko – nie przegap okazji!
Zadzwoń i umów się na prezentację – mieszkanie dostępne od zaraz!
- Liczba pięter: 3













