Na sprzedaż 920.000zł - Dom
Szukasz domu, który łączy nowoczesność z zielonym otoczeniem i świetnym dojazdem do Warszawy? Ta oferta to idealne rozwiązanie.
O nieruchomości:
Na sprzedaż atrakcyjny segment skrajny o powierzchni 118,6 m², położony na zadbanej działce o wielkości 500 m². To miejsce, w którym komfort życia spotyka się z prywatnością i spokojem.
Nieruchomość została zaprojektowana z myślą o funkcjonalności – każdy metr kwadratowy ma swoje przeznaczenie. Otwarta strefa dzienna z bezpośrednim wyjściem do ogrodu, osobna kuchnia, dwie pełne łazienki oraz garderoba to tylko niektóre z jej atutów.
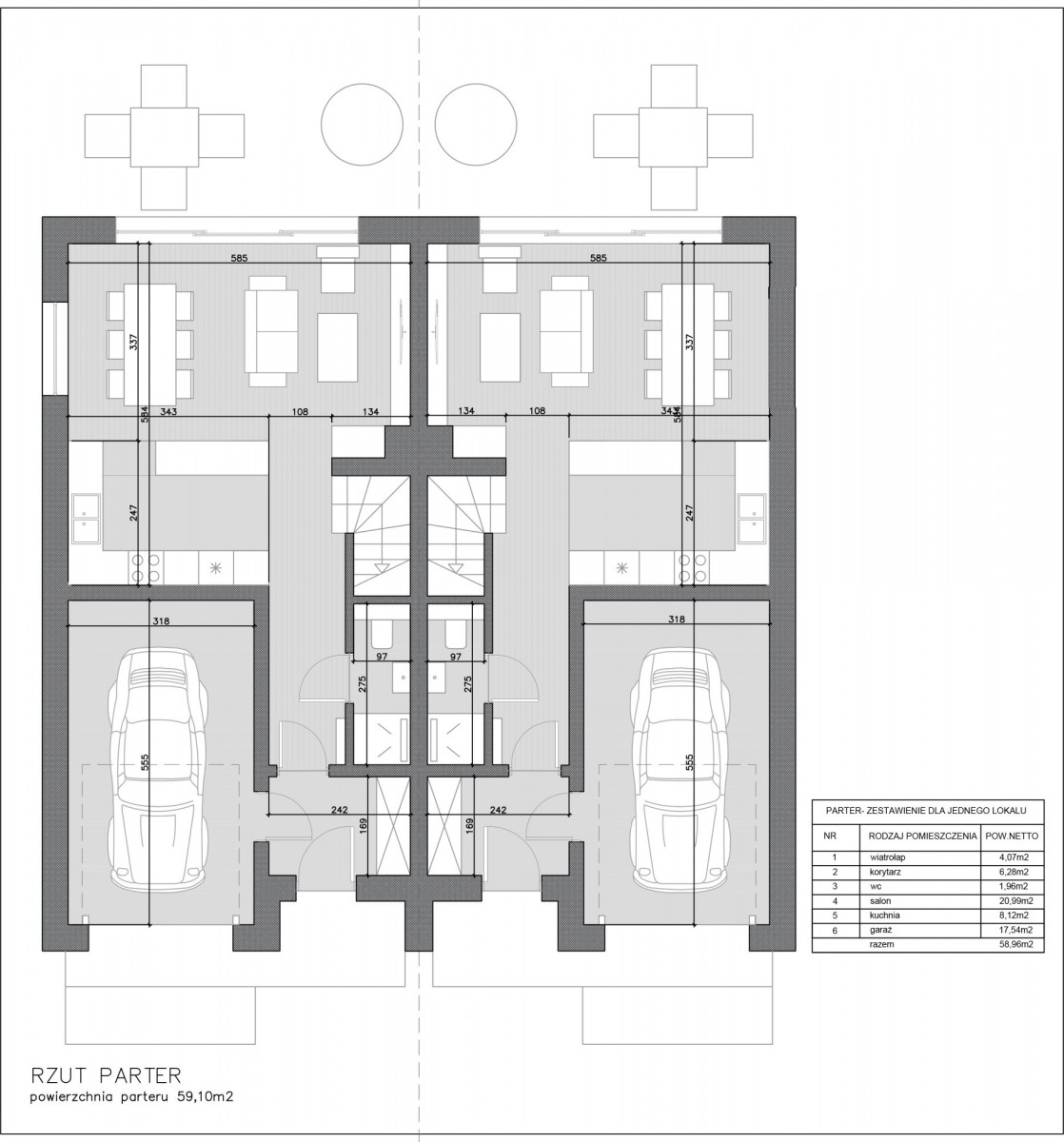
Rozkład pomieszczeń:
Parter – 58,96 m²:
- Przestronny salon z wyjściem na taras i ogród
- Kuchnia – osobna, funkcjonalna przestrzeń do gotowania
- Toaleta dla gości
- Wiatrołap z miejscem na szafę
- Garaż jednostanowiskowy z bezpośrednim wejściem do domu
Piętro – 59,59 m²:
- Trzy ustawne sypialnie
- Garderoba przy głównej sypialni
- Dwie łazienki
- Korytarz
Ogród i działka:
- Prywatny ogród o powierzchni ok. 380 m² – idealna przestrzeń na relaks, grilla czy plac zabaw
- Teren ogrodzony, z zadbaną zielenią i miejscem na taras
- Dwa miejsca postojowe, w tym jedno w garażu
Lokalizacja:
Dom położony jest w zielonej i spokojnej części Walendowa – przy ul. Ogrody Walendów. Okolica kameralna, bez uciążliwego ruchu, idealna do życia z dala od miejskiego zgiełku, ale bez rezygnacji z wygody.
W pobliżu:
- Sklepy, przedszkola, szkoły
- Tereny spacerowe i rekreacyjne
- Centrum Janki – 10 minut samochodem
- Szybki dojazd do Warszawy dzięki trasom S8 i S7
Atuty nieruchomości:
- Skrajny segment – więcej prywatności i naturalnego światła
- Duży ogród – rzadko spotykany w tego typu zabudowie
- Dwie łazienki – wygoda dla całej rodziny
- Garderoba przy głównej sypialni
- Garaż i dodatkowe miejsce parkingowe
- Spokojna okolica z dogodnym dojazdem do Warszawy
- Bliskość terenów zielonych i rekreacyjnych
Zapraszam na prezentację
Zadzwoń i umów się na spotkanie. Ta nieruchomość może być dokładnie tym, czego szukasz.
- Powierzchnia użytkowa: 118.60
- Powierzchnia działki: 500.00
- Liczba pięter: 1












