Na sprzedaż 2.295.000zł - Mieszkanie
PRZESTRONNY APARTAMENT W WILANOWIE Z DUŻĄ LOGGIĄ
Nowoczesny styl życia | Komfort i przestrzeń | Cisza i bezpieczeństwo | Luksusowe detale | Praktyczne udogodnienia
******
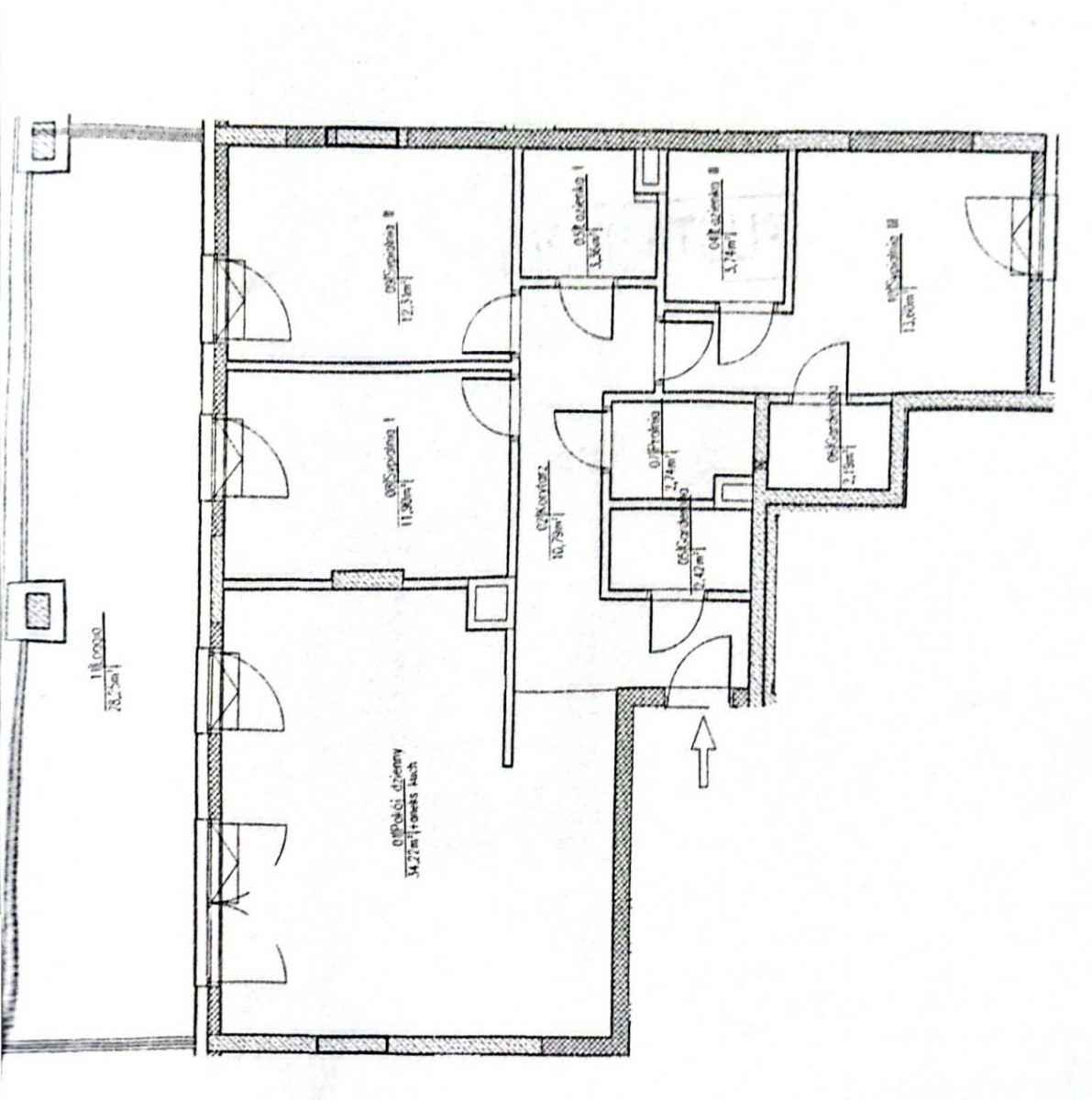
ROZKŁAD POMIESZCZEŃ:
*. Salon z aneksem kuchennym ma powierzchnię 35 m² i jest doskonale doświetlony dzięki
dużym oknom.
* Główna sypialnia (15 m²) znajduje się od strony patio i oferuje prywatną łazienkę z
prysznicem (3,5 m²) oraz wygodną garderobę (2,5 m²).
*. Dwie dodatkowe sypialnie (po 12 m² każda) znajdują się od strony drogi przeciwpożarowej, zapewniając spokój i prywatność.
*. Łazienka z wanną ma 3,5 m², a pomieszczenie gospodarcze – pralnia o powierzchni 2,5 m² –
może zostać zaadaptowane na dodatkową toaletę.
*. Bardzo przestronna loggia (27 m²) jest dostępna z salonu oraz dwóch sypialni i stanowi idealne miejsce do relaksu na świeżym powietrzu. Dodatkowo przy wejściu do mieszkania
znajduje się garderoba (2 m²), zapewniająca praktyczne miejsce do przec
STANDARD:
Apartament został starannie zaprojektowany przez architekta, łącząc funkcjonalność z najwyższym komfortem. Wnętrza wykończono materiałami najwyższej jakości, a elegancka, ponadczasowa deska dębowa nadaje przestrzeni wyjątkowego charakteru.
Przestronny salon, rozświetlony trzema dużymi oknami, harmonijnie łączy się z nowoczesną kuchnią, a dostęp do obszernej loggii pozwala cieszyć się chwilami relaksu w otoczeniu świeżego powietrza.
Główna sypialnia stanowi prywatną enklawę – z własną łazienką oraz przestronną garderobą, zapewniającą maksimum wygody.
Kuchnia została wyposażona w sprzęt AGD renomowanych marek. Liczne pojemne szafki i funkcjonalne rozwiązania przechowywania łączą elegancję z praktycznością. Apartament położony jest w wyjątkowo spokojnej lokalizacji – okna wychodzą zarówno na zielone patio, jak i na drogę przeciwpożarową, po której nie poruszają się samochody, co zapewnia ciszę i komfort.
LOKALIZACJA:
Apartament położony jest w prestiżowej dzielnicy Wilanów, w pobliżu licznych renomowanych szkół publicznych i międzynarodowych oraz przedszkoli i żłobków, co czyni tę lokalizację idealną dla rodzin.
Okolica sprzyja aktywnemu stylowi życia – w sąsiedztwie znajdują się baseny, korty tenisowe, trasy rowerowe oraz słynny Pałac Królewski w Wilanowie.
Bliskość restauracji, kawiarni, sklepów wielkoformatowych i punktów usługowych zapewnia wygodę codziennego życia, a dogodne połączenia komunikacyjne – autobusy, tramwaje i szybki dostęp do południowej obwodnicy Warszawy – umożliwiają sprawne przemieszczanie się po mieście.
DODATKOWE INFORMACJE:
Do mieszkania przynależy murowana komórka lokatorska o powierzchni 3 m² oraz dwa miejsca postojowe w garażu podziemnym na jednej platformie. Komórka oraz miejsca parkingowe są dostępne za dodatkową opłatą – odpowiednio 30 000 zł za komórkę i 60 000 zł za każde miejsce parkingowe.
Dodatkowo mieszkańcy mają do dyspozycji rowerownie oraz wózkownie usytuowane bezpośrednio przy klatce, co zapewnia wygodę i bezpieczeństwo codziennego użytkowania.
SERDECZNIE ZAPRASZAM NA PREZENTACJĘ.
- Piętro: 1
- Liczba pięter: 4












