Na sprzedaż 795.000zł - Mieszkanie
3 Pokoje z Prywatnym Ogródkiem – 2 minuty do PKP Piaseczno!
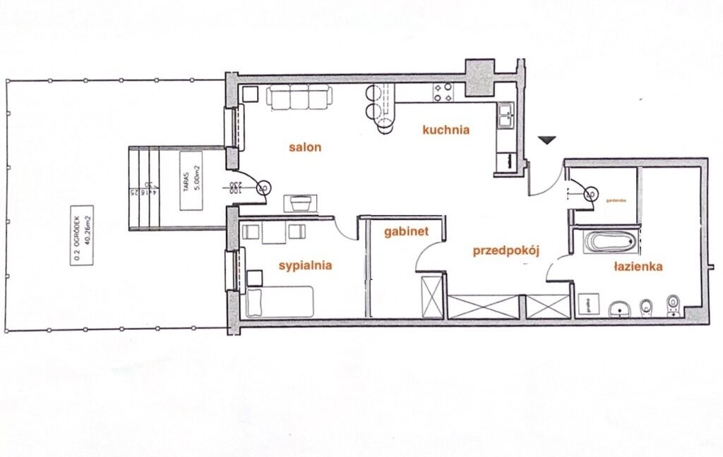
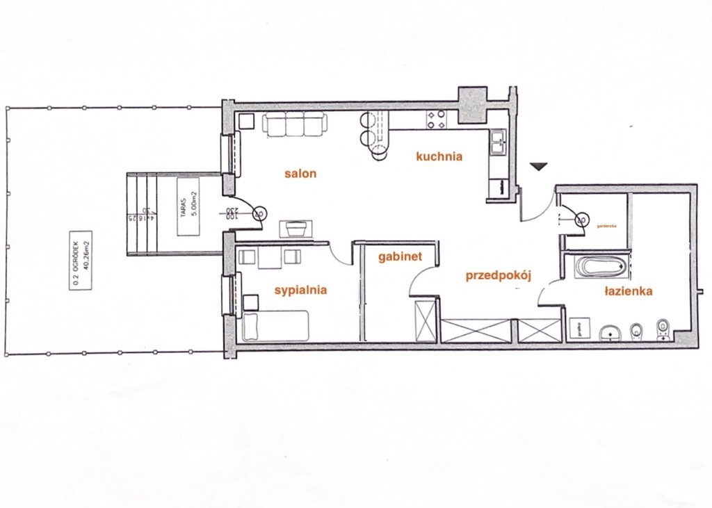
Mieszkanie 77,5 m2 które łączy własną zieloną przestrzeń, a jednocześnie z doskonałym połączeniem koleją z centrum Warszawy.
Najważniejsze atuty nieruchomości:
- Prywatny ogródek (40 m²) Taras (5 m²): Ogródek usytuowany jest z dala od ulicy, co gwarantuje ciszę, spokój i idealne miejsce na poranną kawę lub relaks po pracy.
- Doskonała komunikacja: Bliskość dworca PKP Piaseczno sprawia, że dojazd do centrum Warszawy jest szybki i wygodny.
- Przestrzeń i potencjał: 77,5 m² powierzchni daje ogromne możliwości aranżacyjne.
- Bezpieczeństwo prawne: Mieszkanie posiada Księgę Wieczystą (pełna własność).
Rozkład pomieszczeń:
Mieszkanie charakteryzuje się bardzo funkcjonalnym układem:
Mieszkanie znajduje się na parterze i wymaga odświeżenia. To doskonała okazja, aby wykończyć wnętrze dokładnie według własnego gustu i potrzeb.
Parkowanie: w pobliżu dostępne są liczne bezpłatne miejsca postojowe.
- Liczba pięter: 4









