Na sprzedaż 890.000zł - Mieszkanie
Czy rozkładowego mieszkania w dobrze skomunikowanej części Ursusa?
Czy ważna jest dla Ciebie kameralna zabudowa, własny ogród oraz brak miesięcznych opłat czynszowych?
Czy marzy Ci się miejsce, które możesz zaaranżować dla dużej rodziny lub połączyć funkcję mieszkalną z pracą, biurem czy działalnością? Jeśli na któreś z pytań odpowiedziałaś/eś twierdząco – to mieszkanie przy ul. Cierlickiej jest właśnie dla Ciebie!
W SKRÓCIE:
Kameralny budynek wolnostojący, tylko kilka mieszkań,
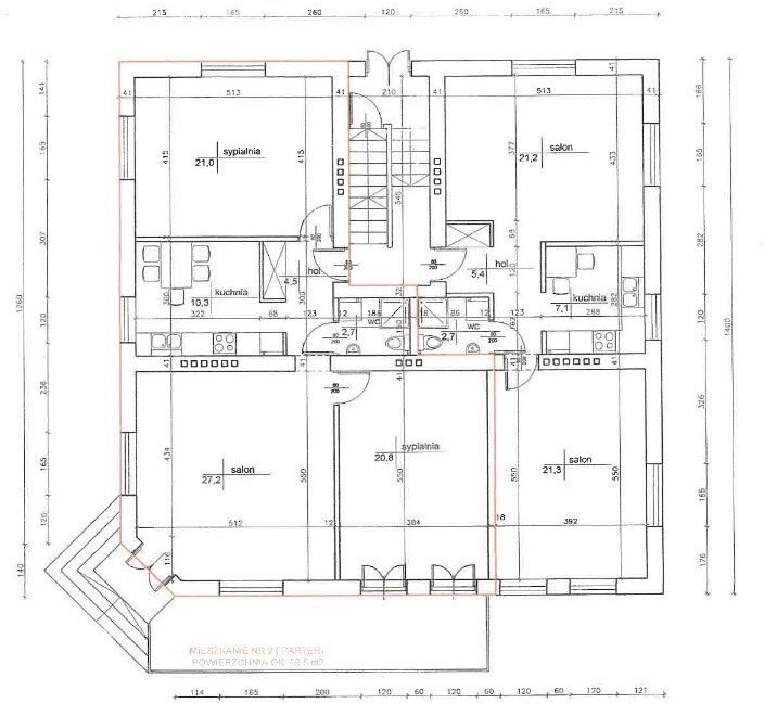
3 pokoje – idealne dla rodziny, osób potrzebujących przestrzeni lub chcących połączyć mieszkanie z miejscem pracy.
Własny ogród, w którym można odpocząć, bawić się z dziećmi lub zaaranżować zieloną strefę relaksu.
Mieszkanie bezczynszowe – płacisz tylko za media.
Niezależne wejście, poczucie prywatności..
Do generalnego remontu – możliwość urządzenia wszystkiego po swojemu.
CO WYRÓŻNIA TO MIESZKANIE?
Przestronny i funkcjonalny układ pozwala na wiele aranżacji: część dzienna z salonem i kuchnią, a dodatkowo dwie sypialnie, które można dostosować do własnych potrzeb. Mieszkanie daje ogromny potencjał adaptacyjny – sprawdzi się jako rodzinne lokum, ale także jako przestrzeń z miejscem na biuro czy gabinet.
Ogromnym atutem jest ogród, do którego masz bezpośredni dostęp – to komfort rzadko spotykany w mieszkaniach w Warszawie.
LOKALIZACJA:
Ursus, ul. Cierlicka – zielona i spokojna część dzielnicy, z kameralną zabudową i pełną infrastrukturą w zasięgu ręki. W pobliżu sklepy, szkoły, przedszkola, punkty usługowe. Szybki dojazd do centrum Warszawy zarówno samochodem, jak i komunikacją miejską.
STAN MIESZKANIA:
Lokal wymaga generalnego remontu, co daje możliwość stworzenia wnętrza w pełni odpowiadającego Twoim potrzebom.
DLA KOGO?
Idealne dla rodziny poszukującej dużej przestrzeni i prywatności, dla osób ceniących niezależność, a także dla tych, którzy chcą urządzić dom według własnych pomysłów.
ZAPROSZENIE:
Jeśli szukasz mieszkania z potencjałem, z ogrodem i bezczynszowego komfortu w kameralnym budynku – zadzwoń i umów się na prezentację!
- Powierzchnia użytkowa: 86.40
- Liczba pięter: 2













