Na sprzedaż 1.539.000zł - Mieszkanie
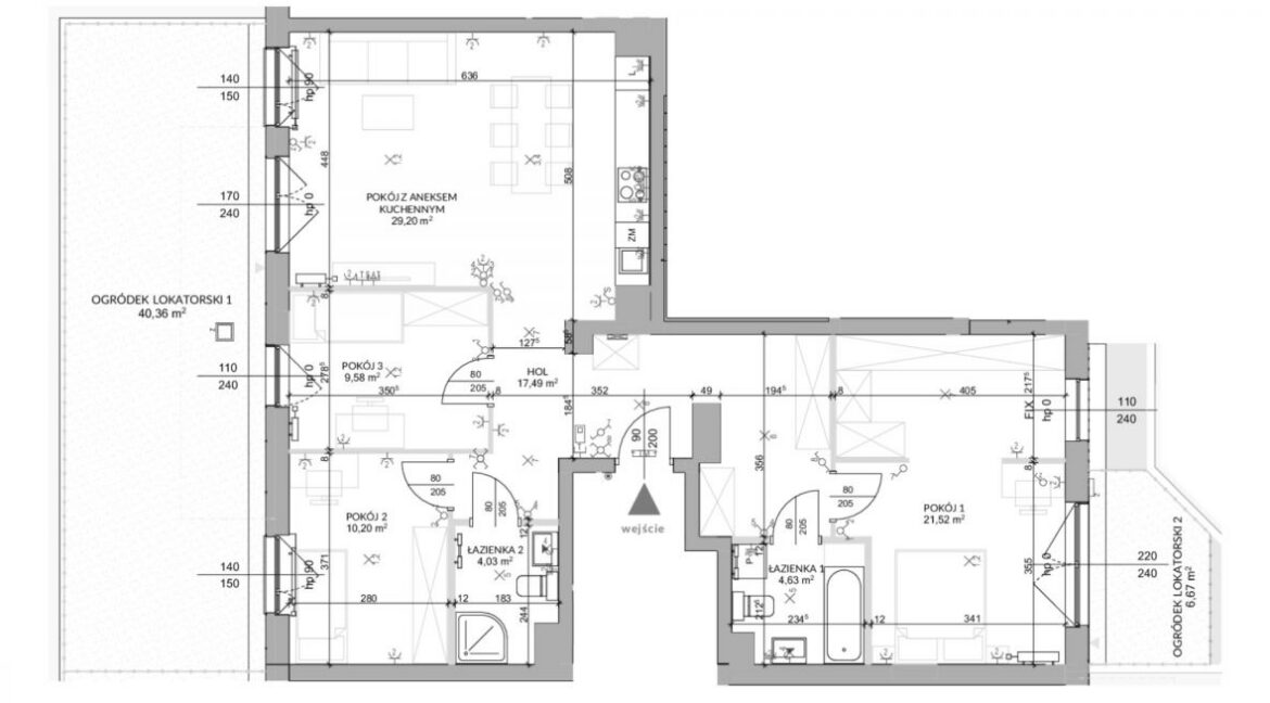
Gotowe do wykończenia 4 pokojowe mieszkanie o ekspozycji wschód – zachód z dwoma ogródkami. Zaprojektowane tak żeby przestrzeń do życia była możliwie wygodna i komfortowa.
Powierzchnia ponad 96 m2, została w przemyślany, komfortowy sposób podzielona na:
– przestronną część dzienną łączącą salon z aneksem kuchennym, z wyjściem do prawie 40 m2 ogródka
– główną sypialnie z prywatną łazienką i dużą garderobą oraz wyjściem do mniejszego ogródka 7 m2
– dwie, kształtne i ustawne sypialnie
– łazienkę
– hall z dużą szafami w zabudowie
Do lokalu przynależy 1 miejsce parkingowe, w garażu podziemnym oraz komórka lokatorska ponad 3 m2 płatne dodatkowo 60000 zł.
Lokal zlokalizowany jest na parterze, nowej inwestycji „Miasteczko Nova Ochota” zlokalizowanej na Rakowie, znanego dewelopera Victoria Dom. Inwestycja to samowystarczalne osiedle, na którym znajduje się przestrzeń mieszkalna jak i usługowa. Na osiedlu zaplanowano również tereny do sportu i rekreacji takie jak kort tenisowy, czy skwer z fontanną.
Sama lokalizacja cechuje się:
– doskonałym dojazdem do Centrum,
– sąsiedztwem stacji WKD – zaledwie 1 minutę pieszo,
– położeniem w pobliżu największego zagłębia biurowego,
– bliskością atrakcyjnych terenów zielonych tj.: Park Szczęśliwicki.
- Liczba pięter: 5













