Na sprzedaż 625.000zł - Mieszkanie
Zapraszam na prezentację w najbliższy poniedziałek pomiędzy 16.30-18.00 po wcześniejszym umówieniu telefonicznym.
Mamy na sprzedaż 1 z mieszkań w promocyjnej cenie .Możemy wykończyć to mieszkanie pod klucz w świetnej cenie.
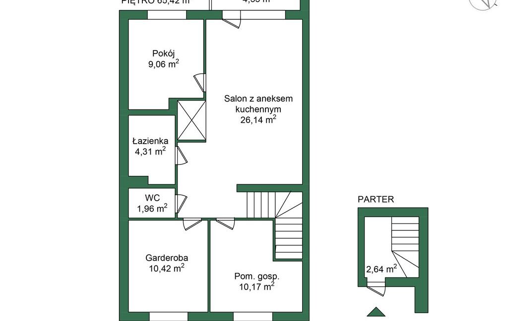
Inwestycja Kmicica 4 to osiedle mieszkaniowe składające się z 18 lokali z ogródkiem. Powstała w świetnej lokalizacji – w miejscowości Kobyłka, zaledwie 17 km od centrum Warszawy .Mamy dostępne 2 ostatnie mieszkania 4 pokojowe.Mieszkanie na 1 piętrze o powierzchni 68,06 m2 z ogródkiem obok budynku około 45 m2 oraz 2 miejscami postojowymi płatnymi dodatkowo 20 000 zł.
Inwestycja wykonana przez doświadczonego dewelopera K2 Development.
Strona www.k2-development.pl
Mieszkanie składa się z 3 sypialni, garderoby, salonu z aneksem kuchennym z wyjściem na balkon oraz łazienki, WC. Ma bardzo przestronne okna dające dużą ilość światła.Idealne dla rodzin z dziećmi i osób ceniących sobie spokój, własną przestrzeń i bezpieczeństwo. Już oddane do użytkowania. Możliwość zakupu przez Obcokrajowców z poza Unii Europejskiej.
Jesteśmy wyłącznym biurem sprzedaży developera. Osoba kupująca nie płaci prowizji oraz podatku PCC 2%.
Mieszkania są bezczynszowe. Niskie koszty utrzymania. Zamontowana pompa ciepła oraz instalacja pod fotowoltaike.
Do budynków podciągnięte wszystkie media: prąd, woda miejska, kanalizacja
Cała inwestycja ogrodzona wraz z bramą wjazdową (elektryczną) i furtką.
Warszawa na wyciągniecie ręki
Położenie Inwestycji Kmicica 4 zapewni mieszkańcom mobilność. Dobre połączenie z Warszawą dzięki Kolejom Mazowieckim – pociąg R60 oraz autobusom. Do centrum miasta samochodem dojedziemy w 30 min korzystając z trasy S8. Świetne połączenie z dzielnicami Targówek, Białołęka, Praga-Północ, Praga-Południe.
Mieszkania będą wykończone do stanu deweloperskiego:
– antywłamaniowe drzwi wejściowe do mieszkania
– okna i parapety ( zewnętrzne)
– tynki gipsowe wewnątrz części użytkowej (ściany gotowe do malowania)
– posadzki wykonane z betonowej wylewki (podłoga gotowa pod dowolne wykończenie)
– instalacje: wentylacyjną, wodno-kanalizacyjną , grzewczą ( z ogrzewaniem podłogowym i pompą ciepła, elektryczną (bez gniazdek i włączników), niskonapięciową (domofon, okablowanie pod alarm, okablowanie światłowodowe i antenowe),
– balustrady zewnętrzne
– ogrodzenia ogródków
– zagospodarowanie terenu (przygotowane miejsca parkingowe, droga )
– ocieplenie elewacji, stropu, podbitkę dachową, blachodachówkę i orynnowanie
Szkoły, atrakcje, lokalizacja:
W Kobyłce znajdują się placówki szkolne publiczne i niepubliczne, m. in. Słoneczna Szkoła Podstawowa w Kobyłce czy Publiczna Szkoła Podstawowa z Oddziałami Dwujęzycznymi Nr 1 im. Zofii Nałkowskiej.
Mieszkańcy Kmicica mogą cieszyć się atrakcjami takimi jak:
– Rezerwat Przyrody Grabicz – 5 km
– Muzeum im. Zofii i Wacława Nałkowskich – 3,9 km
– Glinianki w Zielonce – 4,9 km
– Amazing Park (park liniowy) – 6,9 km
– Rezerwat przyrody Puszcza Słupecka – 13 km
– Rezerwat przyrody Łęgi Czarnej Strugi – 9,7 km
– Jezioro Czarne w Markach – 5 km
– Horowe Bagno Rezerwat Przyrody – 3,2 km
Łączna cena za mieszkanie wraz 2 miejscami parkingowymi oraz ogródkiem to 645 000 zł
Zadzwoń !!!
- Piętro: 1
- Liczba pięter: 1















