Na sprzedaż 3.200.000zł - Działka
Do sprzedania działka dla inwestora pod zabudowę jednorodzinną i bliźniaczą znajdująca się w Kamionce obok Bobrowca.
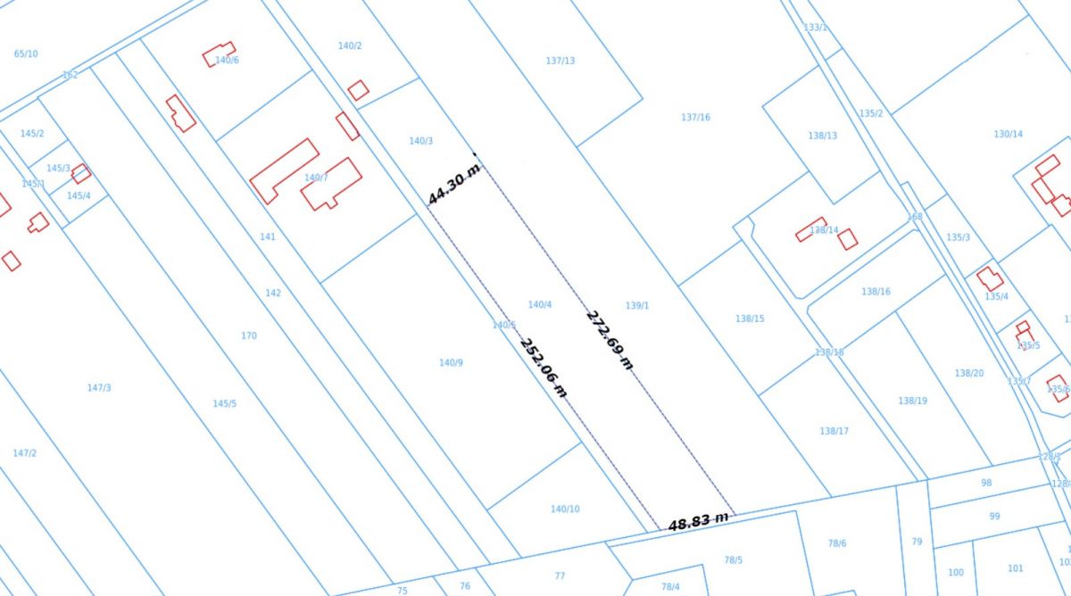
Działka w kształcie zbliżonym do prostokąta o wymiarach: szerokość 44,3m, długość 252 do 272 m.
Dojazd do działki od ulicy Bobrowieckiej realizowany jest drogą prywatną o szerokości 7,5 m (w MPZP poszerzenie do 12 m)
W ulicy Bobrowieckiej znajduje się kanalizacja i woda, czyli w odległości ok. 180 m, a gaz nawet bliżej bo około 80 m.
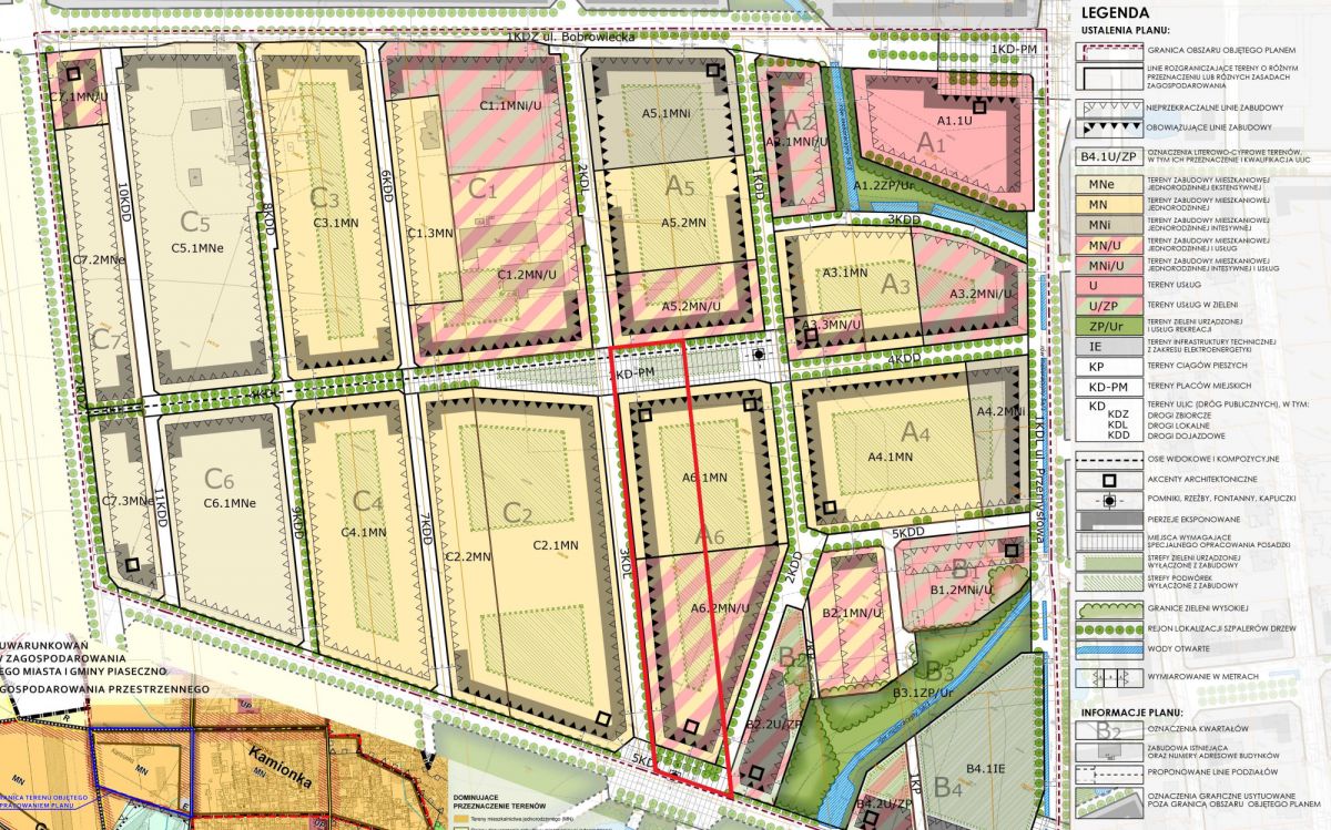
Gmina Piaseczno jest w trakcie opracowywania Miejscowego Planu Zagospodarowania Przestrzennego. W tej chwili zakończono konsultacje z właścicielami gruntów.
Wg założeń nowego MPZP:
1. Minimalna powierzchnia działki 550m2 pod połówkę bliźniaka, w którym mogą być 2 lokale mieszkalne. (możliwośc wybudowania tzw. „czworaków”)
2. Maksymalna wysokość zabudowy do 10,5 m (2 kondygnacje).
3. Minimalna powierzchnia biologicznie czynna – 50%
4. Maksymalna powierzchnia zabudowy 45%
Część działki od strony północnej zostanie przesnaczona na zielony skwer.
Po odjęciu powierzchni przeznaczonych na drogę i skwer pozostanie areał pozwalający na wybudowanie ok. 28 segmentów – lokali mieszkalnych.
Gmina Piaseczno w trybie pilnym przygotowuje projekt wybudowania ulicy Boborwieckiej jako łącznika do wjazdu na trasę S7 w Antoninowie. Po realizacji tej inwestycji dojazd do tego węzła zajmie tylko 4-5 minut (3,5 km).
Do centrum Piaseczna – 7 km.
Do PKP Piaseczno – 4,5 km (10 minut autem)
Niedaleko (ok. 500 m) jest przystanek autobusu L-5, którym w kilkanaście minut dojedziemy do PKP oraz centrum Piaseczna.
Do Szkoły Podstawowej nr 3 w Piasecznie, przy ul. Gółwnej 50 – zaledwie 900 m.
W odległości ok. 500 m małe centrum handlowo-usługowe z Biedronką.








