Na sprzedaż 860.000zł - Mieszkanie
Nowoczesne dwupokojowe mieszkanie z ogródkiem na warszawskiej Woli położone na parterze siedmiopiętrowego budynku z windą z 2019 roku przy ul. Fort Wola 12B.
Szczegóły:
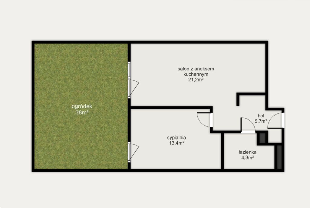
Nieruchomość o powierzchni 44,60 m2 składa się z następujących pomieszczeń:
– pokój z aneksem kuchennym (21,20 m2),
– sypialnia (13,40 m2),
– łazienka z wanną (4,30 m2),
– hol z wbudowaną szafą (5,70 m2).
Do mieszkania przynależy ogródek o powierzchni około 30 m2, z bezpośrednim wyjściem zarówno z salonu, jak i z sypialni. Przestrzeń została wyłożona deską z naturalnego drewna (świerku) i wyposażona w domek narzędziowy oraz pawilon ogrodowy, co tworzy idealne miejsce do wypoczynku i spędzania czasu na świeżym powietrzu.
Mieszkanie wykończone w dobrym standardzie. Na podłogach położono jesionową deskę barlinecką oraz nowoczesny gres. W części salonu zastosowano ogrzewanie podłogowe, co zwiększa komfort użytkowania. Kuchnia została wykonana na wymiar i w pełni wyposażona w m.in. zmywarkę, płytę indukcyjną, system cargo, ledowe podświetlenie oraz pojemne szuflady z cichym domykiem. W sypialni oraz przedpokoju znajdują się bardzo pojemne szafy wnękowe. Łazienka wyposażona jest w wannę z funkcją prysznica, pralko-suszarkę oraz praktyczne szafki w zabudowie – zarówno pod umywalkę, jak i nad pralką. Istnieje możliwość pozostawienia pełnego wyposażenia mieszkania.
Okna PCV skierowane na stronę południowo-zachodnią, co zapewnia dobre doświetlenie wnętrza przez większość dnia.
Mieszkanie stanowi pełną własność i posiada założoną księgę wieczystą, co umożliwia zakup na kredyt. Nieruchomością zarządza wspólnota mieszkaniowa, a miesięczny czynsz wynosi około 800 zł. Istnieje możliwość zakupu miejsca parkingowego w garażu podziemnym.
Lokalizacja:
Mieszkanie znajduje się na cichym i spokojnym osiedlu, oddzielonym od głównej drogi (ul. Wolska) parkiem i cmentarzem, co zapewnia ciszę i spokój. W pobliżu znajduje się Park Powstańców Warszawy, idealny na spacery i aktywność fizyczną.
W odległości 650 m znajduje się galeria handlowa Fort Wola, zapewniająca wygodę codziennych zakupów. Wola Park oddalony jest o 2,9 km (8 minut samochodem). Do centrum Warszawy można dotrzeć w 17 minut (6,5 km) dzięki doskonałej komunikacji miejskiej i szybkiemu dojazdowi.
Przystanki autobusowe i tramwajowe (Cmentarz Wolski) znajdują się w odległości 600 m, a najbliższa stacja metra (Księcia Janusza) – 1,8 km. W okolicy nie brakuje sklepów, piekarni, aptek, restauracji, szkół i przedszkoli. Na samym osiedlu funkcjonuje anglojęzyczny żłobek, logopeda, salon kosmetyczny oraz sklepy Żabka i Stokrotka.
- Liczba pięter: 7













