Na sprzedaż 1.140.000zł - Mieszkanie
Sprzedaż | Mieszkanie 2-pokojowe – 68 m² | Możliwość wydzielenia 3. pokoju | Miasteczko Wilanów | Wysoki parter z loggią 14,51 m² | Wysokość pomieszczeń: 3 m | Bez ogródka
Z przyjemnością prezentujemy ofertę sprzedaży przestronnego mieszkania 2-pokojowego, z możliwością wydzielenia trzeciego pokoju. Lokal znajduje się na wysokim parterze w inwestycji zlokalizowanej w sercu Miasteczka Wilanów.
Mieszkanie dostępne od zaraz.
Apartament położony jest w jednej z najlepiej skomunikowanych części Wilanowa – w pobliżu przystanków autobusowych i przyszłej linii tramwajowej, z dogodnym dojazdem do stacji metra Wilanowska i centrum Warszawy.
W najbliższym otoczeniu znajdują się:
– liczne sklepy i supermarkety,
– punkty usługowe, restauracje, kawiarnie,
– placówki medyczne (w tym szpital Medicover),
– banki i drogerie,
Ogromnym atutem jest bliskość renomowanych placówek edukacyjnych:
American School of Warsaw, International European School, British Primary School, Akademeia High School, Polsko-Niemiecka i Polsko-Francuska Szkoła oraz The British School of Warsaw.
Dla aktywnych – tereny rekreacyjne, ścieżki biegowe i rowerowe, kluby fitness i dwa baseny w zasięgu spaceru.
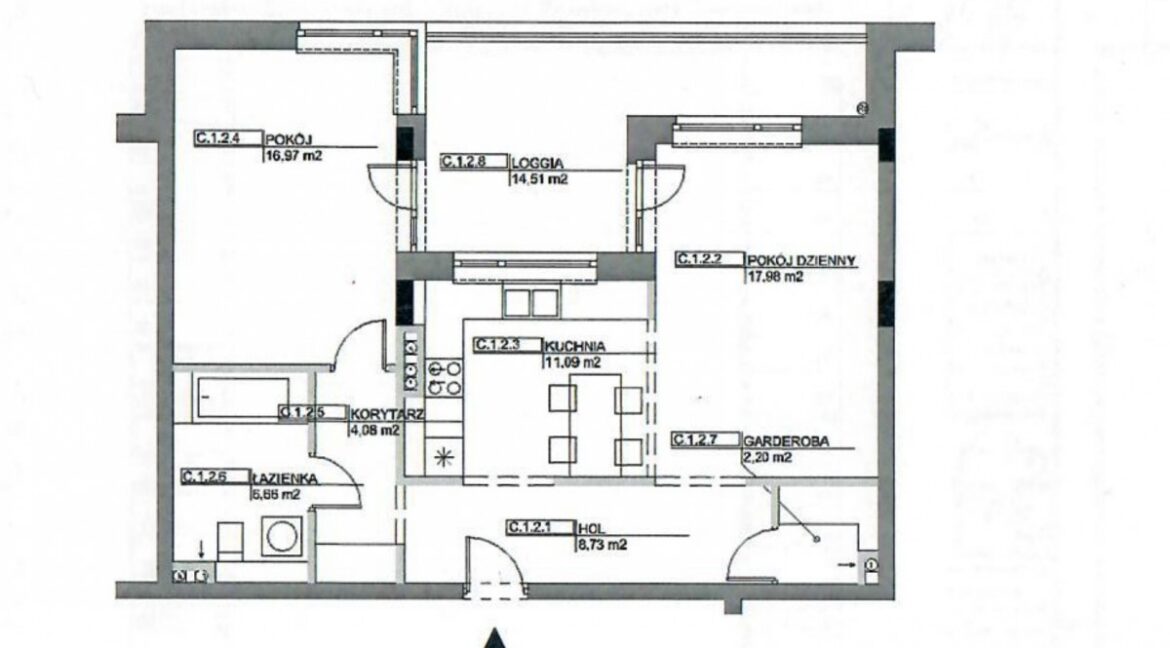
Rozkład pomieszczeń:
– Pokój dzienny – 17,98 m²
– Kuchnia – 11,09 m²
– Sypialnia – 16,97 m²
– Łazienka – 6,66 m²
– Hol – 8,73 m²
– Korytarz – 4,08 m²
– Loggia – 14,51 m²
Istnieje możliwość wydzielenia dodatkowego pokoju – idealnego na gabinet lub pokój dziecięcy.
Informacje dodatkowe:
Wysokość pomieszczeń: 3 metry. W całym mieszkaniu zastosowano szyby antywłamaniowe klasy P4. Jest systemy alarmowy. Osiedle posiada całodobową ochronę.
Brak ogródka
Mieszkanie dostępne od zaraz
Dwa miejsca postojowe na platformie – dodatkowo płatne: 50.000 zł.
Inspirację do wydzielenia trzeciego pokoju znajdziesz w galerii zdjęć.
Serdecznie polecam tę ofertę i zapraszam na prezentację!
Treść niniejszego ogłoszenia nie stanowi oferty handlowej w rozumieniu Kodeksu Cywilnego.
- Powierzchnia użytkowa: 67.85
- Liczba pięter: 4












