Na wynajem 3.000zł - Inny komercyjny
Nowy lokal usługowy w Wesołej – na biuro, usługi lub cele mieszkalne (umowa z firmą)
Do wynajęcia wydzielona, niezależna część wolnostojącego budynku usługowego o powierzchni ok. 36 m², położona w zielonej części Warszawy – Wesoła Centrum.
To przestrzeń, która doskonale sprawdzi się jako biuro, gabinet kosmetyczny, terapeutyczny, medyczny, usługowy, a także – po aranżacji – na cele mieszkalne.
Warunek: umowa najmu wyłącznie z firmą.
Przestrzeń i układ
Lokal mieści się w przyziemiu budynku, z niezależnym wejściem po kilku schodkach do góry.
Wnętrze jest funkcjonalne, jasne i nowoczesne, z pełnym zapleczem socjalnym – aneksem kuchennym i łazienką.
Starannie świeżo wykończona przestrzeń pozwala na natychmiastowe rozpoczęcie działalności lub zamieszkanie w komfortowych warunkach.
Pomieszczenia można łatwo dostosować do indywidualnych potrzeb – na przykład wydzielić i urządzić strefę biurową, recepcję, pokój zabiegowy czy część dzienną i sypialnianą.
Lokalizacja i udogodnienia
• Centrum Wesołej, w pobliżu komunikacji miejskiej (autobusy, SKM linia S2, Koleje Mazowieckie)
• Szybki dojazd do S17 i S2 – wygodne połączenie z resztą Warszawy
• Liczne miejsca parkingowe
• Możliwość ekspozycji reklamy
• Spokojne otoczenie, dużo zieleni i kameralna zabudowa
Warunki najmu
• Czynsz najmu: 3 000 zł/mies.
• Zaliczki na media: 1 000 zł/mies.
• Kaucja: 4 000 zł
• Umowa: co najmniej na 1 rok (tylko z firmą)
Lokal już dostępny.
Dodatkowe możliwości
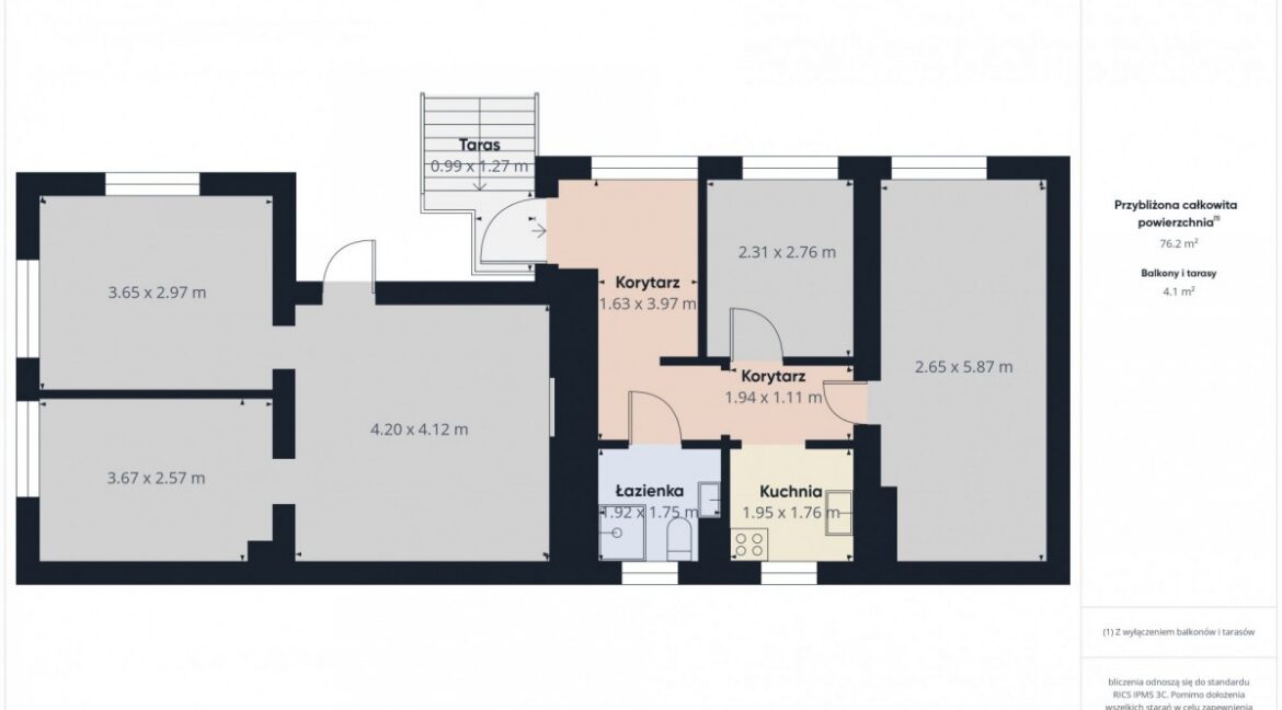
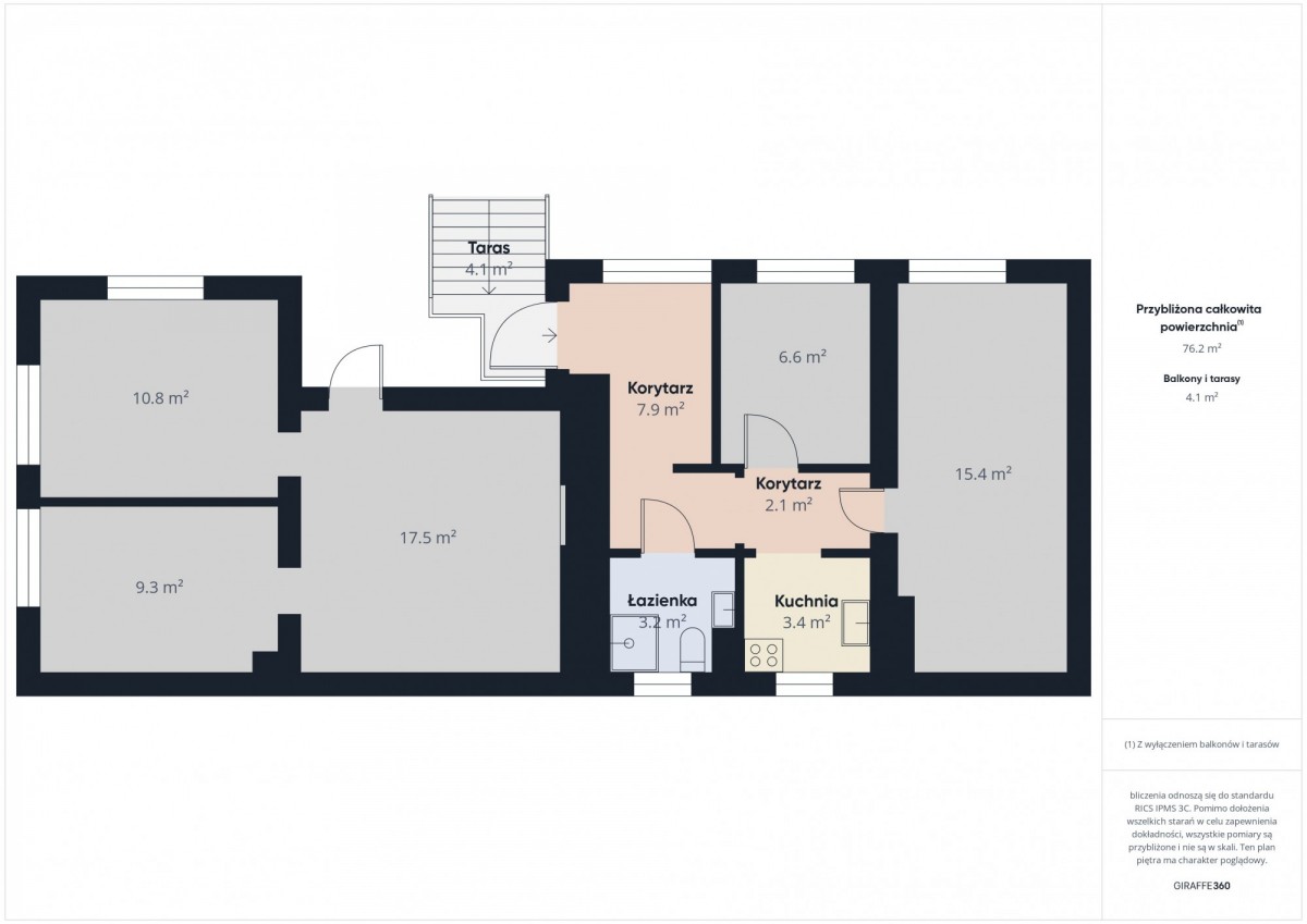
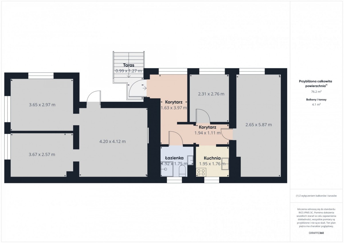
Istnieje możliwość wynajęcia całego budynku (ok. 76 m² powierzchni użytkowej) – idealnego dla firm, które potrzebują więcej przestrzeni, np. połączenia biura z częścią usługową lub magazynową.
• Nowoczesne zaplecze techniczne – wszystkie niezbędne przyłącza i funkcjonalność do prowadzenia działalności medycznej, kosmetycznej lub biurowej.
• Na załączonych planach znajdziesz dokładny rozkład pomieszczeń – z oznaczeniami powierzchni i wielkości poszczególnych pokoi/gabinetów. Spacer wirtualny oprowadzi Cię po wszystkich zakamarkach nieruchomości.
Właściciel jest otwarty, kontaktowy i przyjazny – z dużą elastycznością podchodzi do propozycji Najemcy, co daje wyjątkową swobodę przy kształtowaniu przestrzeni pod własne potrzeby.
Zapraszam na spacer wirtualny po nieruchomości oraz prezentację na żywo – to przestrzeń, którą z łatwością dopasujesz do potrzeb swojej firmy lub pracowników.













