Na sprzedaż 5.400.000zł - Inny komercyjny
Oferujemy na sprzedaż przepiękny, zupełnie nowy budynek handlowo-usługowy znajdujący się przy głównej ulicy Łomianek (ul. Warszawska). Mamy najemców na 100% powierzchni i kolejkę rezerwową. Jest to jedyny taki obiekt w Łomiankach, dlatego chętnych na najem (3 firmy) znaleźliśmy w niecały miesiąc, jeszcze przed oddaniem budynku do użytkowania. ROI wynosi tu około 7,5%.
Budynek wyróżnia się świetną lokalizacją i parametrami:
– Przy głównej arterii miasta – ul. Warszawskiej
– W gęsto zaludnionej okolicy
– 2 metry od działki znajduje się przystanek autobusowy (Łomianki ICDS)
– 70 metrów od nieruchomości znajduje się Centrum Dydaktyczno-Sportowe, a w nim basen, hala sportowa, aula koncertowa, sale konferencyjne, boiska, lodowisko, park linowy, szkoła podstawowa, liceum. Jest to największy obiekt tego typu w północnej części aglomeracji Warszawskiej.
– 10 min drogi od metra Młociny i 20 min do centrum Warszawy
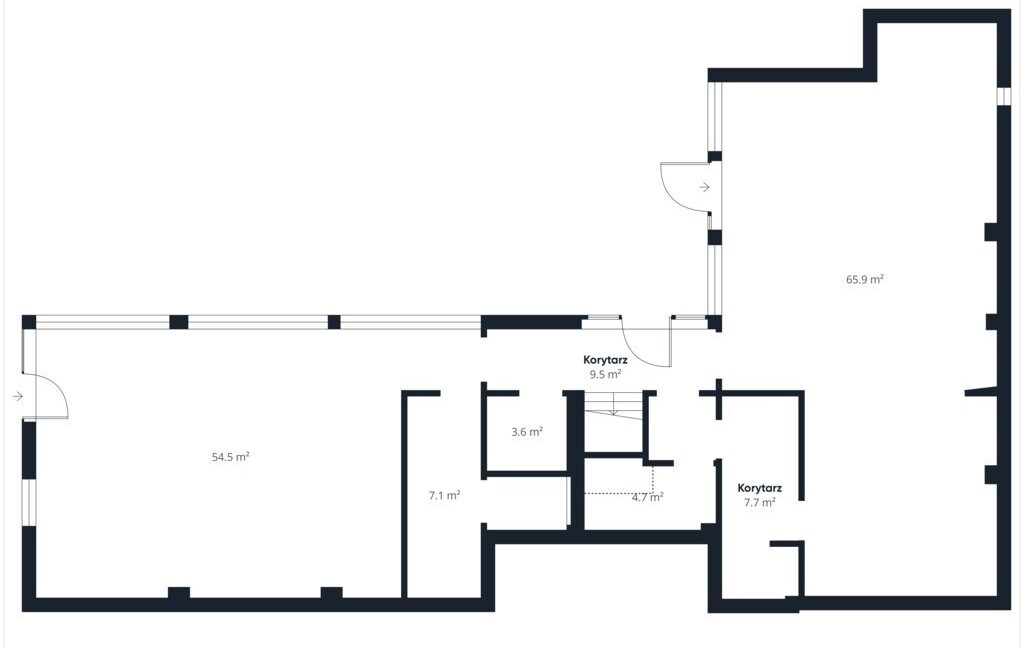
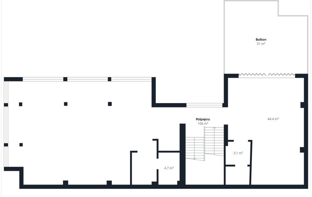
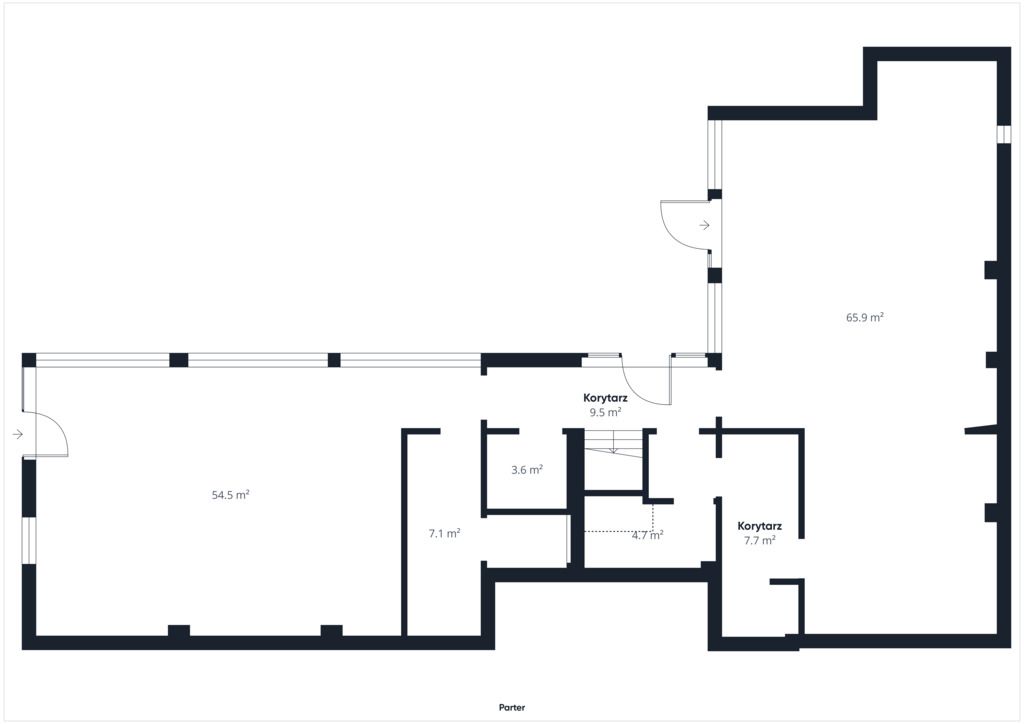
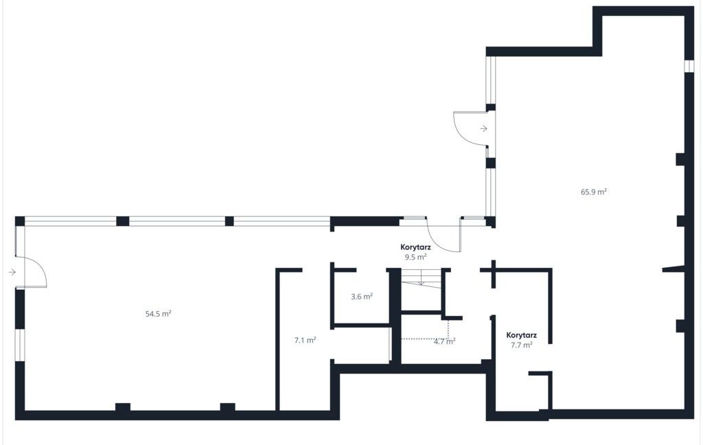
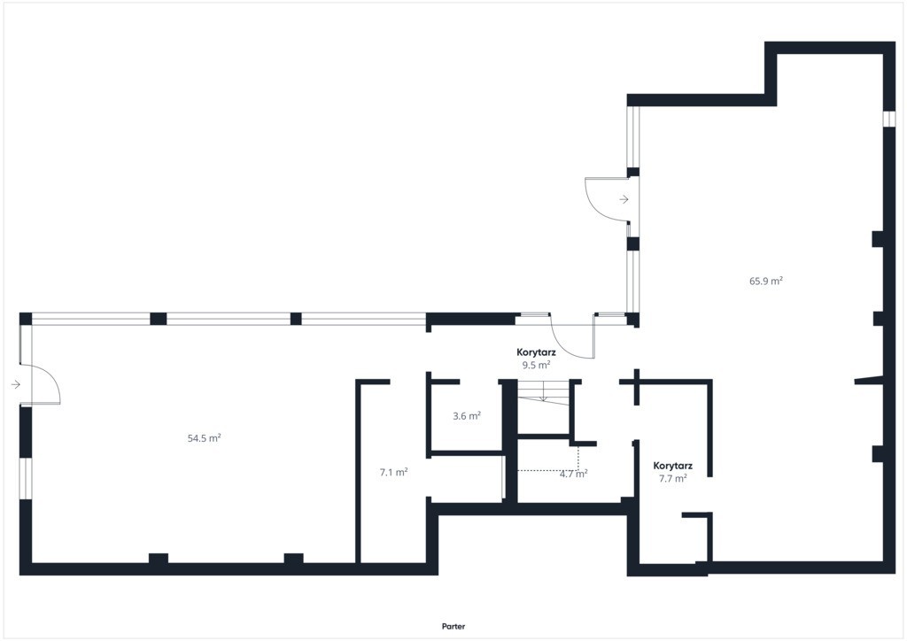
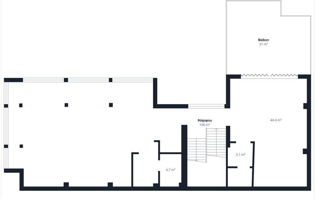
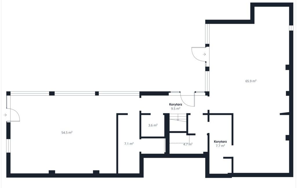
– Budynek ma 374 m2 powierzchni użytkowej i jest wyjątkowo ustawny. Można go podzielić na 4-5 osobnych lokali/modułów
– Duże okna, sprawiają że lokal jest świetnie doświetlony
– Miejsca parkingowe na dziedzińcu bardzo duży parking publiczny 20 metrów od nieruchomości, na ul. Sierakowskiej (na kilkadziesiąt aut)
– Budynek świetnie nadaje się na punkt usługowy, handlowy, biuro, restaurację
– Jest to osobno stojący budynek dlatego świetnie nadaje się na usługi o lekkiej uciążliwości (ciężka gastronomia, szkoły tańca, przedszkola, itp.).
– Możliwa do uzyskania koncesja
– Budynek zupełnie nowy – oddanie do użytku styczeń 2025r.
Zachęcamy do obejrzenia załączonego filmu i wirtualnego spaceru po nieruchomości.
We are offering for sale a beautiful, brand new commercial and service building located on the main street of Łomianki (Warszawska Street). We have 100% of the space tenanted and a waiting list. This is the only building of its kind in Łomianki, so we found interested tenants (five companies) in less than a month, even before the building was completed. The ROI is approximately 7.5%.
The building stands out for its excellent location and parameters:
– On the main artery of the city – Warszawska Street
– In a densely populated area
– There is a bus stop 2 meters from the plot (Łomianki ICDS)
– 70 meters from the property is the Educational and Sports Center, which includes a swimming pool, sports hall, concert hall, conference rooms, playing fields, an ice rink, a rope park, a primary school, and a high school. It is the largest facility of its kind in the northern part of the Warsaw metropolitan area.
– 10 minutes from the Młociny metro station and 20 minutes to the center of Warsaw
– The building has 374 square meters of space and is exceptionally flexible. It can be divided into 4-5 separate units/modules.
– Large windows make the premises very well lit
– Parking spaces in the courtyard a very large public parking lot 20 meters from the property, on Sierakowska Street (for several dozen cars)
– The building is perfect for a service point, retail outlet, office, or restaurant
– It is a detached building, so it is perfect for light-duty services (heavy catering, dance schools, kindergartens, etc.).
– Concession possible to obtain
– A completely new building – commissioning in December 2025.
We encourage you to watch the attached video and take a virtual tour of the property.
- Powierzchnia użytkowa: 374.00
- Liczba pięter: 2















