Na sprzedaż 990.000zł - Mieszkanie
Szukasz domu, który oferuje przestrzeń bez kompromisów? Zapraszam do zapoznania się z ofertą wyjątkowego segmentu w Markach. To idealna propozycja dla dużej rodziny, łącząca ciszę podwarszawskiej miejscowości z błyskawicznym dojazdem do stolicy.
NAJWIĘKSZE ATUTY:
Pełnowymiarowe 3 kondygnacje: Poddasze użytkowe jest wysokie i pozbawione skosów – w praktyce otrzymujesz dwa pełne piętra mieszkalne.
Idealny układ: 4 oddzielne sypialnie, 2 łazienki oraz 2 garderoby.
Bezpieczny zakup: Nieruchomość nie wymaga zgody MSWiA – idealna opcja dla obcokrajowców.
Gratis: Gotowy projekt wnętrz, który ułatwi Ci aranżację wymarzonego domu.
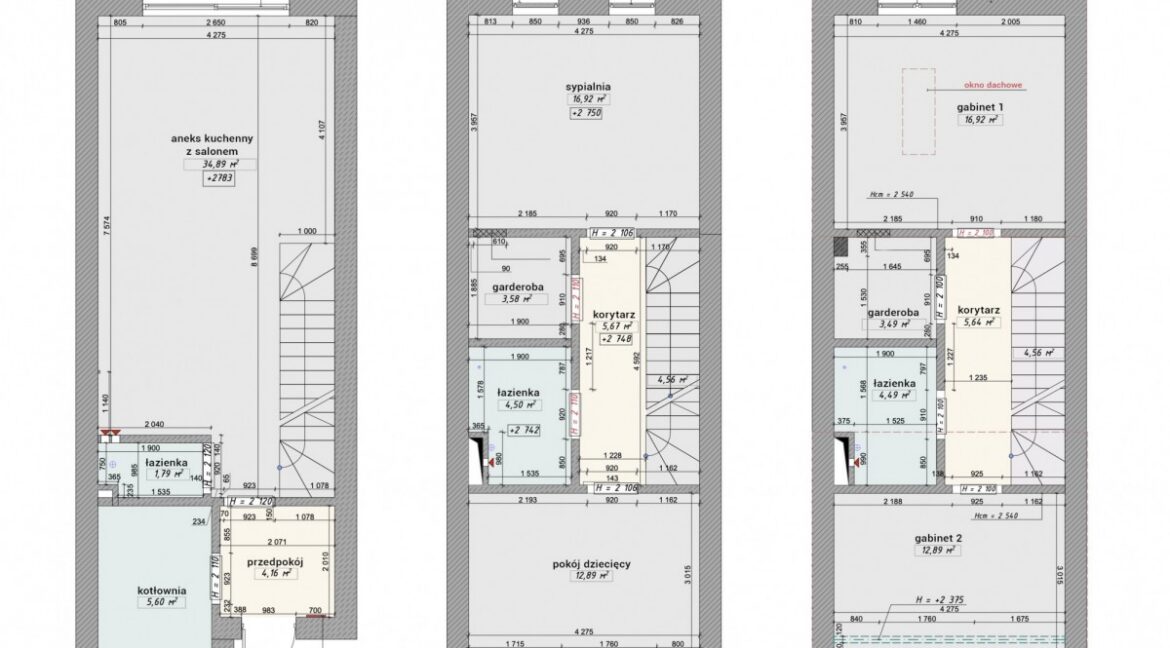
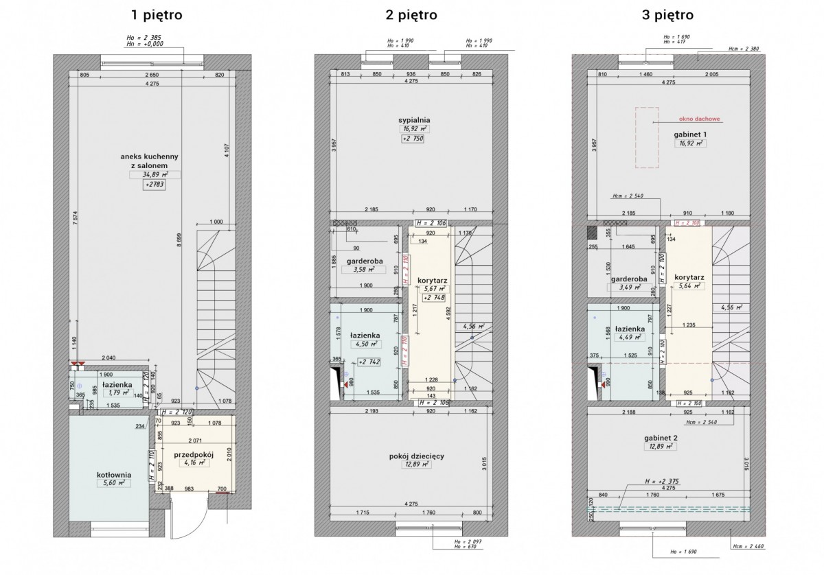
ROZKŁAD POMIESZCZEŃ (128,48 m²):
PARTER – Strefa dzienna:
Słoneczny salon z aneksem kuchennym (30,4 m²) i wyjściem do ogródka (46 m²).
Funkcjonalny przedsionek z miejscem na dużą szafę (4,18 m²).
Pomieszczenie gospodarcze/kotłownia (5,5 m²) oraz oddzielne WC.
I PIĘTRO – Strefa prywatna:
Dwie przestronne sypialnie (16,95 m² oraz 12,9 m²).
Pojemna garderoba (3,57 m²) i komfortowa łazienka (4,5 m²).
II PIĘTRO (Poddasze użytkowe – bez skosów!):
Dwie dodatkowe, wysokie sypialnie (16,99 m² oraz 12,9 m²).
Druga garderoba (3,52 m²) oraz druga łazienka (4,51 m²).
LOKALIZACJA:
Dom położony jest w cichej okolicy zdominowanej przez nową zabudowę jednorodzinną. W bliskim sąsiedztwie znajduje się las, ścieżki rowerowe oraz pełna infrastruktura: szkoły, przedszkola, ośrodek zdrowia i sklepy. Świetna komunikacja z Warszawą (blisko przystanek autobusowy oraz szybki wjazd na trasę S8).
INFORMACJE DODATKOWE:
Cena domu: 990 000,00 PLN.
Miejsce parkingowe: 30 000 PLN (zakup obligatoryjny).
Stan deweloperski – do własnej aranżacji.
To miejsce, które zapewni Twojej rodzinie wygodę i przestrzeń na lata. Nie czekaj, aż ktoś Cię ubiegnie!
Finansowanie i wsparcie:
Bezpłatnie pomagamy w uzyskaniu najkorzystniejszego kredytu hipotecznego. Nasz ekspert finansowy sprawdzi Twoją zdolność kredytową, porówna oferty wszystkich banków i przeprowadzi Cię przez cały proces procesowania wniosku, aż do wypłaty środków. Z nami masz pewność bezpieczeństwa transakcji.
Zadzwoń i umów się na prezentację już dziś!
- Powierzchnia użytkowa: 128.48
- Liczba pięter: 2












