Na sprzedaż 999.000zł - Dom
Na sprzedaż nowoczesny dom w zabudowie bliźniaczej, położony w Zapolu, gm. Grodzisk Mazowiecki.
Inwestycja składa się z dwóch gotowych lokali jednorodzinnych.
To idealna propozycja dla osób ceniących komfort oraz bliskość natury, a jednocześnie poszukujących świetnej komunikacji z Warszawą i Grodziskiem Mazowieckim.
DOM
Oferujemy na sprzedaż nowy, funkcjonalny dom w zabudowie bliźniaczej w stanie deweloperskim. Powierzchnia każdego z lokali wynosi 135,73 m².
Budynek wyróżnia się przemyślanym układem pomieszczeń – przestronna część dzienna znajduje się na parterze, a prywatna strefa sypialniana na piętrze. Dodatkowo jest możliwość adaptacji poddasza. Panoramiczne, przesuwne przeszklenia doskonale doświetlają wnętrza.
Najważniejsze atuty nieruchomości:
- funkcjonalny układ – jasna, otwarta przestrzeń dzienna oraz cztery sypialnie
- dwie łazienki i dodatkowa pralnia – wygoda dla całej rodziny
- garderoba – przestrzeń do przechowywania
- garaż w bryle budynku – bezpieczeństwo i wygoda
- 2 dodatkowe miejsca postojowe na podjeździe
- ogrzewanie podłogowe
- pompa ciepła – nowoczesne i energooszczędne rozwiązania,
- Domofon został zainstalowany z rozprowadzeniem przewodów (góra-dół)
- doskonała lokalizacja – szybki dojazd do Grodziska Mazowieckiego i Warszawy
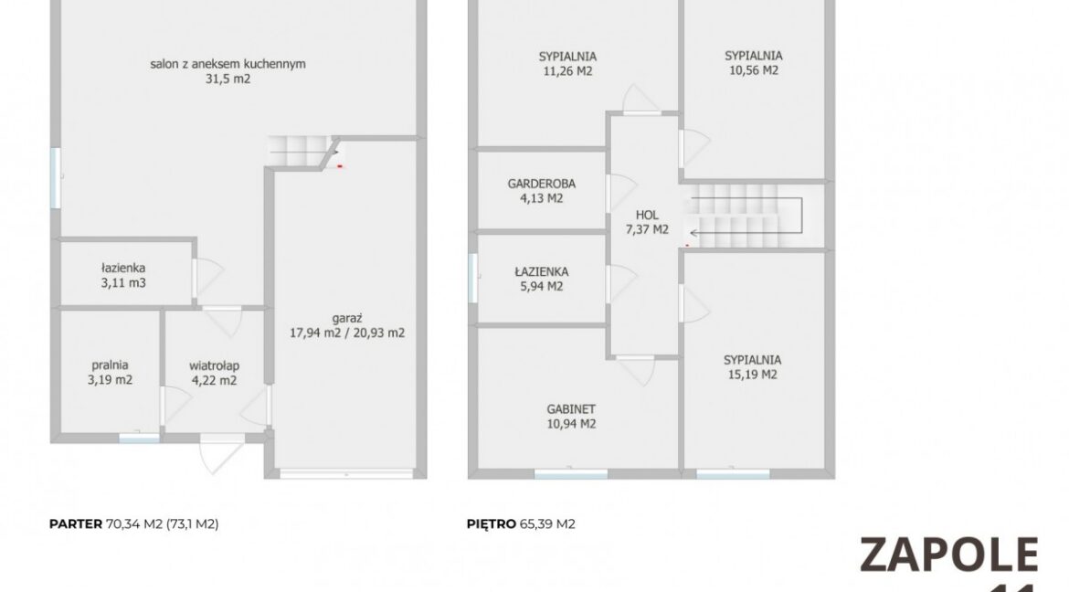
ROZKŁAD POMIESZCZEŃ
PARTER:
- Wiatrołap (4,22 m²)
- Pralnia (3,19 m²)
- Łazienka (3,11 m²)
- Salon z aneksem kuchennym (31,5 m²) z wyjściem do ogrodu
- Garaż (17,94 / 20,93 m²)
PIĘTRO:
- Sypialnia (15,19 m²)
- Sypialnia (11,26 m²)
- Sypialnia (10,56 m²)
- Gabinet/Sypialnia (10,94 m²)
- Garderoba (4,13 m²)
- Łazienka (5,94 m²)
- Hol (7,37 m²)
PODDASZE:
Wysokie poddasze do własnej aranżacji.
DZIAŁKA I OGRÓD
Dom posadowiony jest na ustawnej, ładnej działce z roślinnością, która daje wiele możliwości aranżacyjnych. W ogrodzie znajdują się okazałe drzewa, które nadają przestrzeni przytulny i naturalny charakter. Taras oraz ogród będą doskonałym miejscem do wypoczynku na świeżym powietrzu. Dodatkowym atutem jest fakt, że w bezpośrednim sąsiedztwie znajduje się gęsta, naturalna zieleń, która zapewnia poczucie prywatności.
STANDARD WYKOŃCZENIA
Dom sprzedawany jest w stanie deweloperskim, co daje możliwość pełnej aranżacji wnętrz zgodnie z własnymi potrzebami i gustem. W budynku zastosowano nowoczesne, energooszczędne rozwiązania – całość ogrzewana jest poprzez system ogrzewania podłogowego, zasilany wydajną pompą ciepła, co zapewnia komfort cieplny oraz niskie koszty eksploatacji. Do budowy wykorzystano materiały wysokiej jakości, gwarantujące solidność konstrukcji, estetykę wykończenia i trwałość na lata.
LOKALIZACJA I OTOCZENIE
Zapole to spokojna miejscowość położona w gminie Grodzisk Mazowiecki. Lokalizacja łączy zalety życia w otoczeniu zieleni z doskonałym dostępem do pełnej infrastruktury miejskiej.
Dodatkowym atutem jest kameralna okolica z niską zabudową jednorodzinną.
Kluczowe odległości:
- Grodzisk Mazowiecki – 6 min
- Szybki dojazd do trasy S8 i autostrady A2- wygodna komunikacja z Warszawą i okolicą
- Szkoła podstawowa, przedszkole, sklep – 5 min
- Liczne tereny zielone, trasy spacerowe i rowerowe
STAN PRAWNY I DODATKOWE INFORMACJE
- Sprzedającym jest osoba prywatna, więc zakup nieruchomości wiąże się z obowiązkiem zapłaty podatku PCC (2%).
- Dom jest bezczynszowy.
Zapraszamy do kontaktu i do zobaczenia na prezentacji!
- Powierzchnia użytkowa: 135.73
- Powierzchnia działki: 786.50
- Liczba pięter: 2












