Na sprzedaż 1.290.000zł - Dom
EN– full English version below – contact us anytime!
***OFERTA DEWELOPERA. KUPUJĄCY NIE PŁACI PROWIZJI I PCC***
Nowoczesny dom z dużym ogródkiem od południa (200m2), wykończony w jasnej, przyjemnej kolorystyce. W zabudowie bliźniaczej, funkcjonalny, z garażem w bryle budynku.
Położony przy spokojnej uliczce, zapewniającej ciszę i prywatność. Dom na dużej działce idealnej do zaaranżowania pięknego ogrodu i przestrzeni rekreacyjnej.
Położony w otoczeniu domów jednorodzinnych, przy cichej uliczce, z bliskim dojazdem do ulicy Poznańskiej. Takie położenie blisko trasy S8 i A2 zapewnia szybki dojazd do wielu dzielnic Warszawy.
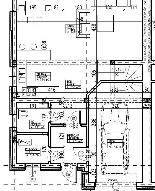
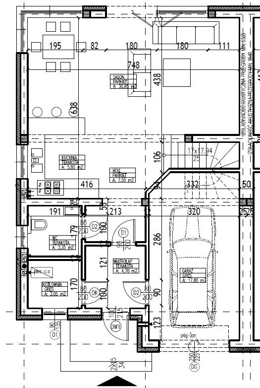
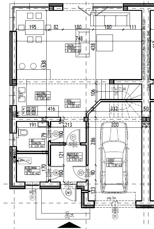
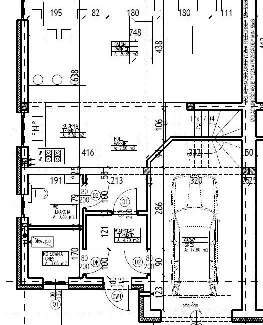
Parter:
– duży salon z aneksem kuchennym – 40,65m2 z wyjściem na taras i ogródek, słoneczny, z panoramicznym oknem, od zachodu,
– hol -3,5m2,
– wiatrołap – 4,70m2 z miejscem na szafę w zabudowie,
– toaleta – 3,2m2,
– garaż 18,7m2,
– kotłownia 3,05m2.
Łączna powierzchnia 73,05m2.
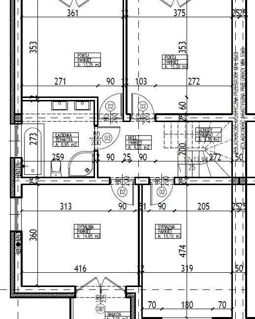
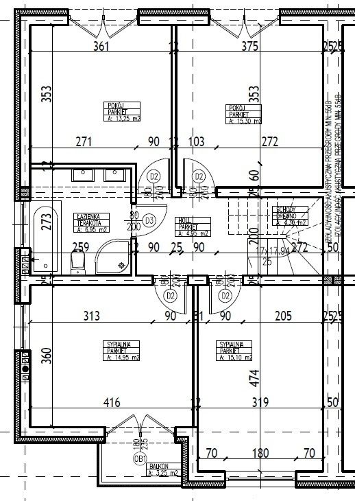
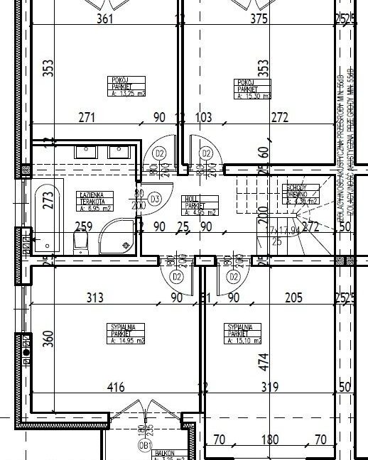
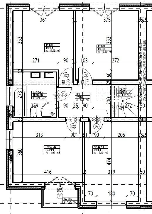
Piętro:
– pokój 14,95m2 z wyjściem na balkon,
– pokój 15,3,2
– pokój 15,1 m2
– pokój 13,25m2,
– duża łazienka 6,95m2,
– hol 4,95 m2,
– schody 4,3m2.
Łączna powierzchnia 74,53m2.
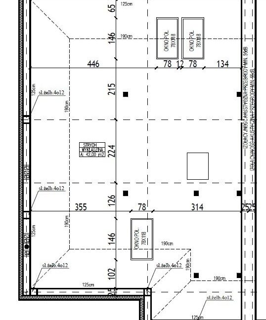
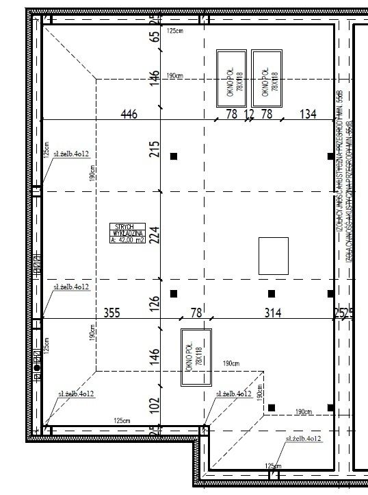
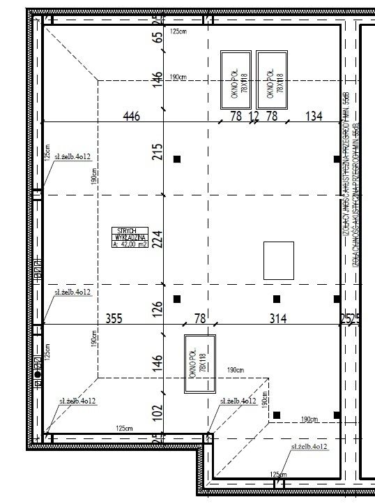
Poddasze użytkowe o powierzchni około 60m2.
Przedstawione zdjęcia wnętrz stanowią przykładową aranżację pomieszczeń. Dom jest sprzedawany w stanie deweloperskim, co daje przyszłemu właścicielowi pełną swobodę w urządzeniu wnętrza według własnych preferencji i potrzeb.
DODATKOWE INFORMACJE
*Media: prąd, woda, gaz, kanalizacja, światłowód
*Ogrzewanie podłogowe
*Bliźniak, oddzielony od sąsiedniego lokalu podwójną ścianą (50 cm)
*Domy wykończony wysokiej klasy materiałami- beton komórkowy, ściany wewnętrzne silka, ocieplenie styropianem 20 cm
*Teren ogrodzony (ogrodzenie panelowe), przed domem dwa miejsca postojowe jedno w garażu w bryle budynku, drzwi garażowe na pilota
*Rozprowadzona instalacja alarmowa
Zakup domu z udziałem współwłasności w drodze dojazdowej.
Gotowy, posiada pozwolenie na użytkowanie.
Zapewniamy bezpłatne wsparcie doradców kredytowych.
Zachęcam do kontaktu i umówienia się na prezentację domu:)
Niniejsze ogłoszenie nie stanowi oferty handlowej w rozumieniu przepisów prawa i ma charakter informacyjny.
***ENG***
No commission for the buyer.
Modern semi-detached house with a large garden (200 m²), finished in bright, pleasant tones. Functional layout with a garage integrated into the building structure.
Located on a quiet street, providing peace and privacy. The house sits on a spacious plot, ideal for creating a beautiful garden and recreational area.
Situated among single-family homes on a peaceful street, with easy access to Poznańska Street. The location near expressways S8 and A2 ensures quick access to many districts of Warsaw.
Ground Floor:
- Spacious living room with a kitchenette – 40.65 m², with access to the terrace and garden, sunny with a west-facing panoramic window
- Hallway – 3.5 m²
- Entrance hall – 4.70 m² with space for a built-in wardrobe
- Toilet – 3.2 m²
- Garage – 18.7 m²
- Boiler room – 3.05 m²
Total area: 73.05 m²
First Floor:
- Room – 14.95 m² with access to the balcony
- Room – 15.32 m²
- Room – 15.1 m²
- Room – 13.25 m²
- Large bathroom – 6.95 m²
- Hallway – 4.95 m²
- Staircase – 4.3 m²
Total area: 74.53 m²
Usable attic with an area of approximately 60 m².
The interior photos shown are sample arrangements. The house is sold in a developer’s standard, giving the future owner full freedom to finish and arrange the interior according to their own preferences and needs.
ADDITIONAL INFORMATION:
- Utilities: electricity, water, gas, sewage, fiber optic internet
- Underfloor heating
- Semi-detached house separated from the neighboring unit by a double wall (50 cm)
- Built with high-quality materials: aerated concrete blocks, internal Silka walls, 20 cm styrofoam insulation
- Fenced property (panel fencing), with two outdoor parking spaces in front and one parking spot in the garage (garage door with remote control)
- Pre-installed alarm system wiring
Purchase of the house includes co-ownership share in the access road.
We offer free mortgage advisory support.
Feel free to contact me to schedule a viewing of the house 🙂
- Powierzchnia użytkowa: 207.58
- Powierzchnia działki: 328.00
- Liczba pięter: 2








