Na sprzedaż 830.000zł - Mieszkanie
Nowoczesne 2-pokojowe mieszkanie | Bemowo | Balkon | Garaż
Na sprzedaż nowoczesne, 2-pokojowe mieszkanie położone na 4. piętrze w budynku z windą na warszawskim Bemowie. Lokal jest w pełni wykończony i gotowy do zamieszkania, z możliwością zakupu z pełnym wyposażeniem – idealna propozycja zarówno do zamieszkania, jak i jako inwestycja pod wynajem.
Lokalizacja i komunikacja
Mieszkanie znajduje się w doskonale skomunikowanej części Bemowa, zapewniającej szybki i wygodny dojazd do centrum Warszawy oraz innych dzielnic.
– Przystanek tramwajowy – ok. 350 m (5 minut pieszo)
– Stacja metra Bemowo – ok. 1,2 km (ok. 15 minut pieszo / kilka minut komunikacją)
– Liczne linie autobusowe w bezpośrednim sąsiedztwie
– Szybki wyjazd na trasę S8 oraz autostradę A2
– W pobliżu znajdują się sklepy, punkty usługowe, restauracje, placówki edukacyjne oraz tereny rekreacyjne, co zapewnia wysoki komfort codziennego życia.
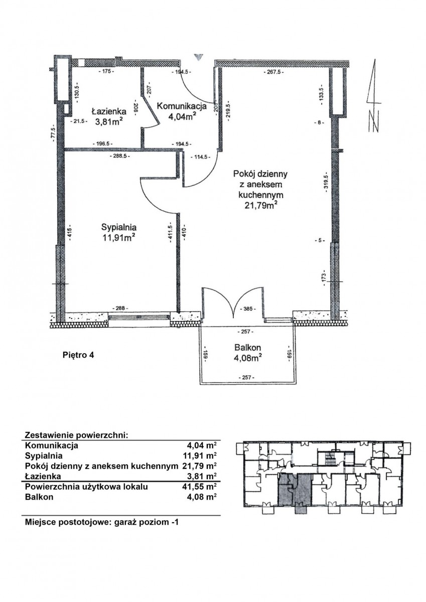
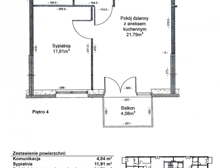
Układ mieszkania
– Salon z aneksem kuchennym – 21,79 m²
– Sypialnia – 11,91 m²
– Łazienka – 3,81 m²
– Przedpokój – 4,04 m²
– Balkon – 4,08 m²
Dodatkowe atuty
– Kameralny budynek z 2016 roku
– Winda
– Duży balkon
– Budynek monitorowany
– Szerokie miejsce postojowe w garażu podziemnym
– Możliwość zakupu z pełnym wyposażeniem – idealne na start lub pod wynajem
– Gotowe do zamieszkania od zaraz
Informacje dodatkowe
– Stan prawny: pełna własność
– Czynsz administracyjny: ok. 500 zł
– Miejsce postojowe w garażu podziemnym: 50 000 zł (zakup obligatoryjny)
- Piętro: 4
- Liczba pięter: 5








