Na sprzedaż 2.300.000zł - Dom
Na sprzedaż wyjątkowa nieruchomość ( stan deweloperski) w miejscowości Badów Górny k. Mszczonowa. To propozycja dla osób szukających bezkompromisowej przestrzeni, nowoczesnej architektury i absolutnej ciszy „zielonej sypialni” Warszawy.
Kluczowe informacje:
Powierzchnia domu: 350 m² Układ: parter + poddasze użytkowe (do dowolnej aranżacji), powierzchnia działki: 1500 m²; udział w działce nr 52/10, która ma bezpośredni dostęp do drogi publicznej
Projekt: Prestiżowa „Willa Parterowa 4 wariant B”
Działka: Bezpośrednio granicząca z lasem, zapewniająca 100% prywatności. Możliwość dokupienia sąsiedniej działki o przeznaczeniu budowlanym ( nr dz. 52/57).
Stan: Deweloperski (oddanie do użytku: grudzień 2025 – co daje przyszłym właścicielom możliwość wykończenia go według własnych preferencji)
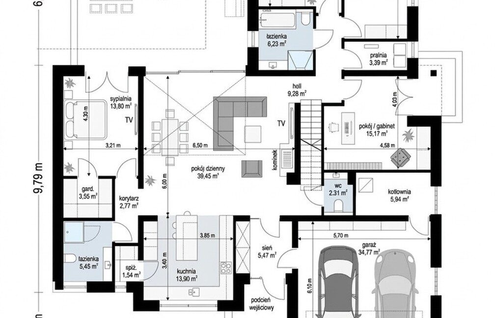
Układ Pomieszczeń i Funkcjonalność
Dom został zaprojektowany z myślą o maksymalnym komforcie i podziale na strefy:
Strefa Dzienna: Imponujący salon z ogromnymi przeszkleniami i wyjściem na taras oraz otwarta kuchnia z jadalnią.
Strefa Prywatna: 3 sypialnie, w tym Master Suite z własną garderobą i łazienką.
Praca i Hobby: Osobny gabinet oraz przestronne poddasze użytkowe (idealne na kino domowe, siłownię lub dodatkową pracownię).
Garaż: Dwustanowiskowy, zintegrowany z bryłą budynku.
Standard Wykonania (Premium)
Budynek budowany „dla siebie” z wykorzystaniem wysokiej klasy materiałów;
Drzwi zewnętrzne: antywłamaniowe, ocieplane, nowoczesny design;
Brama garażowa: segmentowa, ocieplana, z automatycznym napędem;
Stropy: żelbetowe, monolityczne trwała i stabilna konstrukcja,
Dach: więźba drewniana impregnowana, pokrycie wysokiej jakości,
Ściany: Ceramika Podkarpacka (zewnętrzne) + Cegła Wienerberger (wewnętrzne – doskonała akustyka).
Izolacja: Styropian grafitowy 20 cm + wełna mineralna 30 cm na dachu.
Stolarka: Okna energooszczędne 3-szybowe, przeszklenia tarasowe typu HS (bezprogowe).
Elewacja: Przygotowana pod tynk silikonowy, biały baranek, podbitka w kolorze okien.
Instalacje:
– elektryczna,
– wodno-kanalizacyjna (oczyszczalnia)
– centralne ogrzewanie
Ogrzewanie: Podłogowe w całym domu (parter + poddasze), zasilanie gazowe (własna butla wkopana w ziemię).
Konstrukcja: Solidne stropy żelbetowe monolityczne.
Lokalizacja: Badów Górny / Mszczonów
Miejsce łączy sielski spokój z doskonałą logistyką:
Natura: Działka w głębi terenu, stykająca się z linią lasu.
Komunikacja: Szybki dojazd do trasy S8 i A2 – sprawny dojazd do Warszawy.
Infrastruktura: Kilka minut do centrum Mszczonowa (sklepy, szkoły, Termy Mszczonów, bliskość Park of Poland).
Kupujesz dom na etapie, który pozwala na finalną aranżację wnętrz „pod klucz” zgodnie z Twoim gustem, unikając najcięższych etapów budowy.
- Powierzchnia użytkowa: 350.00
- Powierzchnia działki: 1500.00
- Liczba pięter: 1















