Na sprzedaż 3.200.000zł - Mieszkanie
Sadyba | ul. Radosna. Apartament z ogródkiem, obecnie przestrzeń studyjna o powierzchni 189,20m2. wykorzystywana jako studio, może zostać przekształcona w komfortowy apartament – idealny dla osób poszukujących elegancji, ciszy i funkcjonalności. Komórka lokatorska i dwa miejsca postojowem w garażu podziemnym, ogródek.
Wnętrze:
Przestrzeń studyjna znajduje się w zacisznej części Sadyby, przy ulicy Radosnej.
Całość jest klimatyzowana i wentylowana z centralnej jednostki zlokalizowanej na dachu, a system wyposażony jest w tłumiki akustyczne minimalizujące szum.
Budynek:
Budynek cechuje bardzo wysoki standard wykończenia. Obiekt jest monitorowany i zaopatrzony w media miejskie oraz pełną infrastrukturę teleinformatyczną. Wszystkie pomieszczenie są klimatyzowane. Istnieje możliwość zmiany aranżacji przestrzeni. Zarówno z przodu jak i z tyłu budynku znajduje się zadbany ogród. Budynek z szeroką bramą wjazdową.
Sąsiedztwo:
Nieruchomość znajduje się w bardzo cichej okolicy, sąsiadując z firmami, ambasadami i rezydencjami. W okolicy sklepy, szkoły. Bardzo dobra komunikacja z Centrum Warszawy, 15 min do lotniska Chopina.
Powyższa oferta ma charakter informacyjny i nie stanowi oferty handlowej w rozumieniu art. 66 §1 Kodeksu Cywilnego.
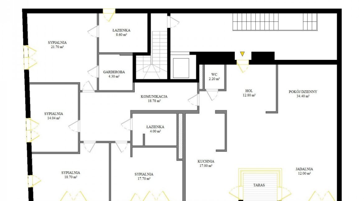
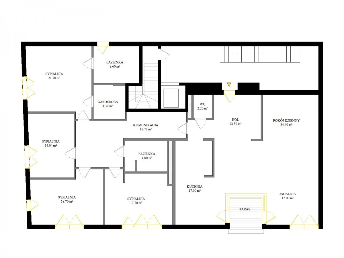
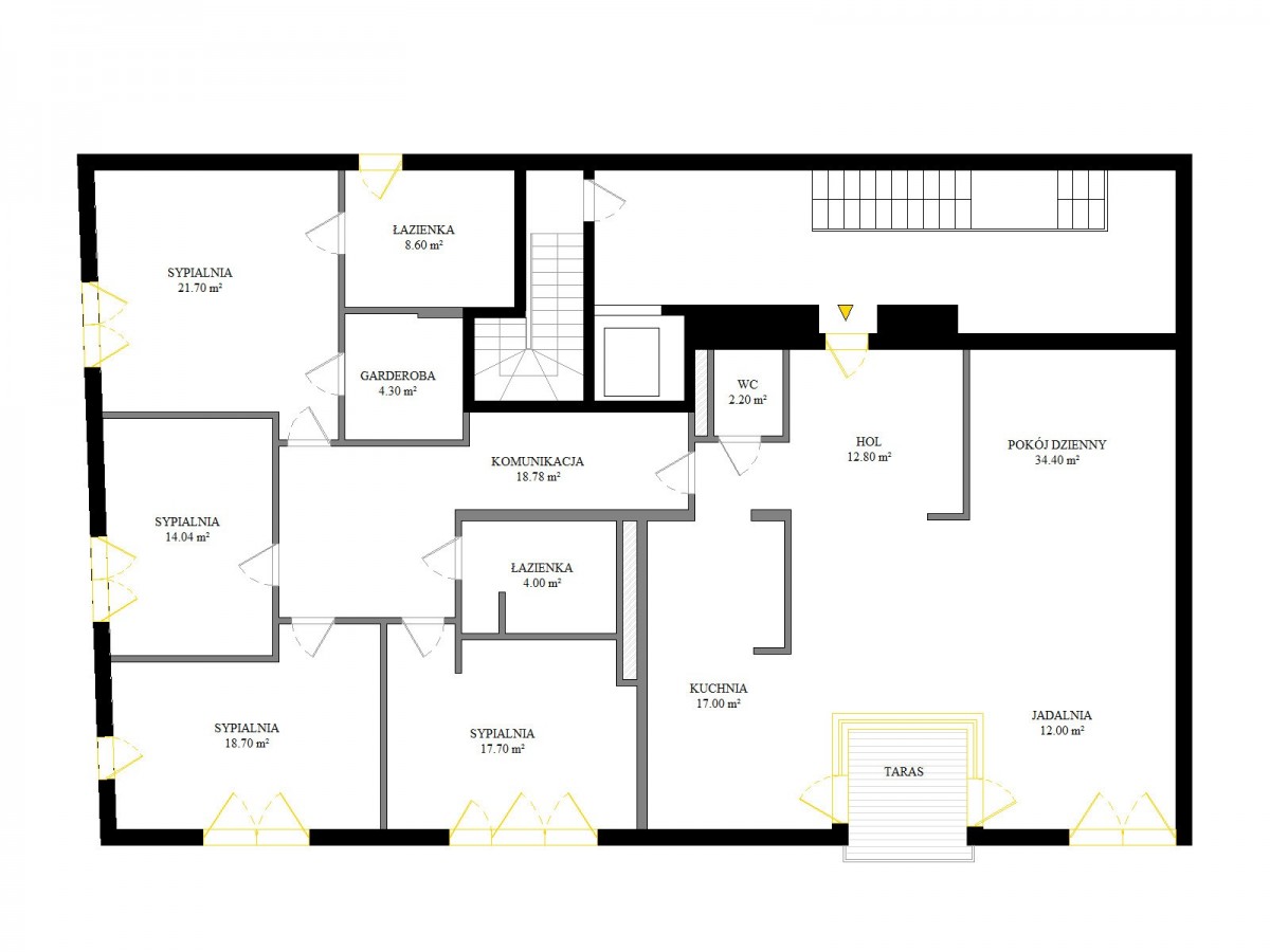
- Powierzchnia użytkowa: 189.20
- Liczba pięter: 2















