Na sprzedaż 1.190.000zł - Mieszkanie
Opowiem Ci HISTORIĘ:
W samym sercu Konstancina-Jeziornej, w miejscu gdzie historia splata się z architekturą, a cisza drzew szepcze opowieści sprzed wieku, stoi niezwykła Willa – Quo Vadis. To nie tylko budynek – to świadek minionych czasów, artystycznych pasji, rodzinnych historii i przemian, jakie niosły kolejne dekady. Zapraszamy w podróż do przeszłości, która nadal oddycha w jej snycerskich zdobieniach i cieniu trój kondygnacyjnych werand.
Willa Quo Vadis – perła konstancińskiej architektury z duszą historii.
Wśród drzew i szeptów minionych epok, kryje się niezwykła rezydencja – dawna pensjonatowa willa Quo Vadis. Choć dziś jej nazwa przywodzi na myśl pytanie o kierunek i przeznaczenie, początki tej historii były znacznie bardziej przyziemne… i zarazem romantyczne.
Powstała jeszcze przed 1910 rokiem, według projektu samego właściciela – Władysława Colonna-Czosnowskiego – jako „Pensjonat pod Jeleniem”. Już sam fakt, że zaprojektował ją osobiście, zdradza wyjątkowy związek z tym miejscem. To nie była tylko inwestycja – to było osobiste marzenie zaklęte w drewnie i zdobieniach.
W 1914 roku budynek trafił w ręce Leontyny Rudzkiej – jednej z najbardziej znanych warszawskich edukatorek tamtego czasu. Właścicielka willi „Leonówka” i „Biała” stworzyła w Konstancinie swoiste centrum kultury, edukacji i kobiecej niezależności.
Kolejny rozdział tej opowieści otworzyła Wiktoria z Bylińskich Koźmińska, która przejęła willę w 1931 roku. Jej mąż, Karol Koźmiński – znany pod literackim pseudonimem Maciej Gruszczyński – był barwną postacią: dziennikarzem, rysownikiem i autorem książek historycznych dla dzieci. Można sobie tylko wyobrazić, jakie rozmowy i opowieści wypełniały wnętrza willi w tamtych latach.
Po II wojnie światowej część majątku przeszła w ręce Skarbu Państwa, ale dziś Quo Vadis znów znajduje się w prywatnych rękach – i chociaż zmieniała właścicieli, jedno pozostało niezmienne: jej niesamowity urok.
Quo Vadis to coś więcej niż budynek. To opowieść snuta snycerskimi wzorami i światłocieniem wpadającym przez ażurowe werandy. Trój kondygnacyjne werandy z pulpitowym dachem, ażurowe balustrady jak koronki z drewna, opaski okienne z bogato zdobionymi gzymsami i wspornikami – wszystko to tworzy architektoniczny poemat w stylu eklektycznym z nutą klasycyzmu.
To miejsce, które nie pyta „dokąd zmierzasz”, lecz zatrzymuje, by zapytać: „czy potrafisz dostrzec piękno przeszłości?”
I jeśli się wsłuchasz – odpowie ci szeptem drewnianych detali.
Każde wnętrze ma swoją historię – może napiszemy kolejną wspólnie?
Odezwij się, nawet jeśli to tylko wstępny pomysł. Lubimy rozmowy, które coś zaczynają.
LOKALIZACJA:
Konstancin-Jeziorna czyli MIEJSCE GDZIE CZAS PŁYNIE INACZEJ:
Miasto-ogród, w którym czas płynie wolniej, a każda ulica pachnie historią i zielenią. Konstancin-Jeziorna to nie tylko uzdrowisko z wyjątkowym mikroklimatem – to styl życia. Tu codzienność splata się z elegancją dawnych willi, szumem drzew i ciszą, która koi. Tylko kilkanaście minut od Warszawy – a jakby w innym świecie: bardziej świadomym, bardziej uważnym, bardziej Twoim.
TERENY ZIELONE I REKREACJA: Konstancin-Jeziorna położony jest w otulinie lasu. Synergia miasta z naturą jest niesamowita. Park Zdrojowy z tężnią solankową znaną w całym kraju, Chojnowski Park Krajobrazowy zachwycający swoim urokiem czy też piękne tereny nad Wisłą sprzyjają aktywnemu życiu.
COŚ DLA DUSZY czyli KULTURA I SZTUKA: Najważniejsze wydarzenia kulturalne obejmują Dni Konstancina-Jeziornej z tradycją papierniczą i wycinankową, Jazz Zdrój Festiwal poświęcony klasycznemu jazzowi, letnie seanse filmowe oraz całoroczne spotkania w Konstancińskim Domu Kultury Hugonówka, który organizuje wystawy, warsztaty i koncerty, potańcówki czy też seanse filmowe. Dzieje się.
PRZEZ ŻOŁĄDEK DO SERCA: W Konstancinie dobrze i zdrowo zjesz. Będąc na miejscu warto odwiedzić chociażby położone w Parku Zdrojowym: Restaurację Różana, Cafe Beza czy Restarację Trufla. Bliżej ścieżki zdrowia w Chojnowskim Parku Krajobrazowym znajduje się Restauracja Las i Wino oraz Gospoda Zalewajka. W Starej Papierni włoskie smaki skrywa Restauracja Pomidoro a na śniadania zaprasza Bułkę Przez Bibułkę. To tylko niektóre smaczne miejsca gdzie miło spędzisz czas z Rodziną i Przyjaciółmi.
Serdecznie zapraszam na prezentację tej wyjątkowej Nieruchomości.
Ps. TECHNICZNIE:
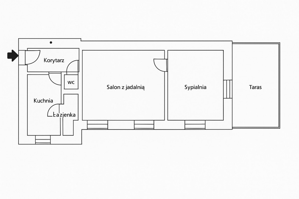
Lokal przygotowany do wykończenia. Zakres wykonanych prac:
-wykonanie kotłowni gazowej i montaż instalacji wewnętrznej gazu (nowy piec + nowa skrzynka gazowa)
-wykonanie instalacji wodno-kanalizacyjnej:
a) toaleta przyłącza: umywalka, wc
b) kuchnia przyłącza: zlew, pralka, zmywarka
c) łazienka: zlew, wanna/prysznic
d) podpięcie wentylacji do wc, kuchni, łazienki
-rozdzielenie instalacji elektrycznej (3 dodatkowe oddzielne obwody: lodówka, piekarnik, zmywarka + 10 nowych gniazdek w kuchni)
Wizualizacje mieszkania (zdjęcia w galerii po rzucie) uwzględniają rzeczywisty układ instalacji w lokalu.
- Powierzchnia użytkowa: 62.55
- Liczba pięter: 3













