Na sprzedaż 950.000zł - Dom
Na sprzedaż dom w stanie deweloperskim w Nadmie.
Dom to połowa domu bliźniaczego. Powierzchnia całkowita domu to 131,36 m2, powierzchnia użytkowa to 111,36 m2. Dom znajduje się na działce o powierzchni 338 m2.
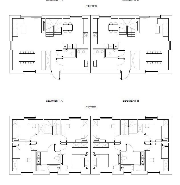
Na parterze znajduje się salon, kuchnia, łazienka i przedpokój, pomieszczenie gospodarcze i spiżarnia pod schodami. Na piętrze 4 sypialnie, przedpokój i łazienka. Wysokość parteru to 2,60 m, piętra 2,75 m.
Dom jest zaprojektowany i wykonany bardzo starannie, z zastosowaniem najlepszych materiałów:
1. Ława betonowa 60/40 wylana na wymienionym gruncie na głębokości 2m.
2. Ściany nośne bloczek termobet 24x24x50:
– ściany działowe regips profil 75mm izolowane wełną,
– strop systemowy teriva,
– schody żelbet,
– kominy systemowe wentylacyjne,
– więźba dachowa 12×8, pokrycie blacha pruszyński, izolacja piana pur + welna mineralna grubości 150 mm.
3. Tynki gipsowe Dolina Nidy.
4. Styropian 20cm na ścianach głównych, 15cm na ścianach szczytowych, podłoga dół 13cm, góra 10cm
5. Tynki silikonowe firmy Kobi
6. Producent Termokna wykonane w profilu najwyższej klasy A** tj. VEKA Softline 82 MD jest to profil 3-uszczelkowy (7-mio komorowy, o głębokości zabudowy 82 mm), który posiada 3 szyby wypełnione gazem Argon, ze współczynnikiem Ug= 0,5, z ciepłą ramką międzyszybową TGI w kolorze, która zmniejsza efekt wychładzania szyby przy krawędzi, tym samym oszronienia jej i skraplania pary wodnej na szybie, jak również zmniejsza straty ciepła i rozszczelnienia pakietu szybowego.
7. Rolety zewnętrzne elektryczne (parter + I piętro)
8. Drzwi zewnętrzne stalowe wejściowe Ariadna złoty dąb-czarne 90 Prawe Ok Doors Trendline
9. Parapety granit strzegomski
10. Pompa ciepła typu monoblock Rotenso Airmi 8kW
11. Rynny plastikowe 100mm, rury spustowe 100mm
12. Instalacja hydrauliczna wykonana w systemie rur pex(zacisk), instalacja elektryczna miedziana, instalacja alarmowa, tv (bez osprzętu), kanalizacja na rurach 110mm i 160mm
13. Ogrzewanie płaszczyznowe podłogowe wykonane na rurze 16mm producenta Kan-Term
Na zewnątrz podjazdy i chodniki z kostki. Ścieki odprowadzane do szamba o pojemności 10 m3 z szybkozłączem pod wóz asenizacyjny. Przygotowane dwa wyjścia do podłączenia węży do podlewania ogrodu.
Ogrodzenie z bloczka zalewowego (przód) boki i tył wykonane z ogrodzenia panelowego z podmurówką. Bramy z napadem elektrycznym, furtka z videofonem. Zewnętrzny garaż jednostanowiskowy o powierzchni 20 m2 został wykonany z drewna z pokryciem z blachy aluminiowej. Dodatkowe miejsce postojowe na podjeździe.
Dojazd do działki od ulicy Bazyliowej jest drogą prywatną, nabywca domu nabywa udział w działce drogowej.
Sąsiedztwo to domy jednorodzinne, bardzo blisko znajduje się duży plac zabaw. Nadma znajduje się bardzo blisko Radzymina, gdzie znajdują się wszystkie sieci handlowe. Od działki jest bardzo blisko do trasy S8, a więc bardzo szybko można dojechać do Warszawy.
Dom sprzedawany jest w stanie deweloperskim z podstawowym osprzętem elektrycznym, zabezpieczonymi wyjściami wody, ściany w tynkach, wnętrze bez ścian działowych do własnej aranżacji. Dom jest jeszcze w trakcie budowy, zakończenie planowane jest do końca tego roku.
- Powierzchnia użytkowa: 112.47
- Powierzchnia działki: 338.00
- Liczba pięter: 2






